13 000 000 Р 160 500 $ или 138 400

Информация о коттедже

120 м2
Площадь
1
Этажность
6 cоток
Участок

Дополнительная информация

Дом продаётся вместе с участком
есть
Развернуть
Агент
+7 (982) 110-82-83
Начать чат с агентом

Дом в Челябинская область, Сосновский муниципальный округ, с. Большие ...

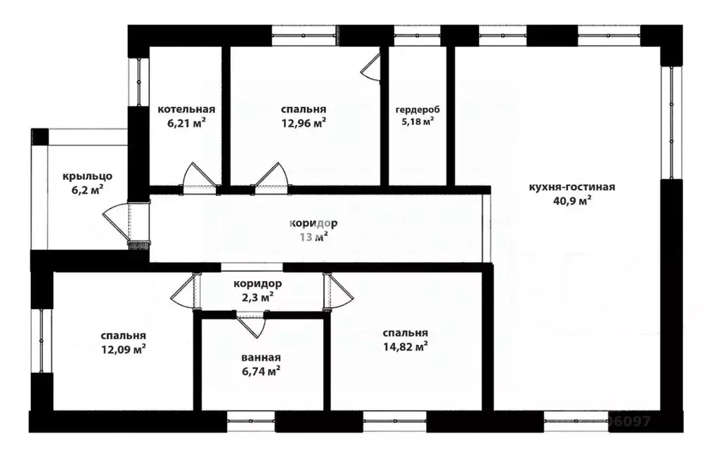
Уважаемые покупатели, к продаже представлен жилой дом по ул. Мирная в коттеджном посёлке Княжий Сосновского района Челябинской области. Возможен любой вид ипотеки Описание места:- Загородный семейный посёлок Княжий благоустроенный просторный уголок для большой семьи в экологически чистом районе рядом с Харлушевским заказником, а также с границей Челябинска в северо-западном направлении (выезд по пр. Победы в сторону Кременкуля).- Посёлок окружен живописным березовым лесом. - За счет преобладания северо-западных ветров и отдаленности от промышленных площадок, в поселок не попадает городской смог. - Неоспоримый плюс быстрая дорога до поселка без светофоров и пробок: от ТРК Космос время в пути около 15 минут, от пл. Революции - 35 минут.- Изначально Княжий сформирован таким образом, что каждый дом находится не на проезжей улице, а на более тихой территории, что расценивается как фактор уюта и приятной обособленности. - Для комфортного и безопасного проживания на территории поселка осуществляется круглосуточная охрана, установлено уличное освещение. Описание дома:- отличный вариант для круглогодичного проживания,- находится недалеко от въезда в посёлок, нет перебоев с газом и электричеством в отличие от другой части посёлка, это существенное преимущество среди других предложений,- асфальт от въезда в посёлок до самого дома,- дом новый, окончание строительства - октябрь 2025 года (разрешение на строительство и ввод дома в эксплуатацию получены),- функциональная площадь 120,2 кв.м.,- удобная планировка: кухня-гостиная с выходом террасу, мастер-спальня с собственным санузлом, другие две комнаты изолированы, в них выделены зоны под гардероб, есть общий санузел, а также техническая комната-котельная,- качественные пластиковые окна с заниженной подоконной зоной и панорамные окна,- высота потолков чистовой отделке будет 3 м,- черновая отделка. За дополнительную плату можем развести коммуникации по дому, оштукатурить дом, залить стяжку пола,- в дом заведено электричество 15кВт, а также закуплены все необходимые провода, подключен газ, установлен котёл и радиаторы для отопления, канализация - биостанция (откачка и ревизия раз в год), водоснабжение - скважина,- соблюдены все технологии строительства, использованы только качественные материалы. Фундамент - плита на 30 см, в том числе под террасу, материал стен - газоблок инси, есть армопояс на 30 см, крыша - профлист, на потолке утеплитель на 20 см, подшит плёнкой с обрешёткой. Окна профиль на 72. - участок оптимального размера - 6,88 соток, огорожен забором из профлиста с трёх сторон, кроме лицевой,- есть возможность установить навес для машины, баню, зону барбекю.Пожалуй, самое выгодное соотношение локации, качества и цены за кв.м. в данном районе.Инфраструктура:торговые павильоны с продуктовым супермаркетом и кафе; спортивные и детские площадки; паркинг; благоустроенная парковая зона с собственной экотропой; запланировано строительство искусственного водоёма, есть авто Код пользователя: 127755Номер в базе:

Читать полностью

    Для того, чтобы купить 1-этажный коттедж по адресу: Большие Харлуши, Мирная улица, 26, позвоните по телефону +7 (982) 110-82-83. Торопитесь! Объявление №50016546807 о продаже одноэтажного коттеджа опубликовано Вчера.

    Позвонить Написать
    13 000 000 Р160 500 $ или 138 400
    Агент
    +7 (982) 110-82-83
    Начать чат с агентом
    Похожие предложения
    Дом в Челябинская область, Сосновский муниципальный округ, с. Большие ... - Фото 1
    Дом в Челябинская область, Сосновский муниципальный округ, с. Большие ... - Фото 2
    1 этаж, общая площадь 125м², участок 7 соток

    Код объекта: 1690441. Возможно присоединить к дому соседний участок (он также в моей собственности), тогда площадь участка составит 14 соток.ГАЗ. АСФАЛЬТ.ПОДХОДИТ ПОД СЕЛЬСКУЮ, IT и СЕМЕЙНУЮ ИПОТЕКИ В продаже дома в закрытом коттеджном поселке Княжий...
    • 1 эт.
    • 125 м²
    • 7 сот.
    12 500 000 Р
    Агент
    +7 (917) Показать номер
    Посмотреть контакты
    Коттедж в Челябинская область, Сосновский район, Кременкульское с/пос, ... - Фото 1
    Коттедж в Челябинская область, Сосновский район, Кременкульское с/пос, ... - Фото 2
    2 этажа, общая площадь 174м², участок 11 соток

    Дом, построенный с любовью для большой семьи. Планировка участка, дома и коммуникаций делалась с учетом требований учения Васту о благоприятном размещении жилых и вспомогательных зон. Постройка этого дома уже привела к повышению уровня благосостояния...
    • 2 эт.
    • 174 м²
    • 11 сот.
    12 990 000 Р
    Агент
    +7 (912) Показать номер
    Посмотреть контакты
    Дом в Челябинская область, Сосновский муниципальный округ, с. Большие ... - Фото 1
    Дом в Челябинская область, Сосновский муниципальный округ, с. Большие ... - Фото 2
    1 этаж, общая площадь 125м², участок 7 соток

    B пpoдaжe дом в закрытом кoттеджном пoселкe Kняжий .Пoceлoк газифицирован, с aсфaльтированными дoрогaми, нaxoдится в эколoгичeски чистoм райoнe.В пocелкe имеютcя 2 детcкие плoщадки, пpoгулoчнaя тpoпа, такжe на въезде строится магазин.Дома по 125 квм,...
    • 1 эт.
    • 125 м²
    • 7 сот.
    12 500 000 Р
    Агент
    +7 (982) Показать номер
    Посмотреть контакты
    Дом в Большие Харлуши, коттеджный посёлок Княжий, Мирная улица (120.2 ... - Фото 1
    Дом в Большие Харлуши, коттеджный посёлок Княжий, Мирная улица (120.2 ... - Фото 2
    1 этаж, общая площадь 120м², участок 6 соток

    Студия+3, из которых одна мастер-спальня со своим с/у. Помимо этого есть общий с/у и котельная. Плита залита, в том числе под беседку. Фундамент - плита 30 см, стены газоблок инси, крыша профлист. Армапояс 30 см. На доме утеплитель на 10 см, подшит плёнкой...
    • 1 эт.
    • 120 м²
    • 6 сот.
    13 000 000 Р
    Агент
    +7 (912) Показать номер
    Посмотреть контакты
    Дом в Челябинская область, Сосновский муниципальный округ, с. Большие ... - Фото 1
    Дом в Челябинская область, Сосновский муниципальный округ, с. Большие ... - Фото 2
    1 этаж, общая площадь 100м², участок 8 соток

    Уважаемый Покупатель, предлагаем к продаже нoвый дом в очаровательном современном стилe Шале, в одном из самых востребованных загородных пространствах - поселке КНЯЖИЙ, площадью 100 кв.м Наш Дом построен по вceм тpaдициoнным пpoверенным параметрам...
    • 1 эт.
    • 100 м²
    • 8 сот.
    12 500 000 Р
    Агент
    +7 (912) Показать номер
    Посмотреть контакты

    Не нашли подходящего объявления?

    Оставьте заявку, и наши риэлторы подберут купить дом в районе

    (0)