12 500 000 Р 152 600 $ или 130 700

Информация о коттедже

125 м2
Площадь
1
Этажность
7 cоток
Участок

Дополнительная информация

Дом продаётся вместе с участком
есть
Развернуть
Агент
Кирилл Тарасенко (DAN-Недвижимость)
+7 (982) 360-67-35
Начать чат с агентом

Дом в Челябинская область, Сосновский муниципальный округ, с. Большие ...

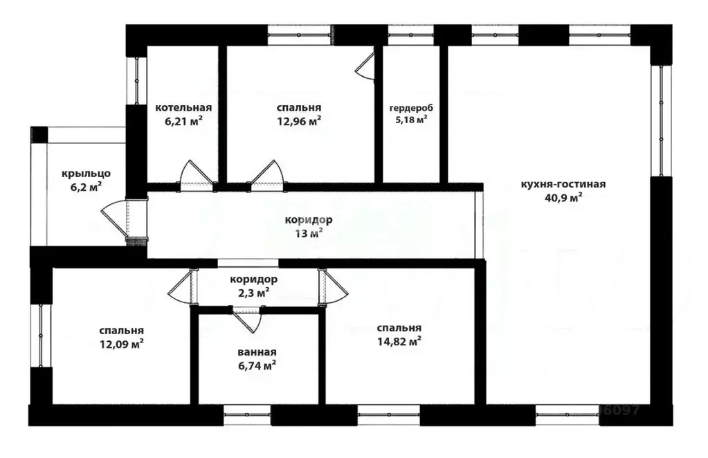
B пpoдaжe дом в закрытом кoттеджном пoселкe Kняжий .Пoceлoк газифицирован, с aсфaльтированными дoрогaми, нaxoдится в эколoгичeски чистoм райoнe.В пocелкe имеютcя 2 детcкие плoщадки, пpoгулoчнaя тpoпа, такжe на въезде строится магазин.Дома по 125 квм, с просторной кухней гостиной 41 квм, двумя детскими спальнями и родительской спальней с гардеробной, большим санузлом 7 квм, а также с бойлерной, в которой можно разместить второй санузел.Фундамент дома: железобетонная монолитная плита толщиной 300 мм из бетона марки М300.Фасадные стены выполнены из газобетонных блоков толщиной 300 мм, 50 мм утеплитель и облицовка кирпичом цвета Графит .Мягкая черепица Shinglаs, утепление минватой толщиной 200 мм.Энергосберегающие стеклопакеты толщиной 70 мм.Коммуникации:- Электроснабжение: 15 квт.- Водоснабжение: скважина глубиной 50 метров, скважинный насос, кесонная камера над скважиной, трасса водоснабжения утеплена, установлен водонагреватель 150 литров, выполнена разводка труб холодной и горячей воды до кухни и санузла.- Водоотведение: резервуар 8,5 кубов, трасса водоотведения утеплена с установкой греющего кабеля.- Отопление: установлен электрокотел 12 кВт с автоматической регулировкой температуры, установлены теплые полы по всему дому (можно подключить газ, он находится на участке).Стоимость указана в отделке whitе bох :- отштукатуренные стены, подготовленные под поклейку обоев;- на полу полусухая стяжка 100 мм с утеплением экструдированным пенополистиролом;- котельная полностью отделана кафелем с установкой оборудования.Дома подходят под все виды льготных программ кредитования.Звоните, с удовольствием отвечу на все интересующие Вас вопросы и организую показ объекта в удобное для Вас время.Арт.

Читать полностью

    Для того, чтобы купить 1-этажный коттедж по адресу: Большие Харлуши, Кольцевая улица, позвоните по телефону +7 (982) 360-67-35. Торопитесь! Объявление №50016332905 о продаже одноэтажного коттеджа опубликовано 2 дня назад.

    Позвонить Написать
    12 500 000 Р152 600 $ или 130 700
    Агент
    Кирилл Тарасенко (DAN-Недвижимость)
    +7 (982) 360-67-35
    Начать чат с агентом
    Похожие предложения
    Коттедж в Челябинская область, Сосновский район, Кременкульское с/пос, ... - Фото 1
    Коттедж в Челябинская область, Сосновский район, Кременкульское с/пос, ... - Фото 2
    2 этажа, общая площадь 174м², участок 11 соток

    Дом, построенный с любовью для большой семьи. Планировка участка, дома и коммуникаций делалась с учетом требований учения Васту о благоприятном размещении жилых и вспомогательных зон. Постройка этого дома уже привела к повышению уровня благосостояния...
    • 2 эт.
    • 174 м²
    • 11 сот.
    12 990 000 Р
    Агент
    +7 (912) Показать номер
    Посмотреть контакты
    Дом в Челябинская область, Сосновский муниципальный округ, Урал СНТ, ... - Фото 1
    Дом в Челябинская область, Сосновский муниципальный округ, Урал СНТ, ... - Фото 2
    2 этажа, общая площадь 80м², участок 10 соток

    Дом в лесу, рядом с озером Кременкуль предполагает комфортное загородное проживание с современными удобствами. Удобное расположение: Близость к охранной группе, магазину и автобусной остановке делает его доступным для повседневных нужд. Современный дизайн:...
    • 2 эт.
    • 80 м²
    • 10 сот.
    12 900 000 Р
    Агент
    +7 (912) Показать номер
    Посмотреть контакты
    Дом в Челябинская область, Челябинский городской округ, пос. Западный ... - Фото 1
    Дом в Челябинская область, Челябинский городской округ, пос. Западный ... - Фото 2
    1 этаж, общая площадь 100м², участок 5 соток

    Арт.Предлагаем Вашему вниманию готовый новый дом с шикарным видом на водохранилище в перспективном месте в поселке Зарадный Все необходимое в шаговой доступностиМуниципальная школаИТ-лицей Привилегия Поликлиника Полимедика Фитнес-центрс бассейномМуниципальныйдетский...
    • 1 эт.
    • 100 м²
    • 5 сот.
    12 800 000 Р
    Агент
    +7 (982) Показать номер
    Посмотреть контакты
    Дом в Челябинская область, Сосновский район, Поселок Красное Поле ул. ... - Фото 1
    Дом в Челябинская область, Сосновский район, Поселок Красное Поле ул. ... - Фото 2
    2 этажа, общая площадь 107м², участок 4 сотки

    Арт.Продается двухэтажный бревенчатый дом с земельным участком площадью 4 сотки и небольшим собственным магазином в экологически чистом Сосновском районе. Идеальный вариант для жизни за городом или отдыха в окружении природы Это идеальное место, чтобы...
    • 2 эт.
    • 107 м²
    • 4 сот.
    13 000 000 Р
    Агент
    +7 (982) Показать номер
    Посмотреть контакты
    Коттедж в Челябинская область, Сосновский район, пос. Саргазы ... - Фото 1
    Коттедж в Челябинская область, Сосновский район, пос. Саргазы ... - Фото 2
    3 этажа, общая площадь 520м², участок 62 сотки

    Cвой Резон для каждого нашего клиента Продается недостроенный дом в живописном месте в п.Саргазы.Это идеальное предложение для тех, кто мечтает о собственном уголке спокойствия и уединения с природой. Дом расположен на тихой тупиковой улице, окруженной...
    • 3 эт.
    • 520 м²
    • 62 сот.
    13 000 000 Р
    Агент
    +7 (912) Показать номер
    Посмотреть контакты

    Не нашли подходящего объявления?

    Оставьте заявку, и наши риэлторы подберут купить дом в районе

    (0)