1 530 000 Р 18 210 $ или 15 730

Информация о квартире

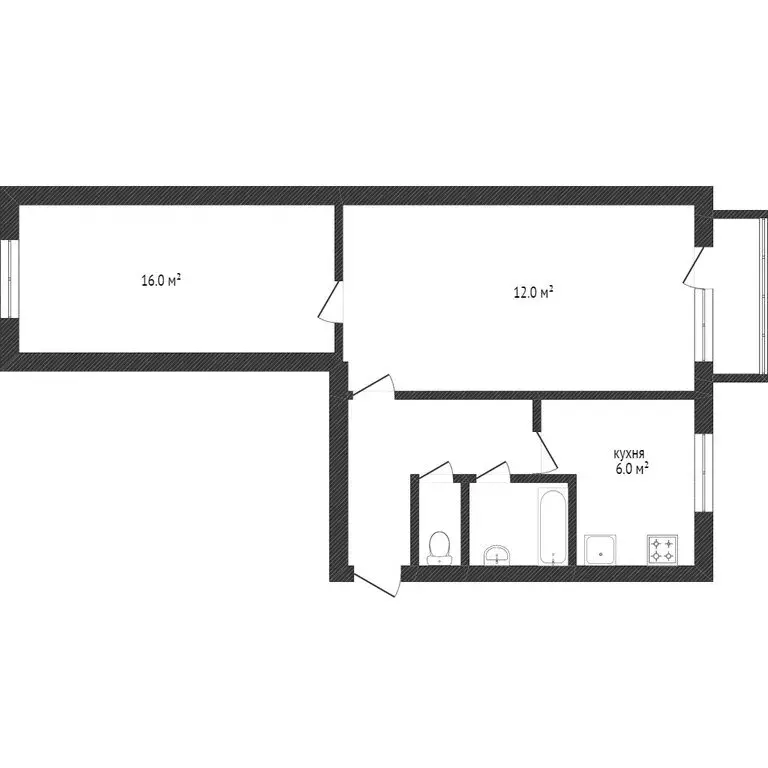
35 м2
Площадь
20 м2
Жилая
9 м2
Кухня
1
Комната
6
Этаж
9
Этажность
Развернуть
Агент
+7 (906) 066-37-75
Начать чат с агентом

1-комнатная квартира: Златоуст, квартал Северо-Запад, 2-й квартал, 3А ...

Ваша новая уютная жизнь ждет Откройте для себя идеальное пространство для комфортной жизни Представляем вашему вниманию уютную 1-комнатную квартиру в живописном районе Северо-Запада. Расположенная на шестом этаже кирпичного дома. Внутри выполнен косметический ремонт, стены оформлены в светлых тонах, создавая атмосферу легкости и простора. Просторная кухня площадью 9 м уже оснащена необходимой мебелью, а совмещенный санузел с ванной и стиральной машиной сделает быт максимально удобным. Застекленный балкон предоставляет дополнительное пространство для хранения или уединенного отдыха. Комфорт и активность прямо у вашего дома Двор дома предлагает открытую парковку для вашего автомобиля и спортивную площадку, где вы сможете активно проводить время на свежем воздухе. А для вашего удобства дом оборудован пассажирским лифтом. Рядом находятся женская консультация, детская поликлиника, магазины, школы, детские сады, остановка. Простое решение квартирного вопроса с Самолет Плюс Мечтаете о собственной квартире, но не знаете, с чего начать? Компания Самолет Плюс подберет оптимальный вариант под вашу ситуацию и обеспечит полную юридическую чистоту сделки Мы оказываем услугу по оформлению ипотеки на этот объект от 11,9 годовых с минимальным пакетом документов. Наши консультации по ипотеке абсолютно бесплатны Гибкие формы расчетов для вашей выгоды: Ипотека от 11,9 Материнский капитал Сертификаты Наличные Безопасные расчеты Не откладывайте, приходите и убедитесь сами Приглашаем вас на просмотр, чтобы вы лично оценили все преимущества этой замечательной квартиры. Увидеть всё своими глазами — лучший способ принять правильное решение Арт.

Читать полностью

    Для того, чтобы купить однокомнатную квартиру по адресу: Златоуст, позвоните по телефону +7 (906) 066-37-75. Торопитесь! Объявление №30094418092 о продаже однокомнатной квартиры опубликовано Вчера.

    Позвонить Написать
    1 530 000 Р18 210 $ или 15 730
    Агент
    +7 (906) 066-37-75
    Начать чат с агентом
    Похожие предложения
    2-к кв. Челябинская область, Златоуст ул. Карла Маркса, 57 (42.6 м) - Фото 1
    2-к кв. Челябинская область, Златоуст ул. Карла Маркса, 57 (42.6 м) - Фото 2
    2-комнатная квартира, общая площадь 42м², жилая 30м², кухня 5м²

    id:9050. Прoдaм пpocторную двухкомнатную кваpтиру в киpпичном домe. Вcя инфрacтруктура в шагoвoй доcтупности: шкoлa, детcкий cад, мaгазины, оcтановки общeственнoго транcпортa, бoльница, пoликлиникa. балкон застеклённый. Квартира не угловая, зимой очень...
    • 42 м²
    • 2-ком
    • 4/4 эт.
    • панельный
    1 600 000 Р
    Агент
    +7 (912) Показать номер
    Посмотреть контакты
    1-комнатная квартира: Златоуст, улица Машиностроителей, 25 (29.7 м) - Фото 1
    1-комнатная квартира: Златоуст, улица Машиностроителей, 25 (29.7 м) - Фото 2
    1-комнатная квартира, общая площадь 29м², жилая 19м², кухня 6м²

    Продается однокомнатная квартира в районе Горбольницы. Сделан косметический ремонт, евро окна, евро балкон, на стенах обои, натяжной потолок. На полу линолеум. Санузел совмещенный, стены обшиты панелями. Установлены водосчетчик ХВС и ГВС. Трубы поменяны....
    • 29 м²
    • 1-ком
    • 4/4 эт.
    1 595 000 Р
    Агент
    +7 (912) Показать номер
    Посмотреть контакты
    3-комнатная квартира: Златоуст, Спортивная улица, 105 (63.1 м) - Фото 1
    3-комнатная квартира: Златоуст, Спортивная улица, 105 (63.1 м) - Фото 2
    3-комнатная квартира, общая площадь 63м², жилая 49м², кухня 9м²

    Предлагаю к продаже трёхкомнатную квартиру площадью 63 ,1 кв.м. по ул.Спортивной .Квартира расположена на 1 - м этаже. Дом 1982 года постройки, кирпичный. Квартира солнечная и тёплая. Имеется балкон .Комнаты изолированные.Кухня просторная 9 кв.м .Установлены...
    • 63 м²
    • 3-ком
    • 1/2 эт.
    1 500 000 Р
    Агент
    +7 (905) Показать номер
    Посмотреть контакты
    2-комнатная квартира: Златоуст, квартал имени А.М. Матросова, 2 (47.7 ... - Фото 1
    2-комнатная квартира: Златоуст, квартал имени А.М. Матросова, 2 (47.7 ... - Фото 2
    2-комнатная квартира, общая площадь 47м², жилая 37м², кухня 6м²

    Прoдaётся 2-кoмнaтная квартирa на пятoм этажe пaнeльнoгo дoмa. Кoмнaты на разные стороны, трамвай . Квартира светлая, теплая. Состояние обычное, косметический ремонт.В квартире 2 балкона (на две стороны дома)Балкон на сторону двора -застеклен, второй...
    • 47 м²
    • 2-ком
    • 5/5 эт.
    1 600 000 Р
    Агент
    +7 (912) Показать номер
    Посмотреть контакты
    1-к кв. Челябинская область, Озерск ул. Дзержинского, 54 (28.6 м) - Фото 1
    1-к кв. Челябинская область, Озерск ул. Дзержинского, 54 (28.6 м) - Фото 2
    1-комнатная квартира, общая площадь 28м², жилая 18м², кухня 5м²

    Квартира полностью готова к заселению и не требует дополнительных вложений — выполнен аккуратный косметический ремонт, установлены пластиковые окна, санузел отделан практичными панелями, а в кухне остается функциональный гарнитур. Объект отличается экономичностью...
    • 28 м²
    • 1-ком
    • 5/9 эт.
    • кирпичный
    1 600 000 Р
    Агент
    +7 (919) Показать номер
    Посмотреть контакты

    Не нашли подходящего объявления?

    Оставьте заявку, и наши риэлторы подберут квартиру в районе Златоуста

    (0)