Россия, Челябинская область, Златоуст, улица Ф.Ф. Сыромолотова, 4

Реализация объекта недвижимости приостановлена

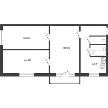
Информация о квартире

50.0 м2
Площадь
37.0 м2
Жилая
8.0 м2
Кухня
2
Комнаты
5
Этаж
5
Этажность
Развернуть

2-комнатная квартира: Златоуст, улица Ф.Ф. Сыромолотова, 4 (50.3 м)

Продается светлая двухкомнатная квартира на пятом этаже панельного дома в хорошем состоянии. Объект отличается выгодной планировкой с изолированными комнатами и раздельным санузлом, что обеспечивает комфортное проживание для семьи или пары. Кухня площадью 9 квадратных метров функциональна и позволяет организовать полноценную обеденную зону. В квартире аккуратный косметический ремонт, установлены современные евроокна и надежная входная дверь, все инженерные системы оснащены счетчиками учета. Ключевым преимуществом является уникальный панорамный вид из окон на гору Косотур, городской пруд и хребет Таганай, что создает ощущение простора и ежедневно радует глаз. Собственники — двое взрослых, в квартире никто не прописан, отсутствуют какие-либо долги по коммунальным платежам. Рассматриваются все варианты расчета, включая ипотечное кредитование и использование материнского капитала, с возможностью проведения безопасной безналичной сделки. Это надежный и перспективный объект для тех, кто ценит четкость юридических условий, удобство планировки и исключительные видовые характеристики жилья. Код пользователя: 90495Номер в базе:

Читать полностью

    Реализация объекта недвижимости приостановлена

    Не нашли подходящего объявления?

    Оставьте заявку, и наши риэлторы подберут квартиру в районе Златоуста

    (0)