Россия, Челябинская область, Златоуст, квартал имени А.М. Матросова,

Реализация объекта недвижимости приостановлена

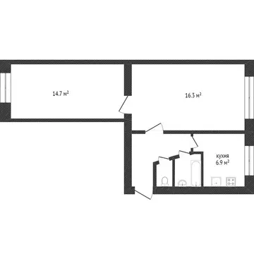
Информация о квартире

63.0 м2
Площадь
56.0 м2
Жилая
6.0 м2
Кухня
3
Комнаты
3
Этаж
5
Этажность
Развернуть

3-комнатная квартира: Златоуст, квартал имени А.М. Матросова, 5А (63.6 ...

Описание квартиры Предлагается трёхкомнатная квартира без ремонта. В ноябре 2025 года были установлены новый унитаз, краны в ванной, а также новые трубы горячего и холодного водоснабжения и водоотведения. Установлены счётчики на воду. Квартира тёплая, а соседи — спокойные взрослые люди. Находится на среднем этаже (3-й этаж) в доме. Юридическая чистота сделки Мы гарантируем юридическую чистоту сделки. Все документы готовы к оформлению, что позволит вам без лишних хлопот стать владельцем этой квартиры. Компания Самолет Плюс Работаем в сотрудничестве с компанией Самолет Плюс, которая поможет вам с оформлением ипотеки на данный объект по ставке от 12,25 годовых с минимальным пакетом документов. Мы сделаем процесс покупки максимально комфортным и выгодным для вас. Организация просмотра Если вас заинтересовало данное предложение, мы с радостью организуем просмотр квартиры в удобное для вас время. Все вопросы можно обсудить по телефону. Не упустите возможность стать владельцем этой уютной квартиры Арт.

Читать полностью

    Реализация объекта недвижимости приостановлена

    Не нашли подходящего объявления?

    Оставьте заявку, и наши риэлторы подберут квартиру в районе Златоуста

    (0)