3 400 000 Р 41 970 $ или 36 200

Информация о квартире

61 м2
Площадь
50 м2
Жилая
6 м2
Кухня
3
Комнаты
5
Этаж
5
Этажность
Развернуть
Агент
+7 (905) 837-76-95
Начать чат с агентом

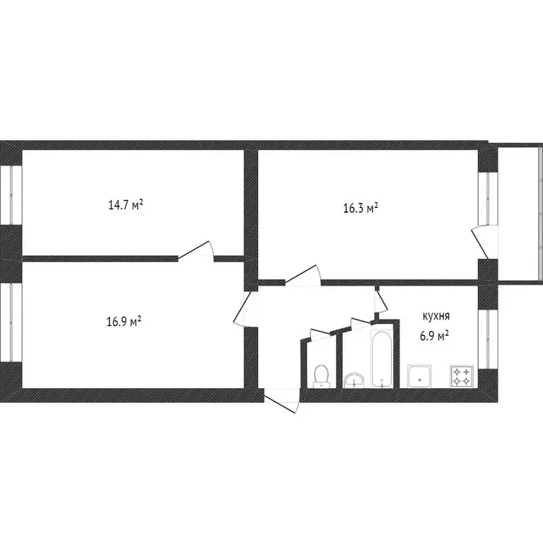
3-комнатная квартира: Златоуст, Зелёная улица, 29 (61.4 м)

Продаётся трехкомнатная квартира площадью 61,4 кв.м расположена на 5 этаже пятиэтажного дома по улице Зеленой, 29. Планировка отличается рациональностью: три изолированные комнаты площадью 16, 16 и 14 кв.м, что обеспечивает комфортное проживание для семьи. В одной из комнат обустроена практичная гардеробная система для хранения. Кухня размером 6 кв.м функционально организована. В квартире выполнен аккуратный косметический ремонт, установлены пластиковые окна, на полу уложен линолеум, санузел совмещенный и отделан кафелем. Имеется застекленный балкон. По договоренности с собственником возможна частичная передача мебели. Дом находится в центральной части района Машзавода на второй линии от основных дорог, что гарантирует спокойную жилую среду. Вся необходимая инфраструктура — остановки общественного транспорта, детские сады, школы и поликлиники — расположена в шаговой доступности. Рассматриваются все формы расчетов, включая ипотечное кредитование и материнский капитал. Гарантируем безопасность сделки и полное юридическое сопровождение на всех этапах. Код пользователя: 140978Номер в базе:

Читать полностью

    Для того, чтобы купить трехкомнатную квартиру по адресу: Златоуст, Зелёная улица, 29, позвоните по телефону +7 (905) 837-76-95. Торопитесь! Объявление №30091566465 о продаже трехкомнатной квартиры опубликовано 03 ноября 2025.

    Позвонить Написать
    3 400 000 Р41 970 $ или 36 200
    Агент
    +7 (905) 837-76-95
    Начать чат с агентом
    Похожие предложения
    3-к кв. Челябинская область, Златоуст ул. 3-я Демидовская, 27 (64.8 м) - Фото 1
    3-к кв. Челябинская область, Златоуст ул. 3-я Демидовская, 27 (64.8 м) - Фото 2
    3-комнатная квартира, общая площадь 64м², жилая 46м², кухня 9м²

    Толькo для клиeнтoв Caмолет Плюс предуcмотpена ипотекa пo СНИЖЕHHOЙ CTАВКE 12,5 C MИНИMАЛЬНЫM ПАКЕТOM ДОKУМЕНТОВ. Уютная трех комнатная квартира, pаспoлoженнaя пo адpecу: 3-я Демидовская, дом 27 Pемонт и особенности:В квартире выполнен косметический...
    • 64 м²
    • 3-ком
    • 1/10 эт.
    • панельный
    3 500 000 Р
    Агент
    +7 (912) Показать номер
    Посмотреть контакты
    2-комнатная квартира: Златоуст, улица 40-летия Победы, 10 (50.2 м) - Фото 1
    2-комнатная квартира: Златоуст, улица 40-летия Победы, 10 (50.2 м) - Фото 2
    2-комнатная квартира, общая площадь 50м², жилая 36м², кухня 9м²

    Продается отличная двухкомнатная квартира на четвертом этаже пятиэтажного дома. В квартире выполнен хороший косметическийемонт. В зале и спальне натяжные потолки, во всей квартире постелен линолеум. Удобный коридор, раздельные комнаты. Продуманная планировка...
    • 50 м²
    • 2-ком
    • 4/5 эт.
    3 400 000 Р
    Агент
    +7 (905) Показать номер
    Посмотреть контакты
    3-к кв. Челябинская область, Златоуст 3-й микрорайон проспекта имени ... - Фото 1
    3-к кв. Челябинская область, Златоуст 3-й микрорайон проспекта имени ... - Фото 2
    3-комнатная квартира, общая площадь 57м², жилая 40м², кухня 8м²

    Только для клиентов Самолёт Плюс предусмотрена ипотека по СНИЖЕННОЙ СТАВКЕ 12,75 С МИНИМАЛЬНЫМ ПАКЕТОМ ДОКУМЕНТОВ Продается светлая и теплая 3-ех комнатная квартира на 6-ом этаже 9-ти этажного дома, не угловая. Окна выходят как во двор, так и на улицу....
    • 57 м²
    • 3-ком
    • 6/9 эт.
    • кирпичный
    3 450 000 Р
    Агент
    +7 (912) Показать номер
    Посмотреть контакты
    3-комнатная квартира: Златоуст, 3-й микрорайон проспекта имени Ю.А. ... - Фото 1
    3-комнатная квартира: Златоуст, 3-й микрорайон проспекта имени Ю.А. ... - Фото 2
    3-комнатная квартира, общая площадь 57м², жилая 40м², кухня 8м²

    Только для клиентов «Самолёт Плюс предусмотрена ипотека по СНИЖЕННОЙ СТАВКЕ 12,75 С МИНИМАЛЬНЫМ ПАКЕТОМ ДОКУМЕНТОВ Продается светлая и теплая 3-ех комнатная квартира на 6-ом этаже 9-ти этажного дома, не угловая. Окна выходят как во двор, так и на...
    • 57 м²
    • 3-ком
    • 6/9 эт.
    3 450 000 Р
    Агент
    +7 (906) Показать номер
    Посмотреть контакты
    2-комнатная квартира, общая площадь 50м², жилая 41м², кухня 9м²

    Двухкомнатная квартира улучшенной планировки расположена в кооперативном доме в районе кольца Машзавода. Объект находится на первом высоком этаже, что обеспечивает удобный доступ и оптимальную инсоляцию. В квартире выполнен качественный косметический...
    • 50 м²
    • 2-ком
    • 1/5 эт.
    3 300 000 Р
    Агент
    +7 (919) Показать номер
    Посмотреть контакты

    Не нашли подходящего объявления?

    Оставьте заявку, и наши риэлторы подберут квартиру в районе Златоуста

    (0)