4 100 000 Р 50 610 $ или 43 650

Информация о квартире

51 м2
Площадь
9 м2
Кухня
2
Комнаты
5
Этаж
5
Этажность

Дополнительная информация

Тип дома
кирпичный
Развернуть
Агент
+7 (982) 341-29-85
Начать чат с агентом

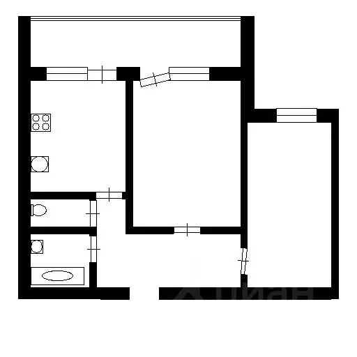
2-к кв. Челябинская область, Южноуральск ул. Мира, 57А (51.1 м)

Двухкомнатная квартира в Южноуральске по адресу ул. Мира, 57а предлагает комфортное проживание в кирпичном пятиэтажном доме с улучшенной планировкой. Общая площадь 51,1 м включает просторную кухню 9 м, что позволяет удобно организовать обеденную зону и место для готовки. Изолированные комнаты, раздельный санузел повышает удобство для жильцов. Окна выходят на обе стороны дома, создавая хорошую естественную освещенность и проветривание. Все окна заменены на современные стеклопакеты, балкон застеклен по евростандарту, что улучшает тепло- и шумоизоляцию. Квартира расположена на пятом этаже, что гарантирует отсутствие шума от соседей сверху. Дворовая территория благоустроена, в шаговой доступности находится СОШ 7, что особенно удобно для семей с детьми. Дом расположен в развитом районе с необходимой инфраструктурой: магазины, остановки общественного транспорта и другие социальные объекты находятся рядом. Квартира готова к проживанию. Два взрослых собственника. Юридическое сопровождение. Код пользователя: 154017Номер в базе: 7707849

Читать полностью

    Для того, чтобы купить двухкомнатную квартиру по адресу: Южноуральск, ул. Мира, 57А, позвоните по телефону +7 (982) 341-29-85. Торопитесь! Объявление №30089842270 о продаже двухкомнатной квартиры опубликовано 29 октября 2025.

    Позвонить Написать
    4 100 000 Р50 610 $ или 43 650
    Агент
    +7 (982) 341-29-85
    Начать чат с агентом
    Похожие предложения
    2-к кв. Челябинская область, Южноуральск ул. Мира, 57 (53.1 м) - Фото 1
    2-к кв. Челябинская область, Южноуральск ул. Мира, 57 (53.1 м) - Фото 2
    2-комнатная квартира, общая площадь 53м², жилая 30м², кухня 9м²

    Продам двухкомнатную квартиру улучшенной планировки общей площадью 53,1 кв.м., которая находится на втором этаже пятиэтажного кирпичного дома. Квартира перепланирована, зал совмещен с кухней, спальня изолирована. Квартира в хорошем состоянии, выполнен...
    • 53 м²
    • 2-ком
    • 2/5 эт.
    4 100 000 Р
    Агент
    +7 (912) Показать номер
    Посмотреть контакты
    2-комнатная квартира: Магнитогорск, улица Куйбышева, 18 (47.3 м) - Фото 1
    2-комнатная квартира: Магнитогорск, улица Куйбышева, 18 (47.3 м) - Фото 2
    2-комнатная квартира, общая площадь 47м², жилая 32м², кухня 6м²

    id:46847. ВНИМАНИЕ ЭКСКЛЮЗИВНОЕ ПРЕДЛОЖЕНИЕ РИО-ЛЮКС Предлагаем Вашему вниманию квартиру в исторической части Ленинского района города Магнитогорск Для кого это предложение:Идеально подходит для семьи, которая ценит комфортное расположение квартиры,...
    • 47 м²
    • 2-ком
    • 1/4 эт.
    4 000 000 Р
    Агент
    +7 (982) Показать номер
    Посмотреть контакты
    Квартира-студия: Челябинск, улица Университетская Набережная, 46 (28.2 ... - Фото 1
    Квартира-студия: Челябинск, улица Университетская Набережная, 46 (28.2 ... - Фото 2
    студия, общая площадь 28м², жилая 20м²

    Арт.Предлагаем квартиру-студию современного планировочного решения в Академ Риверсайд, ул. Университетская Набережная, 46. Общая площадь квартиры без учета балкона 28,2 кв.м. В квартире грамотная планировка жилого пространства: просторная комната правильной...
    • 28 м²
    • студия-ком
    • 15/26 эт.
    4 000 000 Р
    Агент
    +7 (982) Показать номер
    Посмотреть контакты
    1-комнатная квартира: Магнитогорск, улица Тевосяна, 4/1 (41.6 м) - Фото 1
    1-комнатная квартира: Магнитогорск, улица Тевосяна, 4/1 (41.6 м) - Фото 2
    1-комнатная квартира, общая площадь 41м², жилая 17м², кухня 11м²

    id:46818. Представляем вашему вниманию уютную однокомнатную квартиру в кирпичном доме по адресу ул. Тевосяна, 4/1, которая станет идеальным решением для комфортной жизни.Этот жилой комплекс гармонично сочетает в себе надежность, уют и прекрасную локациюКвартира...
    • 41 м²
    • 1-ком
    • 6/9 эт.
    4 100 000 Р
    Агент
    +7 (925) Показать номер
    Посмотреть контакты
    3-комнатная квартира: Златоуст, улица Румянцева, 93 (66.5 м) - Фото 1
    3-комнатная квартира: Златоуст, улица Румянцева, 93 (66.5 м) - Фото 2
    3-комнатная квартира, общая площадь 66м², жилая 53м², кухня 9м²

    Просторная трехкомнатная квартира в районе Железнодорожного вокзала предлагает рациональную планировку с изолированными комнатами, что обеспечивает комфортное проживание для семьи. Ключевые помещения включают кухню площадью 9 кв. м., выполняющую роль...
    • 66 м²
    • 3-ком
    • 8 эт.
    4 200 000 Р
    Агент
    +7 (982) Показать номер
    Посмотреть контакты

    Не нашли подходящего объявления?

    Оставьте заявку, и наши риэлторы подберут квартиру в районе Южноуральска

    (0)