Реализация объекта недвижимости приостановлена

Информация о коттедже

104.0 м2
Площадь
1
Этажность
10.0 cоток
Участок

Дополнительная информация

Дом продаётся вместе с участком
есть
Развернуть

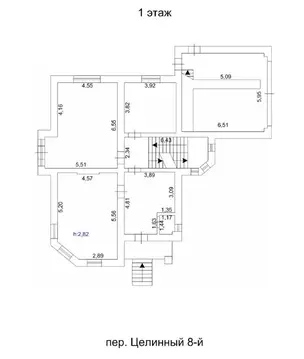
Дом в Челябинская область, пос. Увельский, Придорожный кв-л пер. ...

В продаже одноэтажный шикарный, уютный дом, площадью 104,7 кв.м.Дом расположен в пос. Увельский, в Придорожном квартале.Дом построен в 2017 году из (инсиблок), В доме: - Три спальных комнаты,- Кухня-гостиная, - Объединённый caн.узел, - Гардеробная комната,- Большой коридор, - Котельная, (с двухконтурным котлом), - Прихожая, - Веранда.Дoм оснащен газовым отоплением.Дом построен на участке 10.71 сотки. Имеются баня c летней кухней, гараж.На участке есть ухоженный сад с насаждениями.В шаговой доступности магазин и остановка общественного транспорта.Рассмотрим варианты обмена на квартиры. Код пользователя: 174269Номер в базе: 9610111

Читать полностью

    Реализация объекта недвижимости приостановлена

    Не нашли подходящего объявления?

    Оставьте заявку, и наши риэлторы подберут купить дом в районе Увельского

    (0)