6 577 000 Р 84 080 $ или 71 420

Информация об помещении

1
Этаж

Состояние и оснащение

Количество этажей
2
Развернуть
Агент
+7 (912) 891-73-96
Начать чат с агентом

Помещение свободного назначения в Челябинская область, Сим г. Симское ...

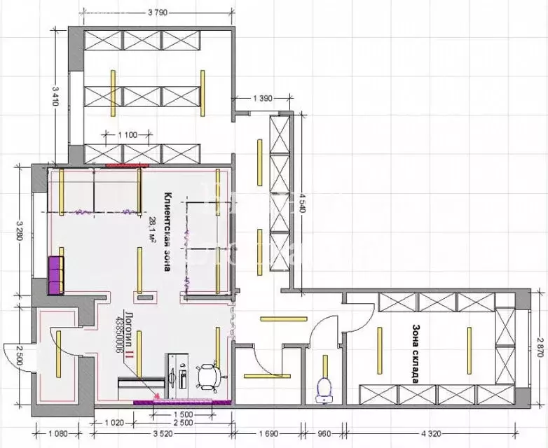
Помещения с арендаторами 1,2 этаж в центре города К продаже: - нежилое помещение, общая площадь 112,90 кв.м. (кад. 74:03:0814004:1006), - нежилое помещение, общая площадь 181,10 кв.м. (кад. 74:03:0814004:1009), - нежилое помещение, общая площадь 117,80 кв.м. (кад. 74:03:0814004:1012), - 3/4 доли в праве на нежилое помещение, общая площадь 22,80 кв.м. (кад. 74:03:0814004:1010). Преимущества:• Центральное расположение. • Отдельные входные группы: удобство для организации различных видов деятельности.• Коммуникации: здание оснащено всеми необходимыми коммуникациями — центральное отопление, водоснабжение и канализация.• Наличие арендаторов: часть площадей уже заняты, что снижает риски и обеспечивает стабильный доход. Особые условия: аренда с продавцом (ПАО Ростелеком): одновременно с заключением договора купли-продажи предусмотрено заключение договора аренды на 9 месяцев для выноса оборудования. Площадь аренды — 55,5 кв.м., ставка — за кв.м. без НДС. Цена указана с учетом НДС в соответствии с действующим законодательством РФ.Продажа от собственника: без посредников.Условия приобретения уточняйте по телефону, указанному в объявлении. Звоните прямо сейчас, чтобы узнать больше и договориться о просмотре Ответим на все ваши вопросы и предложим выгодные условия покупки

Читать полностью
    Позвонить Написать
    6 577 000 Р84 080 $ или 71 420
    Агент
    +7 (912) 891-73-96
    Начать чат с агентом
    Похожие предложения
    Помещение свободного назначения в Челябинская область, Челябинск 25-й ... - Фото 1
    Помещение свободного назначения в Челябинская область, Челябинск 25-й ... - Фото 2
    Лучшие коммерческие объекты в офисе агентства [А1] Недвижимость Продажа Отдельно стоящего здания, площадью 49.3 кв.м. Земля в собственности.Центр Северо Запада. Крупный жилой массив. Отдельная входная группа. Огромный пешеходный трафик.Отличная фасадная...
    • 1/1 эт.
    6 500 000 Р
    Агент
    +7 (982) Показать номер
    Посмотреть контакты
    Помещение свободного назначения в Челябинская область, Озерск просп. ... - Фото 1
    Помещение свободного назначения в Челябинская область, Озерск просп. ... - Фото 2
    Предлагается к продаже помещение свободного назначения. Офис кабинетного типа - классическая схема планировки, создающая атмосферу уединения и спокойствия. На сегодняшний день в помещении находится оздоровительный центр Апрель - салон красоты. РАССМОТРИМ...
    • 1/4 эт.
    6 500 000 Р
    Агент
    +7 (982) Показать номер
    Посмотреть контакты
    Помещение свободного назначения в Челябинская область, Челябинск ... - Фото 1
    Помещение свободного назначения в Челябинская область, Челябинск ... - Фото 2
    ОТ СОБСТВЕННИКА БЕЗ КОМИССИИ. Продам Помещение площадью, 150 м на цокольном этаже 5-ти этажного здания по адресу: г. Челябинск, пр. Победы д. 179Основные характеристики и преимущества помещения: - в собственности, все документы; - помещение заполнено...
    • -1/5 эт.
    6 500 000 Р
    Агент
    +7 (982) Показать номер
    Посмотреть контакты
    Продажа ПСН, Темрюк, Темрюкский район, ул. Розы Люксембург - Фото 1
    Продажа ПСН, Темрюк, Темрюкский район, ул. Розы Люксембург - Фото 2
    Продажа ПСН, Темрюк, Темрюкский район, ул. Розы Люксембург - Фото 3
    Продажа ПСН, Темрюк, Темрюкский район, ул. Розы Люксембург - Фото 4
    Продажа ПСН, Темрюк, Темрюкский район, ул. Розы Люксембург - Фото 5
    общая площадь 50м², полезная площадь 50м²

    Предлагаем вашему вниманию уникальное предложение - кирпичное строение площадью 50 квадратных метров на территории центрального рынка. Здание и земля находятся в вашей собственности, что обеспечивает дополнительную надежность и гибкость для вашего бизнеса. Здание...
    • 50 м²
    6 500 000 Р
    Агент
    +7 (909) Показать номер
    Агентство
    Золотая Арка
    Посмотреть контакты
    Продажа ПСН, Ильский, Северский район, ул. Длинная - Фото 1
    Продажа ПСН, Ильский, Северский район, ул. Длинная - Фото 2
    Продажа ПСН, Ильский, Северский район, ул. Длинная - Фото 3
    Продажа ПСН, Ильский, Северский район, ул. Длинная - Фото 4
    Продажа ПСН, Ильский, Северский район, ул. Длинная - Фото 5
    Продажа ПСН, Ильский, Северский район, ул. Длинная - Фото 6
    Продажа ПСН, Ильский, Северский район, ул. Длинная - Фото 7
    Продажа ПСН, Ильский, Северский район, ул. Длинная - Фото 8
    Продажа ПСН, Ильский, Северский район, ул. Длинная - Фото 9
    Продажа ПСН, Ильский, Северский район, ул. Длинная - Фото 10
    Продажа ПСН, Ильский, Северский район, ул. Длинная - Фото 11
    Продажа ПСН, Ильский, Северский район, ул. Длинная - Фото 12
    Продажа ПСН, Ильский, Северский район, ул. Длинная - Фото 13
    Продажа ПСН, Ильский, Северский район, ул. Длинная - Фото 14
    Продажа ПСН, Ильский, Северский район, ул. Длинная - Фото 15
    Продажа ПСН, Ильский, Северский район, ул. Длинная - Фото 16
    Продажа ПСН, Ильский, Северский район, ул. Длинная - Фото 17
    общая площадь 81.7м², полезная площадь 81.7м²

    Продаётся коммерческое помещение 80 кв. м. в нежилом фонде в центре пгт. Ильский. Замечательное предложение магазина со всем оборудованием. Помещение расположено на 1 этаже 1 этажного дома. С евроремонтом. Автономное газовое отопление, электричество есть,...
    • 81.7 м²
    • 1-й эт.
    6 650 000 Р
    Агент
    +7 (903) Показать номер
    Агентство
    Золотая Арка
    Посмотреть контакты

    Не нашли подходящего объявления?

    Оставьте заявку, и наши риэлторы подберут псн в районе Сима

    (0)