2 900 000 Р 36 550 $ или 31 200

Информация о квартире

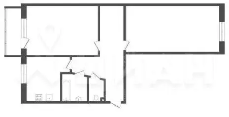
40 м2
Площадь
18 м2
Жилая
9 м2
Кухня
1
Комната
5
Этаж
9
Этажность
Развернуть
Агент
+7 (905) 837-32-53
Начать чат с агентом

1-комнатная квартира: Миасс, Керченская улица, 40 (40.4 м)

Представляю к продаже просторную однокомнатную квартиру 40,4 кв.м. Расположена на 5 этаже 9ти этажного панельного дома. Квартира не угловая, окна выходят на восток. В квартире установлены пластиковые окна, балкон застеклен. Туалет и ванная без ремонта. Дом отлично расположен, рядом детский садик и школа с бассейном, поликлиника, городской пруд в 5 минутах ходьбы.Рассмотрим обмен на 1-2 к. квартиру на Автозаводе. Код пользователя: 57713Номер в базе:

Читать полностью

    Для того, чтобы купить однокомнатную квартиру по адресу: Миасс, ул. Керченская, 40, позвоните по телефону +7 (905) 837-32-53. Торопитесь! Объявление №30092171132 о продаже однокомнатной квартиры опубликовано 02 декабря 2025.

    Позвонить Написать
    2 900 000 Р36 550 $ или 31 200
    Агент
    +7 (905) 837-32-53
    Начать чат с агентом
    Похожие предложения
    2-комнатная квартира: Миасс, Молодёжная улица, 24 (41.2 м) - Фото 1
    2-комнатная квартира: Миасс, Молодёжная улица, 24 (41.2 м) - Фото 2
    2-комнатная квартира, общая площадь 41м², жилая 30м², кухня 8м²

    Продается двухкомнатная квартира с раздельными комнатами по адресу ул. Молодежная д.24 . Ключевым преимуществом является увеличенная кухня площадью 8 кв. м, что создает удобное и функциональное пространство для приготовления пищи и семейных обедов.В квартире...
    • 41 м²
    • 2-ком
    • 1/5 эт.
    3 000 000 Р
    Агент
    +7 (905) Показать номер
    Посмотреть контакты
    2-к кв. Челябинская область, Миасс ул. Ильмен-Тау, 5 (49.0 м) - Фото 1
    2-к кв. Челябинская область, Миасс ул. Ильмен-Тау, 5 (49.0 м) - Фото 2
    2-комнатная квартира, общая площадь 49м², жилая 38м², кухня 6м²

    Код объекта: 1953145.К продаже представлена двух-комнатная квартира в кирпичном доме по адресу Ильмен-тау 5 , общая площадь квартиры 45 кв.м., третий этаж пятиэтажного этажного дома.Дом находиться в спокойном тихом районе с удобной транспортной доступностью,...
    • 49 м²
    • 2-ком
    • 3/5 эт.
    • кирпичный
    2 900 000 Р
    Агент
    +7 (912) Показать номер
    Посмотреть контакты
    1-комнатная квартира: Миасс, Парковая улица, 2Б (33 м) - Фото 1
    1-комнатная квартира: Миасс, Парковая улица, 2Б (33 м) - Фото 2
    1-комнатная квартира, общая площадь 33м², жилая 17м², кухня 6м²

    Готовое Решение для Аренды или Вашего Комфорта 1-комнатная квартира в Миассе на 1 этаже Ищете выгодное инвестиционное предложение или уютное жилье для себя? Представляем вашему вниманию светлую и функциональную 1-комнатную квартиру в живописном городе...
    • 33 м²
    • 1-ком
    • 1/5 эт.
    3 000 000 Р
    Агент
    +7 (912) Показать номер
    Посмотреть контакты
    1-комнатная квартира: Миасс, Садовый переулок, 3 (35 м) - Фото 1
    1-комнатная квартира: Миасс, Садовый переулок, 3 (35 м) - Фото 2
    1-комнатная квартира, общая площадь 35м², жилая 20м², кухня 9м²

    В продаже квартира в самом центре поселка Строительный, расположена на 2 этаже 9 этажного дома, окна выходят во двор.Кухня 9 квадратов, комната 16, санузел раздельный. Балкон застеклен. В коридоре вместительный шкаф. Квартира расположена в тамбуре на...
    • 35 м²
    • 1-ком
    • 2/9 эт.
    2 900 000 Р
    Агент
    +7 (905) Показать номер
    Посмотреть контакты
    1-к кв. Челябинская область, Миасс ул. Циолковского, 12 (30.7 м) - Фото 1
    1-к кв. Челябинская область, Миасс ул. Циолковского, 12 (30.7 м) - Фото 2
    1-комнатная квартира, общая площадь 30м², жилая 18м², кухня 6м²

    Продается уютная 1 комнатная квартира на Машгородке в районе 10 школы, по ул. Циолковского дом 12. Дом кирпичный, квартира теплая, есть застекленный балкон, установлены евроокна. Расположена на 4 этаже. Окна выходят на солнечные стороны света- запад...
    • 30 м²
    • 1-ком
    • 4/5 эт.
    • кирпичный
    2 950 000 Р
    Агент
    +7 (982) Показать номер
    Посмотреть контакты

    Не нашли подходящего объявления?

    Оставьте заявку, и наши риэлторы подберут квартиру в районе Миасса

    (0)