Реализация объекта недвижимости приостановлена

Информация о квартире

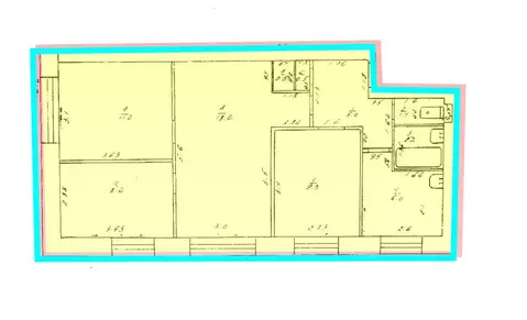
51.0 м2
Площадь
34.0 м2
Жилая
9.0 м2
Кухня
2
Комнаты
1
Этаж
5
Этажность
Развернуть

2-комнатная квартира: Миасс, улица Ильмен-Тау, 9Б (51.9 м)

Код объекта: 1934447.Продается 2-комнатная квартира улучшенной планировки по адресу : улица Ильмен-Тау 9б . Дом находится внутри микрорайона, удален от дорог. Тихий спокойный двор. Дом ухоженный, подъезд чистый. Квартира имеет площадь 51,9 квадратных метров. Состояние хорошее, чистое . На кухне и в коридоре свежий только оконченный ремонт. В зале ремонт 2022 года. При продаже остается шкаф- купе в коридоре , кухонный гарнитур с техникой. 1 взрослый собственник. Звоните по всем вопросам

Читать полностью

    Реализация объекта недвижимости приостановлена

    Не нашли подходящего объявления?

    Оставьте заявку, и наши риэлторы подберут квартиру в районе Миасса

    (0)