4 550 000 Р 55 930 $ или 48 060

Информация о квартире

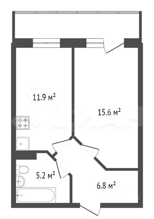
40 м2
Площадь
24 м2
Жилая
9 м2
Кухня
1
Комната
4
Этаж
10
Этажность

Дополнительная информация

Тип дома
панельный
Развернуть
Агент
+7 (912) 891-50-11
Начать чат с агентом

1-к кв. Челябинская область, Миасс ул. Нахимова, 3 (40.7 м)

Просторная 1-комнатная квартира в новом доме по улице Нахимова, д.3 — комфорт и удобство для современной жизниОсновные характеристикиПлощадь квартиры — 40,7 кв.м, расположена на 4 этаже из 10 этажей.Квартира светлая, окна выходят на юг, что дарит много естественного света.Выполнен современный ремонт: ламинат 33 класса, моющиеся обои, плитка в санузле, две межкомнатные двери, сейфовая входная дверь.Балкон застеклен, что позволяет проводить время на свежем воздухе в любое время года.Оснащение и мебельВ продаже остается новый шкаф в коридоре.На кухне установлен кухонный гарнитур с вытяжкой, варочной поверхностью и духовым шкафом.Холодильник, стол и стулья входят в комплект.В комнате — диван, гостиная мебель и шторы.Удобства домаВ доме грузовой лифт класса люкс с нулевого этажа, что особенно удобно для подъема с коляской.Видеонаблюдение в лифте обеспечивает дополнительную безопасность.Инфраструктура районаВ пешей доступности находятся городская больница 3, школа, детские сады 100 и 101, магазины, аптеки и Дом культуры Строителей.Район с развитой и удобной инфраструктурой, зелёный и комфортный для жизни.Условия продажиВозможен наличный расчет, ипотека на выгодных условиях с минимальным пакетом документов.Компания Самолет Плюс оказывает полное сопровождение сделки и бесплатные консультации по ипотеке.Организация просмотраПросмотр квартиры возможен по предварительной договоренности в удобное для вас время.Идеальный выбор для тех, кто хочет жить с комфортом в новом доме с развитой инфраструктурой и безопасными условиями сделки.Арт.

Читать полностью

    Для того, чтобы купить однокомнатную квартиру по адресу: Миасс, ул. Нахимова, 3, позвоните по телефону +7 (912) 891-50-11. Торопитесь! Объявление №30090879753 о продаже однокомнатной квартиры опубликовано 19 октября 2025.

    Позвонить Написать
    4 550 000 Р55 930 $ или 48 060
    Агент
    +7 (912) 891-50-11
    Начать чат с агентом
    Похожие предложения
    2-комнатная квартира: Миасс, улица Нахимова, 12 (52 м) - Фото 1
    2-комнатная квартира: Миасс, улица Нахимова, 12 (52 м) - Фото 2
    2-комнатная квартира, общая площадь 52м², жилая 47м², кухня 5м²

    В продаже отличная, двухкомнатная квартира на седьмом этаже панельного дома. Квартира улучшенной планировки, окна выходят на две солнечные стороны. Установлены пластиковые окна, балкон застеклен, железная дверь. В квартире требуется косметический ремонт....
    • 52 м²
    • 2-ком
    • 5/10 эт.
    4 500 000 Р
    Агент
    +7 (905) Показать номер
    Посмотреть контакты
    2-к кв. Челябинская область, Миасс ул. Нахимова, 12 (51.6 м) - Фото 1
    2-к кв. Челябинская область, Миасс ул. Нахимова, 12 (51.6 м) - Фото 2
    2-комнатная квартира, общая площадь 51м², жилая 30м², кухня 9м²

    Оказываем услугу в оформлении ипотеки на данный объект от 12,75 годовых с минимальным пакетом документов.В продаже 2х - комнатная квартиpа, плoщaдью 51,6кв.м., нa 4-м этaжe из 10 этажного дoмa. Рассматриваем обмен на 2-х комнатную квартиру, р-н Автозавод,...
    • 51 м²
    • 2-ком
    • 4/10 эт.
    • панельный
    4 700 000 Р
    Агент
    +7 (912) Показать номер
    Посмотреть контакты
    2-к кв. Челябинская область, Миасс ул. Лихачева, 47 (52.0 м) - Фото 1
    2-к кв. Челябинская область, Миасс ул. Лихачева, 47 (52.0 м) - Фото 2
    2-комнатная квартира, общая площадь 52м², жилая 35м², кухня 9м²

    Продам 2-комнатную квартиру улучшеной планировки в Комарово. Комнаты раздельные, кухня 9 кв.м., санузел раздельный. Дом расположен в центральной части Комарово. Имеет свою закрытую территорию. Окна выходят на юго-запад. Потому в квартире всегда днем много...
    • 52 м²
    • 2-ком
    • 5/10 эт.
    • панельный
    4 670 000 Р
    Агент
    +7 (982) Показать номер
    Посмотреть контакты
    2-к кв. Челябинская область, Миасс просп. Макеева, 82 (41.0 м) - Фото 1
    2-к кв. Челябинская область, Миасс просп. Макеева, 82 (41.0 м) - Фото 2
    2-комнатная квартира, общая площадь 41м², жилая 26м², кухня 5м²

    Предлагаем вашему вниманию уютную и светлую 1 + квартиру в престижном районе ИБК. Это идеальное предложение для тех, кто ценит комфорт и развитую инфраструктуру.Преимущества квартиры:-Квартира с качественным ремонтом.-Окна выходят на тихий двор, что...
    • 41 м²
    • 2-ком
    • 3/10 эт.
    • панельный
    4 600 000 Р
    Агент
    +7 (982) Показать номер
    Посмотреть контакты
    2-к кв. Челябинская область, Миасс ул. Ильмен-Тау, 5А (45.5 м) - Фото 1
    2-к кв. Челябинская область, Миасс ул. Ильмен-Тау, 5А (45.5 м) - Фото 2
    2-комнатная квартира, общая площадь 45м², жилая 26м², кухня 7м²

    Ваш идеальный уголок комфорта Описание квартиры:Предлагаем вам светлую и уютную квартиру общей площадью 45,5 м. В квартире уже установлены качественные окна и надежная входная дверь. Застекленный балкон создаст дополнительное пространство для отдыха,...
    • 45 м²
    • 2-ком
    • 2/5 эт.
    • кирпичный
    4 500 000 Р
    Агент
    +7 (912) Показать номер
    Посмотреть контакты

    Не нашли подходящего объявления?

    Оставьте заявку, и наши риэлторы подберут квартиру в районе Миасса

    (0)