1 400 000 Р 18 380 $ или 15 510

Информация о квартире

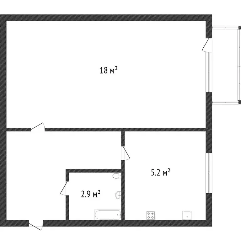
30 м2
Площадь
17 м2
Жилая
5 м2
Кухня
1
Комната
2
Этаж
5
Этажность
Развернуть
Агент
+7 (919) 330-75-76
Начать чат с агентом

1-комнатная квартира: Озерский городской округ, посёлок Метлино, ...

Арт.Уютная однокомнатная квартира в живописном поселке Метлино ждет своих новых хозяев Представляем вашему вниманию прекрасную возможность приобрести комфортное жилье площадью 30.8 кв.м. на втором этаже пятиэтажного дома. Квартира расположена в самом сердце поселка Метлино, что обеспечивает максимальную доступность ко всей необходимой инфраструктуре. Что вас ждет внутри: Продуманная планировка: Однокомнатная квартира с совмещенным санузлом. Полностью готова к проживанию: В квартире остается вся мебель

Читать полностью

    Для того, чтобы купить однокомнатную квартиру по адресу: Метлино, ул. Центральная, 82, позвоните по телефону +7 (919) 330-75-76. Торопитесь! Объявление №30093708399 о продаже однокомнатной квартиры опубликовано Вчера.

    Позвонить Написать
    1 400 000 Р18 380 $ или 15 510
    Агент
    +7 (919) 330-75-76
    Начать чат с агентом
    Похожие предложения
    1-комнатная квартира: Златоуст, 2-я Шоссейная улица, 2 (30.7 м) - Фото 1
    1-комнатная квартира: Златоуст, 2-я Шоссейная улица, 2 (30.7 м) - Фото 2
    1-комнатная квартира, общая площадь 30м², жилая 20м², кухня 6м²

    Продается просторная однокомнатная квартира в капитальном кирпичном доме. Объект предлагается в состоянии под ремонт, что предоставляет новому владельцу полную свободу для реализации собственных дизайнерских решений и создания современного интерьера с...
    • 30 м²
    • 1-ком
    • 3/5 эт.
    1 400 000 Р
    Агент
    +7 (905) Показать номер
    Посмотреть контакты
    Студия Челябинская область, Челябинск ул. Калинина, 21А (13.3 м) - Фото 1
    Студия Челябинская область, Челябинск ул. Калинина, 21А (13.3 м) - Фото 2
    студия, общая площадь 13м², кухня 5м²

    За объект уже внесли авансСтудия со своим санузлом и новой мебелью — заезжай сразу Калининский район | ул. Калинина, 21А 13,3 м | 3 этаж из 5 | кирпичный домПродаётся комната-студия в бывшем общежитии коридорного типа, полностью переоборудованная под...
    • 13 м²
    • студия-ком
    • 3/5 эт.
    • кирпичный
    1 390 000 Р
    Агент
    +7 (982) Показать номер
    Посмотреть контакты
    1-к кв. Челябинская область, Озерск ул. Дзержинского, 52 (29.0 м) - Фото 1
    1-к кв. Челябинская область, Озерск ул. Дзержинского, 52 (29.0 м) - Фото 2
    1-комнатная квартира, общая площадь 29м², жилая 19м², кухня 5м²

    Представляю просторную квартиру жилой площадью 20 квадратных метров. Окна квартиры выходят во двор. Расположенная на четвертом этаже девятиэтажного дома, эта квартира окружена развитой инфраструктурой: рядом магазины, аптеки, кафе и рестораны, что позволяет...
    • 29 м²
    • 1-ком
    • 4/9 эт.
    • кирпичный
    1 350 000 Р
    Агент
    +7 (982) Показать номер
    Посмотреть контакты
    2-к кв. Челябинская область, Еткульский муниципальный округ, пос. ... - Фото 1
    2-к кв. Челябинская область, Еткульский муниципальный округ, пос. ... - Фото 2
    2-комнатная квартира, общая площадь 39м², кухня 6м²

    Продается двухкомнатная квартира в кирпичном доме в поселке Белоносово.Квартира готова к заселению: установлены современные евроокна и надежная входная металлическая дверь.Планировка практичная, с двумя комнатами и раздельным санузлом.В сделку включена...
    • 39 м²
    • 2-ком
    • 1/2 эт.
    • кирпичный
    1 500 000 Р
    Агент
    +7 (912) Показать номер
    Посмотреть контакты
    1-комнатная квартира: Миасс, улица Победы, 2 (19 м) - Фото 1
    1-комнатная квартира: Миасс, улица Победы, 2 (19 м) - Фото 2
    1-комнатная квартира, общая площадь 19м², жилая 17м², кухня 2м²

    Продам 1комнатную квартиру по ул Победы 2.Второй этаж,железная дверь,евроокно,санузел совмещеный.На данный момент в квартире не проживают.Ключи в день сделки.Один собственник.Комната чистая и уютная.Возможна покупка в ипотеку и на материнский капитал....
    • 19 м²
    • 1-ком
    • 2/10 эт.
    1 300 000 Р
    Агент
    +7 (905) Показать номер
    Посмотреть контакты

    Не нашли подходящего объявления?

    Оставьте заявку, и наши риэлторы подберут квартиру в районе Метлино

    (0)