6 200 000 Р 76 420 $ или 65 200

Информация о коттедже

74 м2
Площадь
1
Этажность
4 cоток
Участок

Дополнительная информация

Дом продаётся вместе с участком
есть
Развернуть
Агент
+7 (982) 357-30-42
Начать чат с агентом

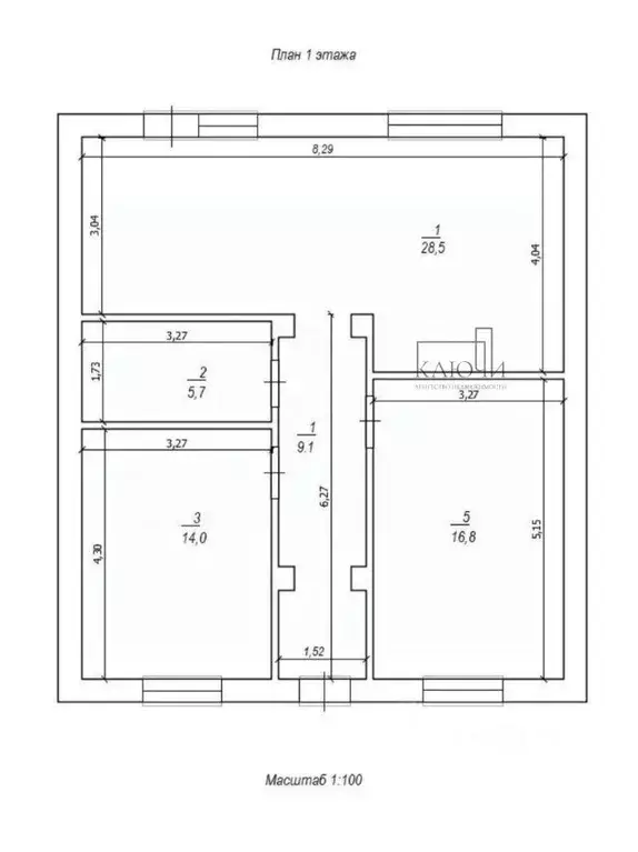
Дом в Челябинская область, Магнитогорск ул. Мирная (74 м)

Продаётся уютный новый дом 74 кв. м в предчистовой отделке с земельным участком в 4,47 соток на левом берегу. Есть вариант объекта с ремонтом под ключ Здесь вы можете наслаждаться жизнью вдали от городской суеты, но при этом быть в шаговой доступности от всего необходимого. ОБ ОБЪЕКТЕ:Дом продается в предчистовой отделке, а это значительно снижает стоимость готового жилья, что позволяет сэкономить на ремонте и вложить деньги в те детали, которые действительно важны для вас.Шикарная планировка включает в себя:1 этаж: кухня-гостиная с выходом на участок, 2 спальных комнаты, санузел Также в наличии такой же дом полностью с ремонтом КОММУНИКАЦИИ И КОНСТРУКТИВ:Канализация септик, вода скважина, газ, электричество. ВСЕ КОММУНИКАЦИИ - ГАЗ, канализация, водоснабжение из скважины, электричество, заведены в дом и разведены. Напряжение электричества 380В. ПРИМЕРНЫЙ РАСЧЕТ ПО ИПОТЕКЕ:• Цена• Ставка 6 • Платеж 23973 Для сотрудников ПАО ММК действует компенсация 50 платежа по ипотеке.Если вы хотите узнать подробности по лоту или рассмотреть другие варианты недвижимости в данной локации позвоните нам или напишите в сообщения эксперту и получите подборку Лотов.. Арт.

Читать полностью

    Для того, чтобы купить 1-этажный коттедж по адресу: Магнитогорск, Орджоникидзевский, ул. Мирная, позвоните по телефону +7 (982) 357-30-42. Торопитесь! Объявление №50016578173 о продаже одноэтажного коттеджа опубликовано Вчера.

    Позвонить Написать
    6 200 000 Р76 420 $ или 65 200
    Агент
    +7 (982) 357-30-42
    Начать чат с агентом
    Похожие предложения
    Дом в Челябинская область, Магнитогорск ул. Мирная, 63 (74 м) - Фото 1
    Дом в Челябинская область, Магнитогорск ул. Мирная, 63 (74 м) - Фото 2
    1 этаж, общая площадь 74м², участок 5 соток

    В продаже отдельно стоящий одноэтажный дом площадью 75 м. кв. на 5 сотках землиПодходит под льготную ипотеку 6 О Локации:Дом расположен в восточной части города на Левом берегу МагнитогорскаОб объекте:Площадь 74 м. кв. 5 соток земли Пред чистовая отделка...
    • 1 эт.
    • 74 м²
    • 5 сот.
    6 200 000 Р
    Агент
    +7 (982) Показать номер
    Посмотреть контакты
    Дом в Челябинская область, Магнитогорск ул. Мирная (74 м) - Фото 1
    Дом в Челябинская область, Магнитогорск ул. Мирная (74 м) - Фото 2
    1 этаж, общая площадь 74м², участок 4 сотки

    Продаётся уютный новый дом 74 кв. м в предчистовой отделке с земельным участком в 4,47 соток на левом берегу. Есть вариант объекта с ремонтом под ключ Здесь вы можете наслаждаться жизнью вдали от городской суеты, но при этом быть в шаговой доступности...
    • 1 эт.
    • 74 м²
    • 4 сот.
    6 200 000 Р
    Агент
    +7 (982) Показать номер
    Посмотреть контакты
    Дом в Челябинская область, Магнитогорск ул. Мирная (75 м) - Фото 1
    Дом в Челябинская область, Магнитогорск ул. Мирная (75 м) - Фото 2
    1 этаж, общая площадь 75м², участок 5 соток

    В продаже отдельно стоящий одноэтажный дом площадью 75 м. кв. на 5 сотках землиПодходит под льготную ипотеку 6 О Локации:Дом расположен в восточной части города на Левом берегу МагнитогорскаОб объекте:Площадь 75 м. кв. 5 соток земли Пред чистовая отделка...
    • 1 эт.
    • 75 м²
    • 5 сот.
    6 200 000 Р
    Агент
    +7 (982) Показать номер
    Посмотреть контакты
    Дом в Челябинская область, Магнитогорск ул. Прокатная (75 м) - Фото 1
    Дом в Челябинская область, Магнитогорск ул. Прокатная (75 м) - Фото 2
    1 этаж, общая площадь 75м², участок 4 сотки

    Продаётся комфортный новый дом 75 кв. м в предчистовой отделке с земельным участком в 4,5 соток на левом берегу.Эксклюзивное предложение от агенства недвижимости КлючиОБ ОБЪЕКТЕ: Дом продается в предчистовой отделке, а это значительно снижает стоимость...
    • 1 эт.
    • 75 м²
    • 4 сот.
    6 300 000 Р
    Агент
    +7 (912) Показать номер
    Посмотреть контакты
    Дом в Челябинская область, Магнитогорск Приусадебная ул., 3 (80 м) - Фото 1
    Дом в Челябинская область, Магнитогорск Приусадебная ул., 3 (80 м) - Фото 2
    1 этаж, общая площадь 80м², участок 4 сотки

    Новый одноэтажный дом площадью 80 кв.м на земельном участке 4,5 сотки. В продаже имеются квартиры от 30 кв.м., таунхаусы, дома площадью от 60 м.кв., одно- и двухэтажные в этой и других локациях, с отделкой и готовым ремонтом, напишите нам и мы скинем...
    • 1 эт.
    • 80 м²
    • 4 сот.
    6 200 000 Р
    Агент
    +7 (912) Показать номер
    Посмотреть контакты

    Не нашли подходящего объявления?

    Оставьте заявку, и наши риэлторы подберут купить дом в районе Магнитогорска

    (0)