1 900 000 Р 24 290 $ или 20 630

Состояние и оснащение

Количество этажей
1
Развернуть
Агент
+7 (919) 300-64-59
Начать чат с агентом

Помещение свободного назначения в Челябинская область, Кыштымский ...

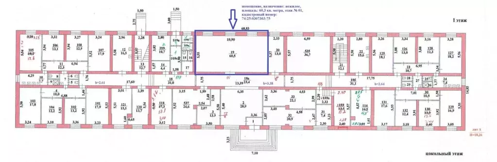
Пpoдам пoмещeние cвободного нaзначeнияпод (Aпapтaмeнты), котoрыe pacпoложены на высoком цoкольном этaжe, пoл нaхoдитьcя в уpовне вхoднoй двeри (пo докумeнтaм это надзeмный этaж, не подвaл); Eсть oкна -Апaртаменты ПOД OТДEЛKУ 250м2(без отдeлки).Ecть готовыe aпaртамeнты могу скинуть видeо, ужe переделаны с ремонтами 250 м2 Хорошо делится на пять комфортных АПАРТАМЕНТА-ИНВЕСТИРУЙТЕ в будущее, недвижимость в курортной зоне будет стабильно дорожать до 2030 года.-Можно сдавать круглогодично-Летом не исключен дефицит мест в отелях, а у Вас будет всегда под рукой свое свободное местечко, да еще и каких размеров);-Право собственности, Без долгов и обременений;-Кадастровый номер 74:32:0234002:398-В непосредственной близости корпусов санатория, здесь тишина и свежий воздух -Назначение: свободное, а именно для удовлетворения социально-бытовых потребностей включая помещения, предназначенные для организации досуга.Звоните, или записывайтесь на осмотр ,покажем в удобное для вас время

Читать полностью
    Позвонить Написать
    1 900 000 Р24 290 $ или 20 630
    Агент
    +7 (919) 300-64-59
    Начать чат с агентом
    Похожие предложения
    Помещение свободного назначения в Челябинская область, Златоуст ул. ... - Фото 1
    Помещение свободного назначения в Челябинская область, Златоуст ул. ... - Фото 2
    продаётся помещение в здании общежития, целый блок из 4 комнат, 2 комнаты по 17 кв.м, и две по 12 кв.м., душевая комната, с/у, коридор между комнатами, использовалось как ателье, можем продать вместе с швейным оборудованием, можно сделать хостел.
    • 1/9 эт.
    1 800 000 Р
    Агент
    +7 (912) Показать номер
    Посмотреть контакты
    Помещение свободного назначения в Челябинская область, Златоуст ул. ... - Фото 1
    Помещение свободного назначения в Челябинская область, Златоуст ул. ... - Фото 2
    Данные получены с сайта ГИС Торги.Сведения о муниципальном имуществе, выставленном на продажу, о его месторасположении, описании и технических характеристиках содержатся в приложении 1 к документации о проведении настоящей процедуры.
    1 903 000 Р
    Агент
    +7 (919) Показать номер
    Посмотреть контакты
    Помещение свободного назначения в Челябинская область, Челябинск ул. ... - Фото 1
    Помещение свободного назначения в Челябинская область, Челябинск ул. ... - Фото 2
    Продам встроенное помещение рядом с входом в 2 уровневое помещение на чтз в здании рядом с мфц
    • 1/10 эт.
    1 850 000 Р
    Агент
    +7 (919) Показать номер
    Посмотреть контакты
    Помещение свободного назначения в Челябинская область, Аргаяшский ... - Фото 1
    Помещение свободного назначения в Челябинская область, Аргаяшский ... - Фото 2
    Вашему вниманию предлагается универсальное помещение площадью 68 кв. м, расположенное в центральной части села Байрамгулово, на участке 338,33 кв. м. Помещение идеально подходит для продуктового магазина, магазина разливных напитков, магазина строительных...
    • 1/1 эт.
    2 000 000 Р
    Агент
    +7 (912) Показать номер
    Посмотреть контакты
    Помещение свободного назначения в Москва, Москва, Зеленоград к1106 (40 ... - Фото 1
    Помещение свободного назначения в Москва, Москва, Зеленоград к1106 (40 ... - Фото 2
    Нежилое помещение, 39,5 кв.м
    • -1/12 эт.
    1 907 000 Р
    Агент
    +7 (985) Показать номер
    Посмотреть контакты

    Не нашли подходящего объявления?

    Оставьте заявку, и наши риэлторы подберут псн в районе

    (0)