6 000 000 Р 78 120 $ или 67 090

Информация о коттедже

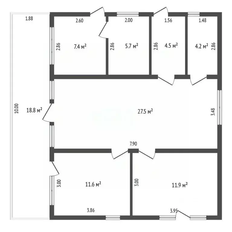
75 м2
Площадь
1
Этажность
7 cоток
Участок

Дополнительная информация

Дом продаётся вместе с участком
есть
Развернуть
Агент
+7 (919) 330-99-54
Начать чат с агентом

Коттедж в Челябинская область, с. Кунашак ул. Дружбы, 31 (75 м)

Продается уютный, теплый, новый качественный дом в с. Кунашак Подходит под сельскую ипотеку О доме. Дом строился для себя. Материал стен брус 150*150, утеплитель -100 мм, сайдинг Hokla лиственница;Общая площадь дома - 75 кв.м.Две спальни + гостиная + кухня 10 кв.м. Полы шпунт, обработан, покрашен, покрыт лакомСептик = 3 куб.м;Водоснабжение центральное;Электричество 15 кВт;Все коммуникации и оборудование скрыты (трубы отопления, сливы, котлы). Продумано расположение розеток и выключателей. В доме: полы шпунт, гкл Knauf 12мм, профиль KNAUF, Стены покрыты декоративной штукатуркой;Потолки - натяжные;Межкомнатные двери от производителя Русская дверь Санузел оборудован теплым полом, стены и пол кафельная плитка, водонагреватель на 80 литров, душевая, гигиенический душ.Об участке: общая площадь участка - 7 соток;Участок правильной формы, огорожен забором из профлиста, Участок не топит, так какасположен на возвышенности. Вокруг лес, богатый ягодами и грибами. Очень тихое и уютное место, хорошие соседи. На участке прекрасно уместится баня, беседка, мангальная зона, огород и т.п.Инфраструктура поселка:Очень хорошо развита инфраструктура: 5 детских садов, 2 школы, школа искусств, спортивная школа, бассейн, физкультурно-оздоровительный комплекс, стадион, круглогодичная ледовая арена, лыжная база. Все занятия для детей бесплатные. Хорошее благоустройство асфальтированы дороги, благоустроены тротуары, фонтан, 2 сквера для прогулок и отдыха, скейт-парк. В каждом микрорайоне детские площадки. Поликлиника, стационар, офис Инвитро , сети аптек. Сети магазинов Магнит, Пятерочка , Монетка , КБ , фермерские магазины, магазины одежды, обуви, мебели, техники и прочего.Данный объект вы можете приобрести по сниженной ипотечной ставке до 13,99 годовых.1 взрослый собственник, документы к сделке готовы.Звоните Организую показ в удобное для вас время по предварительной договоренности.Арт.

Читать полностью

    Для того, чтобы купить 1-этажный коттедж по адресу: Кунашак, ул. Дружбы, 31, позвоните по телефону +7 (919) 330-99-54. Торопитесь! Объявление №50016212390 о продаже одноэтажного коттеджа опубликовано 27 ноября 2025.

    Позвонить Написать
    6 000 000 Р78 120 $ или 67 090
    Агент
    +7 (919) 330-99-54
    Начать чат с агентом
    Похожие предложения
    Дом в Челябинская область, Сосновский муниципальный округ, д. Осиновка ... - Фото 1
    Дом в Челябинская область, Сосновский муниципальный округ, д. Осиновка ... - Фото 2
    1 этаж, общая площадь 90м², участок 6 соток

    Фотографии не отображают реальные размеры и качество. Обязательно нужно смотреть в живую Продам Дом в д. Осиновка - на границе д. Малиновка ( готовый дом в Сосновском районе можно купить недорого) Место очень хорошее, самое начало (примерно 200-300м....
    • 1 эт.
    • 90 м²
    • 6 сот.
    6 000 000 Р
    Агент
    +7 (919) Показать номер
    Посмотреть контакты
    Дом в Челябинская область, Красноармейский муниципальный округ, д. ... - Фото 1
    Дом в Челябинская область, Красноармейский муниципальный округ, д. ... - Фото 2
    2 этажа, общая площадь 100м², участок 11 соток

    Продается земельный участок и жилой дом, площадью 100 кв.м. Дом построен из сруба и готов к проживанию. Фундамент-свайно-рoстверковый. Студия +2 спальни. Подведено электричество-15 кВт,220/380в., заведено в дом, установлен эл. бойлер и эл. котел. ТВ кабель...
    • 2 эт.
    • 100 м²
    • 11 сот.
    6 000 000 Р
    Агент
    +7 (912) Показать номер
    Посмотреть контакты
    Дом в Челябинская область, Челябинск Запорожская ул., 4 (67 м) - Фото 1
    Дом в Челябинская область, Челябинск Запорожская ул., 4 (67 м) - Фото 2
    1 этаж, общая площадь 67м², участок 5 соток

    Арт.Продаётся тёплый, добротный дом 67,4 м — готов к проживанию.Кратко:• Площадь дома: 67,4 кв.м.• Три жилые комнаты: 11,9 / 10,6 / 9,6 кв.м.• Кухня: 11,7 кв.м. (современный кухонный гарнитур остаётся)• Просторный коридор — место для вместительных шкафов•...
    • 1 эт.
    • 67 м²
    • 5 сот.
    6 000 000 Р
    Агент
    +7 (919) Показать номер
    Посмотреть контакты
    Коттедж в Челябинская область, Красноармейский муниципальный округ, д. ... - Фото 1
    Коттедж в Челябинская область, Красноармейский муниципальный округ, д. ... - Фото 2
    2 этажа, общая площадь 143м², участок 8 соток

    Предлагаем вашему вниманию коттедж в д. Круглое, площадью 143 кв.м. на участке 8,1 соткаО доме:+ Дом построен из газоблока+ В основании свайно-ростверковый фундамент+ На первом этаже пред чистовая отделка+ Второй этаж свободной планировки без отделки+...
    • 2 эт.
    • 143 м²
    • 8 сот.
    6 000 000 Р
    Агент
    +7 (982) Показать номер
    Посмотреть контакты
    Дом в Челябинская область, Магнитогорск Строитель-3 садоводческое ... - Фото 1
    Дом в Челябинская область, Магнитогорск Строитель-3 садоводческое ... - Фото 2
    1 этаж, общая площадь 90м², участок 6 соток

    Код объекта: 1859567. Большой дом 90 м и 6,53 сот. земли по выгодной цене от застройщика Возможно приобретение в ипотеку Цены от застройщика Бесплатно вы получаете подготовленную и комфортно проведенную сделку от лучшего агентства недвижимости Все...
    • 1 эт.
    • 90 м²
    • 6 сот.
    6 000 000 Р
    Агент
    +7 (917) Показать номер
    Посмотреть контакты

    Не нашли подходящего объявления?

    Оставьте заявку, и наши риэлторы подберут купить дом в районе Кунашака

    (0)