26 581 000 Р 353 400 $ или 301 900

Информация об помещении

2
Этаж

Состояние и оснащение

Количество этажей
2
Развернуть
Агент
+7 (915) 530-77-64
Начать чат с агентом

Помещение свободного назначения в Челябинская область, Копейск ул. 70 ...

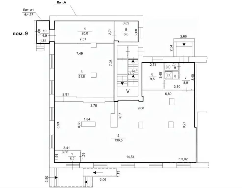
Реализуется здание, состоящее из трех помещений (74:30:0803003:572, 74:30:0803003:573, 74:30:0803003:574) общей площадью 918 м, расположенное на земельном участке с кадастровым номером 74:30:0803003:294 площадью 940 м.Здание состоит из 2-х этажей и подвала. Построено капитально, из красного кирпича, железобетонные перекрытия. Есть помещения разной площади, от небольших кабинетов до просторных залов.Отопление выполнено двухтрубным комбинированным способом, часть подающей трубы отопления проходит по неотапливаемому чердаку (трубопровод изолирован), часть по комнатам 2-го этажа. Трубопровод обратки расположен частично в помещениях первого этажа и неотапливаемом подвале. В котельной стоит газовый котел, КС-1-80 в рабочем состоянии.Сауна с бассейном. Также на территории участка расположена просторная баня 40 м. Имеется зона внутри дворового отдыха и небольшой летний сад с плодово-ягодными культурами.Канализация: централизованная, в доме на этажах выполнена частично полипропиленовой трубой и частично чугунной трубой. Трубопровод канализации в подвале выполнен чугунной трубой. Водоснабжение централизованное, заведено в дом через подвальное помещение, трубой ПНД. Накопительный водонагреватель требует ремонта.Электрооборудование: в рабочем состоянии, но существуют кабельные линии без потребителей. Расположен недалеко от Челябинска (20км/25 мин до ЖД Вокзала Челябинска) в поселке Октябрьский. До здания асфальтированная дорога. Рядом есть вся инфраструктура: сетевые продуктовые магазины, аптеки, остановка общ транспорта, поликлиника в 5 минутах ходьбы. Идеально подойдет под гостиницу, дом престарелых, реабилитационный центр, офис, административной базы производств, детский сад.Возможна реализация целиком или пообъектно с дальнейшим оформлением права на землю в долевую собственность.Местонахождение имущества: Челябинская область, г. Копейск, пос. Октябрьский, ул. 70 лет Октября д. 2Объект реализуется через торги на электронной площадке АО ТЭК-Торг.Подробная информация размещена на ЭТП АО ТЭК-ТоргПроцедура ПИ508044По всем вопросам - звоните и пишите В выходные и праздничные дни просьба писать сообщения (можно в или ). Обязательно ответим или перезвоним в первый рабочий день.

Читать полностью
    Позвонить Написать
    26 581 000 Р353 400 $ или 301 900
    Агент
    +7 (915) 530-77-64
    Начать чат с агентом
    Похожие предложения
    Помещение свободного назначения в Челябинская область, Копейск ул. ... - Фото 1
    Помещение свободного назначения в Челябинская область, Копейск ул. ... - Фото 2
    ОТ СОБСТВЕННИКА БЕЗ КОМИССИИ.Продам отдельно стоящее 2-х этажное здание, 1600 м + земельный участок 34,46 сотки, по адресу:г. Копейск, ул. Кузнецова 33Основные характеристики и преимущества помещения:- участок и помещение в собственности;- отдельно стоящее...
    • 1/2 эт.
    27 000 000 Р
    Агент
    +7 (982) Показать номер
    Посмотреть контакты
    Помещение свободного назначения в Челябинская область, Копейск ул. ... - Фото 1
    Помещение свободного назначения в Челябинская область, Копейск ул. ... - Фото 2
    Предлагаем вашему вниманию коммерческую недвижимость в центре города:-Нежилые помещения с земельным участком 2754кв.м (в собственности). Помещения располагаются с двух сторон, 498.4кв.м. и 383.9кв.м.Коммуникации:-во все помещения заведен газ, вода-скважина,...
    • 1/1 эт.
    26 000 000 Р
    Агент
    +7 (919) Показать номер
    Посмотреть контакты
    Помещение свободного назначения в Челябинская область, Магнитогорск ... - Фото 1
    Помещение свободного назначения в Челябинская область, Магнитогорск ... - Фото 2
    Код объекта: 2047985.Уникальное предложение для вашего бизнеса Продаётся коммерческое помещение свободного назначения в Магнитогорске, в парке Притяжение. Это идеальный выбор для тех, кто ищет просторное и функциональное пространство для своего дела.Постройка...
    • 1/9 эт.
    27 714 100 Р
    Агент
    +7 (917) Показать номер
    Посмотреть контакты
    Помещение свободного назначения в Челябинская область, Миасс ул. ... - Фото 1
    Помещение свободного назначения в Челябинская область, Миасс ул. ... - Фото 2
    Представляем Вашему вниманию эксклюзивное предложение на рынке коммерческой недвижимости престижное помещение свободной планировки, расположенное в динамично развивающемся деловом центре города. Данный объект находится на первом этаже современного здания,...
    • 1/4 эт.
    27 400 000 Р
    Агент
    +7 (919) Показать номер
    Посмотреть контакты
    Помещение свободного назначения в Челябинская область, Челябинск ул. ... - Фото 1
    Помещение свободного назначения в Челябинская область, Челябинск ул. ... - Фото 2
    Продам помещение, находящееся на одном из лучший перекрестков города. Высокие потолки. Находится у остановки общественного транспорта, что гарантирует Вам постоянный клиентский поток, Отдельная входная группа на фасад дома, Отличный пешеходный трафик,...
    • 1/9 эт.
    27 000 000 Р
    Агент
    +7 (919) Показать номер
    Посмотреть контакты

    Не нашли подходящего объявления?

    Оставьте заявку, и наши риэлторы подберут псн в районе Копейска

    (0)