41 360 000 Р 538 500 $ или 462 500

Информация об помещении

1
Этаж

Состояние и оснащение

Количество этажей
1
Развернуть
Агент
+7 (912) 401-01-69
Начать чат с агентом

Производственное помещение в Челябинская область, Копейск Кемеровская ...

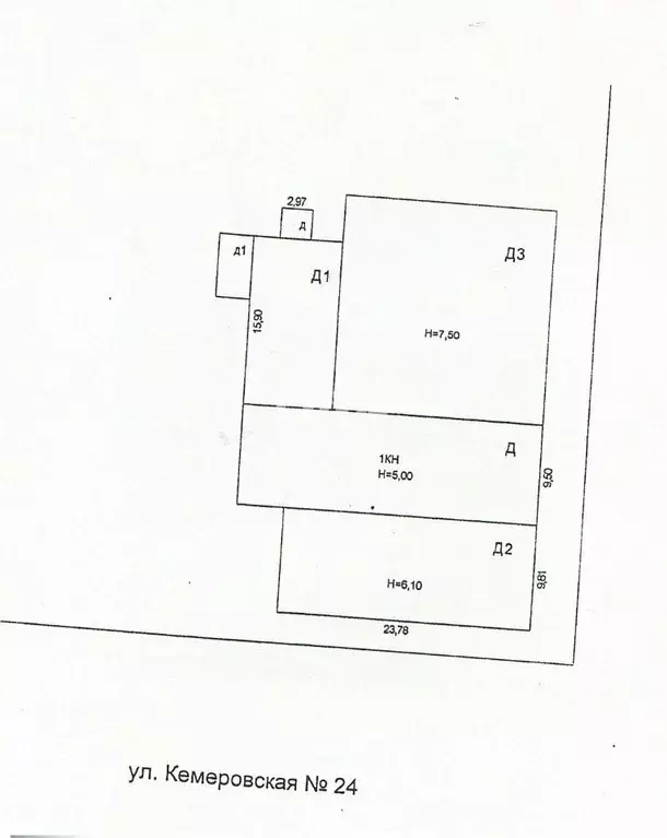
Продается производственно-складское здание (S=940 кв.м.) по адресу: г. Копейск, ул. Кемеровская с арендаторами, подходящий для размещения производства, склада готовой продукции, готового арендного бизнеса (ГАБ). Тех. характеристики:Площадь здания: 940 кв.м.Площадь земли: 3380 кв.м. (0,338 га)Вид права: Собственность, физ. лицоНазначение земельного участка: Для эксплуатации нежилых зданий, производственной базы.Благоустройство: огороженная территория, подъездные путиЭлектрическая: Мощность 430 кВт (возможность добавить 120 кВт)Отопление газМокрые точки: 2 шт. (Раздевалка, душ, туалет на 1 и 2 этаже бытового помещения)Покрытие: Плиты ЖБ Входы: несколькоГрузоподъемный механизм: отсутствуетПарковка: собственная, за территориейОстановка общественного транспорта: ост. Швейная фабрика (1 мин. пешком)Предполагаемый вид использования:•Производство•Склад готовой продукции•Автотранспортное предприятие•Арендный бизнесИнфраструктура в радиусе 500 м.:• Объекты автомобильной тематики (5 объектов)• Магазины товаров народного потребления (1 объект)• Объект товаров для дома (3 объекта)• Объекты общественного питания (2 объекта)• Оптовые базы (2 шт.)• АЗС (1 объект)Транспортная доступность:+5 мин. г.Копейск +8 мин. трасса Обход города ЧелябинскЗвоните Будем рады ответить на ваши вопросы Арт.

Читать полностью
    Позвонить Написать
    41 360 000 Р538 500 $ или 462 500
    Агент
    +7 (912) 401-01-69
    Начать чат с агентом
    Похожие предложения
    Производственное помещение в Челябинская область, Копейск Кемеровская ... - Фото 1
    Производственное помещение в Челябинская область, Копейск Кемеровская ... - Фото 2
    Продается производственно-складское здание (S=940,4 м) с земельным участком(в собственности, S=3380 м) по адресу: г. Копейск, ул. Кемеровская. Помещения сданы в аренду. Подъездные обеспечивают удобное транспортное сообщение с объектом. Объект оборудован...
    • 1/1 эт.
    40 995 000 Р
    Агент
    +7 (912) Показать номер
    Посмотреть контакты
    Производственное помещение (940.4 м) - Фото 1
    Производственное помещение (940.4 м) - Фото 2
    Продается производственно-складское здание (S=940,4 м) с земельным участком(в собственности, S=3380 м) по адресу: г. Копейск, ул. Кемеровская. Помещения сданы в аренду. Подъездные обеспечивают удобное транспортное сообщение с объектом. Объект оборудован...
    • 1/1 эт.
    40 995 000 Р
    Агент
    +7 (919) Показать номер
    Посмотреть контакты
    Производственное помещение в Челябинская область, Троицкий район, пос. ... - Фото 1
    Производственное помещение в Челябинская область, Троицкий район, пос. ... - Фото 2
    Продается производственно-складской комплекс включающий земельные участки общей площадью 22,5 Га (2250 сот.) и комплекс зданий и сооружений с уникальными характеристиками для размещения высокоэнергоемкого производства и возможностью ЖД сообщения. Наличие...
    • 1/3 эт.
    40 000 000 Р
    Агент
    +7 (912) Показать номер
    Посмотреть контакты
    ПРОИЗВОДСТВЕННО-СКЛАДСКОЕ ЗДАНИЕ ДЛЯ ВАШЕЙ ПРИБЫЛИ Ищете не просто помещение, а готовую бизнес-площадку, способную выдержать любой размах? Представляем вам уникальное предложение в Челябинске – отдельно стоящее производственно-складское здание 2510 м...
    • 1/1 эт.
    41 000 000 Р
    Агент
    +7 (994) Показать номер
    Посмотреть контакты
    МАШТАБНЫЙ КОМПЛЕКС ДЛЯ ВАШИХ БИЗНЕС-ЦЕЛЕЙ: ПРОИЗВОДСТВО + СКЛАД = ВАША ПРИБЫЛЬ Ищете не просто помещение, а готовую бизнес-платформу, способную выдержать любой размах? Представляем вам уникальное предложение в Челябинске – отдельно стоящее производственно-складское...
    • 1/1 эт.
    41 000 000 Р
    Агент
    +7 (994) Показать номер
    Посмотреть контакты

    Не нашли подходящего объявления?

    Оставьте заявку, и наши риэлторы подберут производственное помещение в районе Копейска

    (0)