5 100 000 Р 67 340 $ или 56 370

Информация о квартире

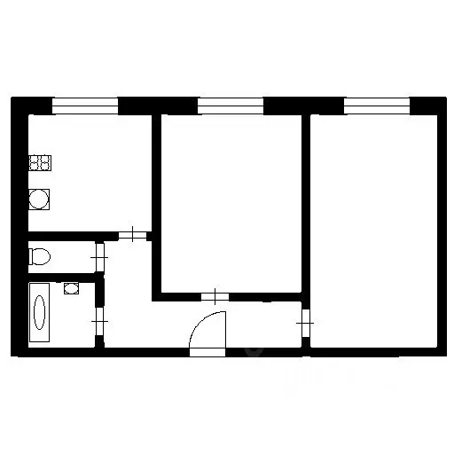
65 м2
Площадь
8 м2
Кухня
3
Комнаты
6
Этаж
9
Этажность

Дополнительная информация

Тип дома
панельный
Развернуть
Агент
+7 (982) 300-83-22
Начать чат с агентом

3-к кв. Челябинская область, Копейск ул. Темника, 22 (65.7 м)

В продаже тёплая и просторная 3-комнатная квартира на комфортном 6 этаже - удачное место для семьи Расположение и инфраструктура: Тихое место в центре - идеально для семей. Всё под рукой: школы, детские сады, транспорт, магазины и спорткомплекс. Это повышает ценность для семей с детьми или активных людей.Планировка: 3 изолированные комнаты - удобно для большой семьи. Окна на восток/запад обеспечивают естественное освещение весь день, что делает квартиру светлой и уютной.Управление домом: ТСЖ следит за чистотой подъездов, плюс запланированная замена стояков - признак хорошего ухода за зданием.Дополнительные удобства: Отдельная комната для кладовой или гардеробной - практичный бонус для хранения вещей.Безопасность: Общий карман с соседней квартирой на входе добавляет приватности и защиты от посторонних.Квартира без обременений и долгов Звоните и мы подберем удобное время для просмотра.ID объекта в нашей базе: 1226

Читать полностью

    Для того, чтобы купить трехкомнатную квартиру по адресу: Копейск, ул. Темника, 22, позвоните по телефону +7 (982) 300-83-22. Торопитесь! Объявление №30092845433 о продаже трехкомнатной квартиры опубликовано 19 января 2026.

    Позвонить Написать
    5 100 000 Р67 340 $ или 56 370
    Агент
    +7 (982) 300-83-22
    Начать чат с агентом
    Похожие предложения
    2-к кв. Челябинская область, Копейск Коммунистический просп., 7А (51.0 ... - Фото 1
    2-к кв. Челябинская область, Копейск Коммунистический просп., 7А (51.0 ... - Фото 2
    2-комнатная квартира, общая площадь 51м², кухня 9м²

    Продам двухкомнатную квартиру в центре города Кирпичный дом, комфортный 4 этаж, удобная планировка:-раздельные комнаты;-вместительная кухня;-раздельный санузел;-балкон.Квартира в хорошем состоянии, заходи-живи:-установлены евроокна, межкомнатные двери,...
    • 51 м²
    • 2-ком
    • 4/5 эт.
    • кирпичный
    5 200 000 Р
    Агент
    +7 (912) Показать номер
    Посмотреть контакты
    2-к кв. Челябинская область, Челябинск ул. Свободы, 141 (44.6 м) - Фото 1
    2-к кв. Челябинская область, Челябинск ул. Свободы, 141 (44.6 м) - Фото 2
    2-комнатная квартира, общая площадь 44м², жилая 28м², кухня 6м²

    ПРОДАМ 2-КК КВАРТИРУ 44,6 м2 в Советском районе рядом. За наличный расчёт предоставим торг. Вариант Заезжай и Живи - квартира остаётся как на фото. ИНФОРМАЦИЯ О КВАРТИРЕ:44.6 м2Квартира очень светлая 3 окна на западную сторонуБольшая прихожая, изолированные...
    • 44 м²
    • 2-ком
    • 2/10 эт.
    • монолит
    5 100 000 Р
    Агент
    +7 (912) Показать номер
    Посмотреть контакты
    2-комнатная квартира: Аша, улица Ленина, 36А (52 м) - Фото 1
    2-комнатная квартира: Аша, улица Ленина, 36А (52 м) - Фото 2
    2-комнатная квартира, общая площадь 52м², жилая 27м², кухня 8м²

    Мечтаете о своей 2-комнатной квартире? Вот она Идеальное предложение для тех, кто ценит комфорт и спокойствие. Продается прекрасная двухкомнатная квартира, готовая к вашему переезду.Что важно знать:Один собственник, без обременений: Быстрый и безопасный...
    • 52 м²
    • 2-ком
    • 1/5 эт.
    5 100 000 Р
    Агент
    +7 (905) Показать номер
    Посмотреть контакты
    2-комнатная квартира: Челябинск, Батумская улица, 12 (49.2 м) - Фото 1
    2-комнатная квартира: Челябинск, Батумская улица, 12 (49.2 м) - Фото 2
    2-комнатная квартира, общая площадь 49м², кухня 6м²

    Продается уютная и теплая квартира. Дом расположен в центральной части квартала, отсутствует влияние дороги по загазованности, пыли и шума. Квартира в хорошем состоянии. Перепланировки нет. Все комнаты раздельные. Потолок выровнен и окрашен. Все окна...
    • 49 м²
    • 2-ком
    • 2/5 эт.
    5 000 000 Р
    Агент
    +7 (912) Показать номер
    Посмотреть контакты
    3-к кв. Челябинская область, Челябинск ул. Пятницкого, 6 (56.5 м) - Фото 1
    3-к кв. Челябинская область, Челябинск ул. Пятницкого, 6 (56.5 м) - Фото 2
    3-комнатная квартира, общая площадь 56м², жилая 42м², кухня 5м²

    Предлагаем купить 3-ех комнатную квартиру в самом Центре Металлургического района Площадь квартиры - 56,5 м, удобный 3 этаж, кирпичный дом.Главное преимущество: заезжай и живи Мебель остаётся новым хозяевам, а значит — никаких лишних затрат и хлопот....
    • 56 м²
    • 3-ком
    • 3/5 эт.
    • кирпичный
    5 150 000 Р
    Агент
    +7 (912) Показать номер
    Посмотреть контакты

    Не нашли подходящего объявления?

    Оставьте заявку, и наши риэлторы подберут квартиру в районе Копейска

    (0)