45 000 000 Р 549 600 $ или 475 100

Состояние и оснащение

Количество этажей
2
Развернуть
Агент
+7 (912) 891-21-41
Начать чат с агентом

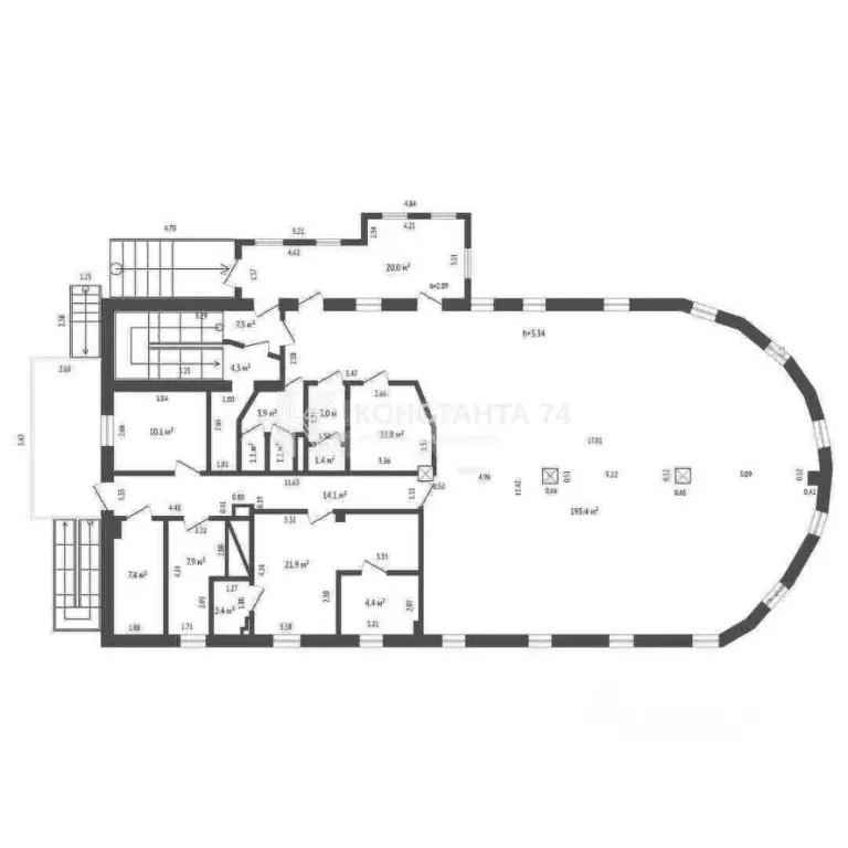
Помещение свободного назначения (1883.9 м)

id:49276. Предлагаем рассмотреть на покупку объекты незавершенного строительства в г.Касли К объекту относится:-Объект незавершенного строительства блок 2, площадью 914,1 кв.м.-Объект незавершенного строительства блок 1, площадью 996,8 кв.м.на земельном участке, площадью 12540 кв.м.-долгосрочная аренда.Варианты реализации проекта:Вариант №1 по имеющемуся ГПЗУ. Назначение: Образование и просвещение. Культурное развитие, Общественное питание. Спорт. Предложение: Запроектировать и построить СКОК (спортивно-культурный оздоровительный комплекс).Программа – «Развитие туризма на урале . В составе СКОКа – Гостиничный комплекс с апартаментами, кафе-ресторан, на территории термальные бассейны (открытые изакрытый), банно-прачечное отделение, массажно-оздоровительное отделение. На территории парковки с возможностью хранения снегоходов, квадроциклов, лодок.Вариант №2 внести изменение ГП, поменять назначение под жилое многоэтажное строительство Предложение: Запроектировать в существующей этажности (2-3 этажа с мансардой) жилой дом реализовать по ДДУ (проектноефинансирование).Вариант №3 внести изменение ГП, поменять назначение под жилое многоэтажное строительство Предложение: Запроектировать с предварительным обследованием здание 5 и более этажей. – реализовать по ДДУ(проектноефинансирование).

Читать полностью
    Позвонить Написать
    45 000 000 Р549 600 $ или 475 100
    Агент
    +7 (912) 891-21-41
    Начать чат с агентом
    Похожие предложения
    Помещение свободного назначения в Челябинская область, Миасс ул. ... - Фото 1
    Помещение свободного назначения в Челябинская область, Миасс ул. ... - Фото 2
    Продам помещение
    • 1/10 эт.
    45 500 000 Р
    Агент
    +7 (982) Показать номер
    Посмотреть контакты
    Помещение свободного назначения в Челябинская область, Чебаркуль ... - Фото 1
    Помещение свободного назначения в Челябинская область, Чебаркуль ... - Фото 2
    Код объекта: 2084286.Продажа готового гостинично-ресторанного комплекса в центре Чебаркуля. 900 м + участок 16,5 сот.Описание:Предлагается к продаже отдельно стоящее здание в самом центре Чебаркуля. Идеальный готовый бизнес или актив для долгосрочных...
    • 3/3 эт.
    44 000 000 Р
    Агент
    +7 (912) Показать номер
    Посмотреть контакты
    Помещение свободного назначения в Камчатский край, Елизово ... - Фото 1
    Помещение свободного назначения в Камчатский край, Елизово ... - Фото 2
    Отличное предложение для инвестирования Предлагается к продаже 2-х этажное здание (красная линия) идеально для реконструкции в гостиницу Здание очень выгодно расположено, вблизи с аэропортом, в перспективе очень выгодное место для развития В настоящее...
    • 2/2 эт.
    45 000 000 Р
    Агент
    +7 (914) Показать номер
    Посмотреть контакты
    Помещение свободного назначения в Карелия, Петрозаводск ш. ... - Фото 1
    Помещение свободного назначения в Карелия, Петрозаводск ш. ... - Фото 2
    Арт.Доп номер агента-101 (для набора в тональном режиме)В продажеОтель Вознесенский: двухэтажное здание, площадью 500 квадратов, на втором этаже 12 номеров, на первом 4 номера плюс 3 апартамента. На улице 8 домиков площадью 192 квадрата. Отопление газовое...
    • 1/2 эт.
    45 000 000 Р
    Агент
    +7 (911) Показать номер
    Посмотреть контакты
    Продажа ПСН, Шапсугская, Абинский район, Зеленый пер. - Фото 1
    Продажа ПСН, Шапсугская, Абинский район, Зеленый пер. - Фото 2
    Продажа ПСН, Шапсугская, Абинский район, Зеленый пер. - Фото 3
    Продажа ПСН, Шапсугская, Абинский район, Зеленый пер. - Фото 4
    Продажа ПСН, Шапсугская, Абинский район, Зеленый пер. - Фото 5
    Продажа ПСН, Шапсугская, Абинский район, Зеленый пер. - Фото 6
    Продажа ПСН, Шапсугская, Абинский район, Зеленый пер. - Фото 7
    Продажа ПСН, Шапсугская, Абинский район, Зеленый пер. - Фото 8
    Продажа ПСН, Шапсугская, Абинский район, Зеленый пер. - Фото 9
    Продажа ПСН, Шапсугская, Абинский район, Зеленый пер. - Фото 10
    Продажа ПСН, Шапсугская, Абинский район, Зеленый пер. - Фото 11
    Продажа ПСН, Шапсугская, Абинский район, Зеленый пер. - Фото 12
    Продажа ПСН, Шапсугская, Абинский район, Зеленый пер. - Фото 13
    Продажа ПСН, Шапсугская, Абинский район, Зеленый пер. - Фото 14
    Продажа ПСН, Шапсугская, Абинский район, Зеленый пер. - Фото 15
    Продажа ПСН, Шапсугская, Абинский район, Зеленый пер. - Фото 16
    Продажа ПСН, Шапсугская, Абинский район, Зеленый пер. - Фото 17
    Продажа ПСН, Шапсугская, Абинский район, Зеленый пер. - Фото 18
    Продажа ПСН, Шапсугская, Абинский район, Зеленый пер. - Фото 19
    общая площадь 300м², полезная площадь 300м²

    Продается База отдыха в ст Шапшугской. Готовый бизнес !!! С хорошим доходом!!! Аренда домика- ; Аренда ресторана С человека без питания., с питанием. Аренда беседокуб с человека. Баня В час с человека. Три беседки. Один домик, дом - баня(6 человек) сауна,...
    • 300 м²
    • 1-й эт.
    45 000 000 Р
    Агент
    +7 (903) Показать номер
    Агентство
    Золотая Арка
    Посмотреть контакты

    Не нашли подходящего объявления?

    Оставьте заявку, и наши риэлторы подберут псн в районе Каслей

    (0)