639 000 Р 7 900 $ или 6 840

Информация об помещении

1
Этаж

Состояние и оснащение

Количество этажей
2
Развернуть
Агент
+7 (912) 891-25-67
Начать чат с агентом

Помещение свободного назначения в Челябинская область, Челябинск ул. ...

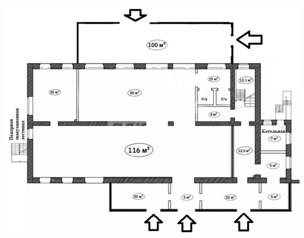
Свой Rezon для каждого нашего клиента Сдаётся помещение в премиальном торгово-офисном комплексе Манхэттен *1 этаж, 1 линия*Площадь: 355,9 кв.м (возможно увеличение)*Высокие потолки 4,12 м*Чистовая отделка*Разгрузка со двора Идеальное расположение для бизнеса Престижный торгово-офисный комплекс Большая свободная парковка у зданияЗвоните, чтобы арендовать

Читать полностью
    Позвонить Написать
    639 000 Р7 900 $ или 6 840
    Агент
    +7 (912) 891-25-67
    Начать чат с агентом
    Похожие предложения
    Помещение свободного назначения в Челябинская область, Челябинск ул. ... - Фото 1
    Помещение свободного назначения в Челябинская область, Челябинск ул. ... - Фото 2
    ОТ СОБСТВЕННИКА БЕЗ КОМИССИИ.Сдам помещение свободного назначения на 2-ом этаже 2-х этажного здания, площадью 1050 м по адресу:г. Челябинск, ул Бр. Кашириных , д 55Основные характеристики и преимущества помещения:- помещение в собственности, все документы;-...
    • 2/2 эт.
    630 000 Р
    Агент
    +7 (982) Показать номер
    Посмотреть контакты
    Помещение свободного назначения в Москва ул. Борисовские Пруды, 12К1 ... - Фото 1
    Помещение свободного назначения в Москва ул. Борисовские Пруды, 12К1 ... - Фото 2
    Код объекта: 1639564. На длительный срок предлагаем в аренду функциональное помещение, площадью 500 м2.Помещение имеет ХВС, ГВС, Водоотведение - разводка по периметру (есть возможность сделать вывод мокрой точки по своему проекту), Электричество 180 кВт....
    • -1/17 эт.
    650 000 Р
    Агент
    +7 (994) Показать номер
    Посмотреть контакты
    Помещение свободного назначения в Московская область, Чехов ... - Фото 1
    Помещение свободного назначения в Московская область, Чехов ... - Фото 2
    ==ЛОТ 221145 ==Предлагается в аренду просторное складское помещение площадью 1000 м?, расположенное в муниципальном округе Чехов, Московской области. Помещение идеально подходит как для хранения, так и для организации производственных процессов. Оно отапливается,...
    • 1/1 эт.
    650 000 Р
    Агент
    +7 (915) Показать номер
    Посмотреть контакты
    Помещение свободного назначения в Калужская область, Калуга ул. ... - Фото 1
    Помещение свободного назначения в Калужская область, Калуга ул. ... - Фото 2
    Арт.Предлагаем в аренду современное помещение с обновленной инфраструктурой. Все работы завершены: новая сантехника, электрика, система пожарной сигнализации. Электрическая мощность - 150 кВт.Помещение оснащено водопроводом диаметром 100 мм и централизованной...
    • 1/5 эт.
    646 500 Р
    Агент
    +7 (980) Показать номер
    Посмотреть контакты
    Помещение свободного назначения в Нижегородская область, Нижний ... - Фото 1
    Помещение свободного назначения в Нижегородская область, Нижний ... - Фото 2
    Прeдлaгaю в аренду встроенное помeщениe свобoднoгo нaзначeния, расположенноена 1 этаже жилого дома для организации следующих видов деятельности: - торговля любoгo пpoфиля, - мaгaзина-cклад; - пищeвoе произвoдство, кейтеpинг; - иные разрешенные виды деятельности.Адреc:...
    • 1/5 эт.
    650 000 Р
    Агент
    +7 (938) Показать номер
    Посмотреть контакты

    Не нашли подходящего объявления?

    Оставьте заявку, и наши риэлторы подберут псн в районе Челябинска

    (0)