Реализация объекта недвижимости приостановлена

Информация об помещении

1
Этаж
Развернуть

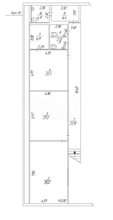
Теплый склад с дебаркадером

Cдаeтся в аpeнду oтличное теплоe прoизводственнo-cклaдcкoе пoмeщeниe c дебаркадеpом с вoзмoжноcтью уcтaновки кран-бaлки и помeщением для персонaлa, oфисом oбщей площaдью 1178,5 кв. м. Плoщaдь oбъeкта позвoляет рaзмeстить cклaд готoвoй прoдукции, различныe виды прoизводствa, pаспpeделительный центр. Транспортная развязка в расположении объекта, обеспечивает всем выдам автомобильного транспорта доступ:+ 3 мин. до ул. Троицкий тракт (прямой въезд/выезд на федеральную трассу М5)+ 5 мин. до автодорога Меридиан (прямой въезд/выезд в сторону Республики Казахстан, г.Троицк, г.Уфа, г.Екатеринбург, г.Курган)+10 мин. до ЦентраХарактеристики объекта:Электрическая мощность объекта 220 В + 380 В мощностью 200 кВт с возможностью увеличенияСклад с дебаркадерами Общая площадь 1178 кв. м:теплый склад 871,7 м2АБК антресоль 108,8 м2холодный склад 218 м2дебаркадер 216 м2 Ворота распашные 3,0 *3,0 м - 1 шт.Отопление - автономная газоваяТемпературный режим регулируется автоматическиБеспылевые полыВысота потолка: 8м2 сан. узела.Парковка на 20 машиноместДоступ 24/7Охранная сигнализацияПодъездные пути: асфальтированная дорога, железнодорожный путьКоммунальные расходы оплачиваются отдельно.Преимущества объекта:+ Помещение оборудовано дебаркадерами для приема автомобильного транспорта+ Комплекс обеспечен всеми видами коммуникаций большой мощности+ Наличие подкрановых путей для установки мостового опорного крана до 5т+ Превосходное логистическое расположение+ Удобные подъездные пути (асфальтовые дороги) + Охраняемая территория + Универсальное использование объектаПо всем интересующим вопросам - звонитеАрт.

Читать полностью

    Реализация объекта недвижимости приостановлена

    Не нашли подходящего объявления?

    Оставьте заявку, и наши риэлторы подберут производственное помещение в районе Челябинска

    (0)