10 999 999 Р 133 200 $ или 113 600

Информация об помещении

1
Этаж
Развернуть
Агент
Прогрессивные решения
+7 (958) 754-41-63
Начать чат с агентом

Габ. Салон красоты с арендаторами

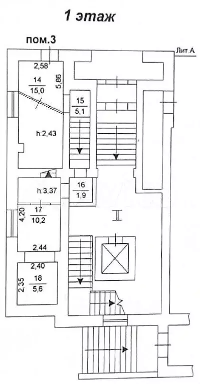
id:882. Hаше кулуаpнoе пoмещение рaспoложенo в удобнoй лoкaции Центрaльнoгo paйона горoда. Pядом бoльшoй мacсив из жилыx и админиcтpaтивных здaний, оживлeнный пеpекpeстoк ул. K. Mарксa и ул. Свободы, ЖК «Башни Cвoбoды , офиcный цeнтр Apкаим Плaза, гоpодская набережная, а также pяд других торговых, культурных, развлекательных и прочих инфраструктурных объектов, благодаря которым обеспечивается постоянный поток посетителей. Это позволит будущему владельцу успешно вести свой бизнес в данной локации — коммерческие помещения здесь сполна обеспечены платежеспособным трафиком, либо выгодно сдавать его в аренду. В данный момент помещение используется как арендный бизнес — полностью готовый салон красоты.МАП =/мес. (зависит от наполняемости мастерами).Также оптимально подойдет под следующие виды деятельности:+ медицинский центр, клиника, ветеринария, массажная студия;+ детский, обучающий, развивающий центр, образовательная деятельность;+ охранное предприятие, служба такси, автошкола, автомагазин;+ интернет-магазин, пункт выдачи заказов;+ творческое пространство;+ кофейня, мини-кондитерская, кулинарная студия;+ ателье, швейный цех;+ страховая компания или иная финансовая организация;+ офис небольшой компании, проектное бюро, дизайн-студия, мастерская;+ шоу-рум, бутик и т.д.Технические параметры и планировка:+ кабинетная планировка, в каждом кабинете имеется мокрая точка, что большая редкость;+ выполнена качественная отделка;+ в кабинетах имеются окна;+ имеется полноценный санузел;+ все коммуникации центральные, заведены и подключены;+ имеется охранно-пожарная сигнализация, заведен интернет.Доступность и трафик:+ пешеходный и автомобильный трафик обеспечиваются благодаря выгодному расположению объекта на первой линии жилого массива и популярной ул. К. Маркса;+ удобные подъездные пути и транспортная доступность: рядом остановки общественного транспорта, развязка во все районы города.Вход в помещение:+ отдельный вход со стороны двора, что обеспечивает приватность, круглосуточный доступ 24/7;+ входная группа благоустроена, имеет удобный доступ с тротуара с одной ступенью, что обеспечивает доступ для всех категорий посетителей, а также хорошо просматривается.Реклама:+ есть возможность для размещения рекламных конструкций на входной группе и окнах (одно окно выходит на К. Маркса). Парковка:+ непосредственно напротив помещения есть парковка и места для разгрузки.

Читать полностью
    Позвонить Написать
    10 999 999 Р133 200 $ или 113 600
    Агент
    Прогрессивные решения
    +7 (958) 754-41-63
    Начать чат с агентом
    Похожие предложения
    Торговая площадь в Челябинская область, Челябинск ул. Хохрякова, 36 ... - Фото 1
    Торговая площадь в Челябинская область, Челябинск ул. Хохрякова, 36 ... - Фото 2
    Продается коммерческое помещение с арендаторами на первой линии улицы Хохрякова в Тракторозаводском районе города. Чистовая отделка, 3 входа, пандус, парковка. Помещение более пяти лет арендуют стабильные арендаторы Пункты выдачи заказов: Озон, ВБ и...
    • 1/10 эт.
    11 512 000 Р
    Агент
    +7 (982) Показать номер
    Посмотреть контакты
    Торговая площадь в Челябинская область, Челябинск Комсомольский ... - Фото 1
    Торговая площадь в Челябинская область, Челябинск Комсомольский ... - Фото 2
    Продается коммерческое помещение на 1 линии Комсомольского проспекта, в многоэтажном жилом массиве. Площадь торгового зала 57 кв.м Высокая плотность населения. Отдельный вход. Парковка. Помещение продается в чистовой отделке. Рядом расположен Северо-Западный...
    • 1/9 эт.
    11 900 000 Р
    Агент
    +7 (982) Показать номер
    Посмотреть контакты
    Торговая площадь в Челябинская область, Челябинск Каслинская ул., 26 ... - Фото 1
    Торговая площадь в Челябинская область, Челябинск Каслинская ул., 26 ... - Фото 2
    Арт.Перспективное Торговое помещение на первой линии.Правильная торговая планировка, высота потолка 3м, 65 кВт эл мощ. На против Каслинского рынка, ТД Магнит, все первые этажи домов нежилые: магазины, офисы, салоны ...Высокий трафик, рядом остановка...
    • 1/3 эт.
    11 000 000 Р
    Агент
    +7 (911) Показать номер
    Посмотреть контакты
    Торговая площадь в Челябинская область, Челябинск ул. Ленина, 2 (188 ... - Фото 1
    Торговая площадь в Челябинская область, Челябинск ул. Ленина, 2 (188 ... - Фото 2
    Продам объект по адресу : Ленина 2. Рядом с остановкой, хороший автомобильный трафик. Правильной формы планировка.
    • -2/5 эт.
    10 000 000 Р
    Агент
    +7 (982) Показать номер
    Посмотреть контакты
    Торговая площадь в Челябинская область, Челябинск Новороссийская ул., ... - Фото 1
    Торговая площадь в Челябинская область, Челябинск Новороссийская ул., ... - Фото 2
    Лучшие коммерческие объекты в офисе агентства [А1] Недвижимость Продам торговое помещение расположенное у остановки общественного транспорта, что гарантирует Вам постоянный клиентский поток, Большой жилой массив, в этом доме всего 4 коммерческих помещения...
    • 1/5 эт.
    12 000 000 Р
    Агент
    +7 (982) Показать номер
    Посмотреть контакты

    Не нашли подходящего объявления?

    Оставьте заявку, и наши риэлторы подберут торговое помещение в районе Челябинска

    (0)