38 500 000 Р 482 400 $ или 414 200

Информация об помещении

1
Этаж

Состояние и оснащение

Количество этажей
1
Развернуть
Агент
+7 (912) 891-25-67
Начать чат с агентом

Торговая площадь в Челябинская область, Челябинск просп. Ленина, 71 ...

ГАБ с окупаемостью 9 лет Предлагаем приобрести здание 329 кв.м с федеральным арендатором Ярче и федеральной аптекойДолгосрочный договор, ежегодная индексация Все коммунальные услуги оплачиваются арендаторомПодробную информацию уточняйте по телефону.

Читать полностью
    Позвонить Написать
    38 500 000 Р482 400 $ или 414 200
    Агент
    +7 (912) 891-25-67
    Начать чат с агентом
    Похожие предложения
    Торговая площадь в Челябинская область, Челябинск ул. Елькина, 85 (370 ... - Фото 1
    Торговая площадь в Челябинская область, Челябинск ул. Елькина, 85 (370 ... - Фото 2
    Продаётся торгово-офисное помещение в отличном районе Ищете комфортное и просторное место для вашего бизнеса? Тогда это предложение для вас Продаётся светлое и уютное торгово-офисное помещение, которое станет идеальным выбором для вашей компании.Преимущества:Удобное...
    • 1/6 эт.
    40 000 000 Р
    Агент
    +7 (982) Показать номер
    Посмотреть контакты
    Торговая площадь в Новосибирская область, Новосибирск Учительская ул., ... - Фото 1
    Торговая площадь в Новосибирская область, Новосибирск Учительская ул., ... - Фото 2
    Код объекта: 1735893. Готовый арендный бизнес с надёжными и устойчивыми арендаторами.Предлагается к продаже коммерческое помещение торгового назначения общей площадью 154,8 кв. м,расположенное на первом этаж жилого дома.Помещение сдано в аренду магазину...
    • 1/5 эт.
    39 900 000 Р
    Агент
    +7 (913) Показать номер
    Посмотреть контакты
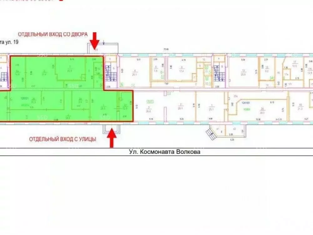
    Торговая площадь в Москва ул. Космонавта Волкова, 19 (278 м) - Фото 1
    Торговая площадь в Москва ул. Космонавта Волкова, 19 (278 м) - Фото 2
    Лот 157355.Продажа помещения свободного назначения по адресу: г. Москва, САО, Войковский район, ул. Космонавта Волкова, 19. Ближайшие станции метро: Красный Балтиец 7 мин. пешком, Войковская 17 мин. пешком. Помещение расположено на первой линии улицы...
    • 1/5 эт.
    39 500 000 Р
    Агент
    +7 (985) Показать номер
    Посмотреть контакты
    Торговая площадь в Московская область, Одинцово Каштановая Роща жилой ... - Фото 1
    Торговая площадь в Московская область, Одинцово Каштановая Роща жилой ... - Фото 2
    Лот 151522.Предлагается в продажу торговое помещение в ЖК Каштановая Роща по адресу: Московская область, г. Одинцово, ЖК Каштановая Роща, корп. 1.5, всего в 7,5 км. от МКАД по Минскому ш. Комплекс будет состоять из 22 корпусов на жителей.Срок получения...
    • 1/17 эт.
    39 796 700 Р
    Агент
    +7 (985) Показать номер
    Посмотреть контакты
    Торговая площадь в Московская область, Красногорск ул. Липовой Рощи, 5 ... - Фото 1
    Торговая площадь в Московская область, Красногорск ул. Липовой Рощи, 5 ... - Фото 2
    Продажа торгового помещения с арендатором Цветы 55 м2 в г. Красногорск, ул. Липовой Рощи, д. 5 (15 минут пешком от метро Строгино). 1-я линия домов. Помещение 55 масполагается на 1 этаже, открытая планировка, отдельный вход с фасада, высота потолка...
    • 1/1 эт.
    38 500 000 Р
    Агент
    +7 (916) Показать номер
    Посмотреть контакты

    Не нашли подходящего объявления?

    Оставьте заявку, и наши риэлторы подберут торговое помещение в районе Челябинска

    (0)