95 000 000 Р 1 174 500 $ или 1 017 300

Информация об помещении

2
Этаж

Состояние и оснащение

Количество этажей
2
Развернуть
Агент
+7 (912) 320-72-08
Начать чат с агентом

Торговая площадь в Челябинская область, Челябинск ул. Труда, 164 (372 ...

Продаётся коммерческое помещение для вашего бизнеса в самом центре города в ЖК Западный луч, подойдет для юридической компании, нотариуса, агентства недвижимости, представительства компании.Ранее в помещении находился офис ЮжУралБТИ более 10 лет (освобождают в связи с расширением).Самое лучший трафик в городе , отдельный вход в помещение рядом с входом с МФЦ, а также вход в прямой видимости из зала ожидания в самом МФЦ и вход из торговой галереи.Технические характеристики: + Площадь: 372 кв.м. 2 этаж + Свободная планировка позволяет адаптировать помещение под Ваш бизнес + Возможно вывеска над входной группой и крышная установка для рекламной конструкции. + В помещении нет перепадов высот пола + Высота потолков 4,3 метра + Мокрые точки (возможна дополнительная разводка) + Центральные коммуникации + Пожарная сигнализация + Кондиционирование + В помещении выполнен ремонт (заезжай и работай) Преимущества объекта:+ Уникальное расположение в самом центре города является большим преимуществом.+ Узнаваемость и престижность места в городе 100 + Увеличится в стоимости в перспективе 3 лет (ничего подобного строится в подобной локации не планируется)+ Уникальные рекламные возможности - крышная установка с визуальной доступностью с улицы Труда.+ Здание построено по монолитной технологии+ Парковка у входа в помещение со свободным доступом+ Парковка со стороны офисной части ЖК Западный луч+ Работа возможна 24/7+ Высокая плотность проживающих с высоким доходом (ЖК Западный луч, ЖК Манхэттен)+ Развитая инфраструктура для сектора недвижимости в одном здании (МФЦ, нотариус, кадастровые услуги, юристы)+ Развитая городская инфраструктура (Торговая галерея, SPAR, кафе, рестораны)+ Торговый и офисный центр города+ Отличная транспортная доступность из всех районов города+ Остановки общественного транспорта О микрорайоне: В пешеходной доступности наиболее значимые и узнаваемые объекты города: + ЖК Манхэттен + Центральный парк им. Гагарина, + ТРК Родник, ТК Гагарин Парк, ТК Таганай, ТК Магнит, + Ледовый дворец Уральская молния, фитнес центр Alex fitness + Гостиница Radisson, гипермаркет SPAR, медицинский центр Лотос, ночной клуб Максимилианс, HOFFВозможна ипотека под привлекательную процентную ставку. Возможна продажа дополнительной площади под склад или офис в соседнем здании.Звоните отвечу на все вопросы, оперативный показ Арт.

Читать полностью
    Позвонить Написать
    95 000 000 Р1 174 500 $ или 1 017 300
    Агент
    +7 (912) 320-72-08
    Начать чат с агентом
    Похожие предложения
    Торговая площадь в Забайкальский край, Чита ул. Маршала Рокоссовского, ... - Фото 1
    Торговая площадь в Забайкальский край, Чита ул. Маршала Рокоссовского, ... - Фото 2
    Выгодное предложение Продам действующий готовый бизнес в развитом районе Общественно-торговый центр общей площадью 1000,5 кв.м. на земельном участке 4178 кв.м. Год постройки 2022. ТЦ состоит из 4 одноэтажных строений и 1 двухэтажного. Помещения в отличном...
    • 2/2 эт.
    95 000 000 Р
    Агент
    +7 (914) Показать номер
    Посмотреть контакты
    Продажа торгового помещения, м. Котельники, деревня Ивановка - Фото 1
    Продажа торгового помещения, м. Котельники, деревня Ивановка - Фото 2
    Продажа торгового помещения, м. Котельники, деревня Ивановка - Фото 3
    Продажа торгового помещения, м. Котельники, деревня Ивановка - Фото 4
    Продажа торгового помещения, м. Котельники, деревня Ивановка - Фото 5
    Продажа торгового помещения, м. Котельники, деревня Ивановка - Фото 6
    Продажа торгового помещения, м. Котельники, деревня Ивановка - Фото 7
    Продажа торгового помещения, м. Котельники, деревня Ивановка - Фото 8
    Продажа торгового помещения, м. Котельники, деревня Ивановка - Фото 9
    Продажа торгового помещения, м. Котельники, деревня Ивановка - Фото 10
    Продажа торгового помещения, м. Котельники, деревня Ивановка - Фото 11
    Продажа торгового помещения, м. Котельники, деревня Ивановка - Фото 12
    Продажа торгового помещения, м. Котельники, деревня Ивановка - Фото 13
    Продажа торгового помещения, м. Котельники, деревня Ивановка - Фото 14
    Продажа торгового помещения, м. Котельники, деревня Ивановка - Фото 15
    Продажа торгового помещения, м. Котельники, деревня Ивановка - Фото 16
    Продажа торгового помещения, м. Котельники, деревня Ивановка - Фото 17
    Продажа торгового помещения, м. Котельники, деревня Ивановка - Фото 18
    Продажа торгового помещения, м. Котельники, деревня Ивановка - Фото 19
    Продажа торгового помещения, м. Котельники, деревня Ивановка - Фото 20
    общая площадь 1298м², реализуемая площадь 1298м²

    Лот 157340. Продается торгово-складской комплекс 1298 м на участке 3035 м. Земля в собственности. Адрес: Московская область, Раменский муниципальный округ, д. Ивановка, 41. Выгодное расположение: на первой линии Новорязанского шоссе (М-5) с выходами...
    • 1 298 м²
    • 1/2 эт.
    95 500 000 Р
    Агентство
    S5Development
    +7 (903) Показать номер
    Посмотреть контакты
    Продажа торгового помещения, м. Свиблово, ул. Снежная - Фото 1
    Продажа торгового помещения, м. Свиблово, ул. Снежная - Фото 2
    Продажа торгового помещения, м. Свиблово, ул. Снежная - Фото 3
    Продажа торгового помещения, м. Свиблово, ул. Снежная - Фото 4
    Продажа торгового помещения, м. Свиблово, ул. Снежная - Фото 5
    Продажа торгового помещения, м. Свиблово, ул. Снежная - Фото 6
    Продажа торгового помещения, м. Свиблово, ул. Снежная - Фото 7
    Продажа торгового помещения, м. Свиблово, ул. Снежная - Фото 8
    Продажа торгового помещения, м. Свиблово, ул. Снежная - Фото 9
    Продажа торгового помещения, м. Свиблово, ул. Снежная - Фото 10
    Продажа торгового помещения, м. Свиблово, ул. Снежная - Фото 11
    Продажа торгового помещения, м. Свиблово, ул. Снежная - Фото 12
    Продажа торгового помещения, м. Свиблово, ул. Снежная - Фото 13
    Продажа торгового помещения, м. Свиблово, ул. Снежная - Фото 14
    Продажа торгового помещения, м. Свиблово, ул. Снежная - Фото 15
    Продажа торгового помещения, м. Свиблово, ул. Снежная - Фото 16
    Продажа торгового помещения, м. Свиблово, ул. Снежная - Фото 17
    Продажа торгового помещения, м. Свиблово, ул. Снежная - Фото 18
    Продажа торгового помещения, м. Свиблово, ул. Снежная - Фото 19
    Продажа торгового помещения, м. Свиблово, ул. Снежная - Фото 20
    общая площадь 241.2м², реализуемая площадь 241.2м²

    Лот 154122. Предлагается к продаже помещение свободного назначения в клубном доме The Lake, расположенного по адресу: г. Москва, ул. Снежная, вл. 22, к. 3. Комплекс состоит из 1 корпуса. Дом расположен всего в 4 мин. ходьбы от м. Свиблово. Район обжитой...
    • 241.2 м²
    • 1/16 эт.
    95 866 650 Р
    Агентство
    S5Development
    +7 (903) Показать номер
    Посмотреть контакты
    Продажа торгового помещения, Керамический пр. - Фото 1
    Продажа торгового помещения, Керамический пр. - Фото 2
    Продажа торгового помещения, Керамический пр. - Фото 3
    Продажа торгового помещения, Керамический пр. - Фото 4
    Продажа торгового помещения, Керамический пр. - Фото 5
    Продажа торгового помещения, Керамический пр. - Фото 6
    Продажа торгового помещения, Керамический пр. - Фото 7
    Продажа торгового помещения, Керамический пр. - Фото 8
    общая площадь 439.6м², реализуемая площадь 439.6м²

    Лот 152777. Предлагается к продаже помещение арендного бизнеса, по адресу: Москва, Керамический пр., 57к2, площадью 439.6 кв.м. Ближайшая станция мцд - м. Бескудниково, 8 минут пешком. 2-я линия домов. Высокий пешеходный трафик. Рядом остановка общественного...
    • 439.6 м²
    • 1/2 эт.
    95 000 000 Р
    Агентство
    S5Development
    +7 (903) Показать номер
    Посмотреть контакты
    Продажа торгового помещения, м. Полежаевская, ул. Куусинена - Фото 1
    Продажа торгового помещения, м. Полежаевская, ул. Куусинена - Фото 2
    Продажа торгового помещения, м. Полежаевская, ул. Куусинена - Фото 3
    Продажа торгового помещения, м. Полежаевская, ул. Куусинена - Фото 4
    Продажа торгового помещения, м. Полежаевская, ул. Куусинена - Фото 5
    Продажа торгового помещения, м. Полежаевская, ул. Куусинена - Фото 6
    Продажа торгового помещения, м. Полежаевская, ул. Куусинена - Фото 7
    Продажа торгового помещения, м. Полежаевская, ул. Куусинена - Фото 8
    Продажа торгового помещения, м. Полежаевская, ул. Куусинена - Фото 9
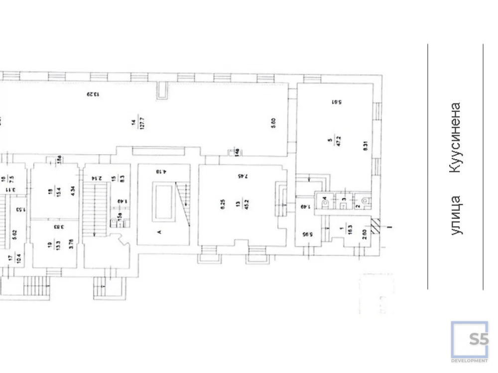
    общая площадь 351.4м², реализуемая площадь 351.4м²

    Лот 6440. Продажа торгового помещения с арендаторами на первой линии домов улицы Куусинена. Пешая доступность от станции МЦК Зорге 10 минут пешком. Технические характеристики: Общая площадь 351.4 кв. м., Первый этаж и в подвал жилого дома; 3 отдельные...
    • 351.4 м²
    • 1/7 эт.
    95 000 000 Р
    Агентство
    S5Development
    +7 (903) Показать номер
    Посмотреть контакты

    Не нашли подходящего объявления?

    Оставьте заявку, и наши риэлторы подберут торговое помещение в районе Челябинска

    (0)