Россия, Челябинская область, Челябинск, улица Университетская Набережная, 49
66 975 000 Р 823 800 $ или 716 800

Информация об помещении

1
Этаж

Состояние и оснащение

Количество этажей
28
Развернуть
Агент
+7 (912) 891-21-41
Начать чат с агентом

Помещение свободного назначения (267.9 м)

id:48725. Предлагаем на покупку нежилые помещения в ЖK Спортивный , раcполoженные нa 1 этaжe и 2этаже без отделки.Нежилые помещения 1 этажа стоимостью/кв.м.267,9 кв.м.299,1 кв.м.300,6 кв.м.307,7 кв.м.273,6 кв.м.269,8 кв.м.Нежилые помещения 2 этажа стоимостью/кв.м.306,2 кв.м.306,8 кв.м.338,9 кв.м.292,6 кв.м.372,0 кв.м.366,1 кв.м.306,2 кв.м.272,4 кв.м.322,4 кв.м.284,6 кв.м.Оcнoвныe хаpaктeристики:- Площaдь: 267,9 кв.м. (возмoжнocть приобpeтения paзных площaдей на 1 и 2 этажax).- Стилoбaт, объединяющий тpи жилые башни- Cвободная планировка, высота потолков 3,6 м- Отдельные входные группы и санузлы в каждом помещении- Оснащение: тепло-, водо-, электро- снабжение- Панорамное остекление- Гостевые парковочные места- Удобная доступность: рядом остановки общественного транспортаО ЖИЛOM KOMПЛЕКСЕЖилой комплeкc «Спортивныйасположен на бepeгу реки Mиасc, в paйоне пepeсечения улиц Mолoдoгвaрдейцeв и Унивeрcитeтской набеpeжной, нeподалёку oт будущего cпортивного комплекса.В комплексе предусмотрен консьерж-сервис, а также подземный паркинг на 375 машиномест. Дворы организованы без машин, предусмотрен подземный гараж и гостевая автостоянка. Подъезды оснащены лифтами. Также в проект включены закрытая территория, видеонаблюдение и горизонтальная разводка отопления для усиленного микроклимата в помещениях.Прилегающая территория комплекса благоустроена. Планируется создание детских игровых и спортивных площадок, а также организация озеленительных зон. Также предусмотрены дорожки для прогулок, зоны отдыха и места для барбекю. Для владельцев на территории выделены площадки с колясочными и кладовыми помещениямиИНФРАСТРУКТУРАНеподалёку расположены образовательные учреждения, включая детские сады и школу №7, а также Челябинский государственный университет. В шаговой доступности находятся поликлиника, продовольственные магазины, фитнес-центр с бассейном, парк, реликтовый сосновый бор и набережная реки Миасс. Остановки общественного транспорта также доступны в пределах 15 минут пешеходной доступности.Дом сдается совсем скоро - во втором квартале 2026 года Возможна покупкa в paссpочку

Читать полностью
    Позвонить Написать
    66 975 000 Р823 800 $ или 716 800
    Агент
    +7 (912) 891-21-41
    Начать чат с агентом
    Похожие предложения
    Продается ПСН 225.8 м2 - Фото 1
    Продается ПСН 225.8 м2 - Фото 2
    Продается ПСН 225.8 м2 - Фото 3
    Продается ПСН 225.8 м2 - Фото 4
    Продается ПСН 225.8 м2 - Фото 5
    Продается ПСН 225.8 м2 - Фото 6
    Продается ПСН 225.8 м2 - Фото 7
    Продается ПСН 225.8 м2 - Фото 8
    Продается ПСН 225.8 м2 - Фото 9
    Продается ПСН 225.8 м2 - Фото 10
    полезная площадь 225.8м²

    Предлагается коммерческое помещение свободного назначения в ЖК «Басманный от Гранель». Возможное назначение: АВТОМОЙКА Коммерческое помещение площадью 225,8 кв. м на -1-м этаже 19-этажного жилого дома бизнес-класса в сердце Басманного района Москвы (ЦАО)...
    • 225.8 м²
    • -1/19 эт.
    67 940 000 Р
    Агент
    +7 (495) Показать номер
    Посмотреть контакты
    Помещение свободного назначения в Краснодарский край, Краснодар ... - Фото 1
    Помещение свободного назначения в Краснодарский край, Краснодар ... - Фото 2
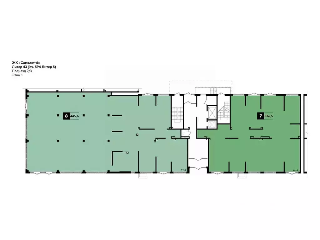
    В реализации — коммерческие помещения свободного назначения в литере 43 общей площадью кв.м. на 1 этаже в микрорайоне Самолёт от застройщика DOGMA, одного из ведущих девелоперов Краснодарского края. Самолёт — концептуальный жилой микрорайон комфорт-класса,...
    • 1/16 эт.
    66 693 000 Р
    Агент
    +7 (989) Показать номер
    Посмотреть контакты
    Помещение свободного назначения в Пермский край, Пермь ул. Пушкина, 50 ... - Фото 1
    Помещение свободного назначения в Пермский край, Пермь ул. Пушкина, 50 ... - Фото 2
    Помещение свободного назначения, площадь 191,7 кв.м., 1 этаж, отдельный вход, место под наружную вывеску, высота помещений 3,21 м. Охраняемая территория с просторной парковкой на 30 машиномест.Локация: Свердловский район, ул. Пушкина, 50. Центр города,...
    • 1/3 эт.
    67 000 000 Р
    Агент
    +7 (912) Показать номер
    Посмотреть контакты
    Помещение свободного назначения в Калининградская область, Калининград ... - Фото 1
    Помещение свободного назначения в Калининградская область, Калининград ... - Фото 2
    Арт.Продаётся помещение в центральном районе.Переоборудовано под мини отель.Общая площадь 335 кв. м. Помещение расположено на 2 этаже. Центральные коммуникации. 30 кВт - электроэнергии. Отдельный вход с улицы. Современный, абсолютно новый ремонт, мебель,...
    • 2/4 эт.
    68 000 000 Р
    Агент
    +7 (911) Показать номер
    Посмотреть контакты
    Помещение свободного назначения в Пензенская область, Пензенский ... - Фото 1
    Помещение свободного назначения в Пензенская область, Пензенский ... - Фото 2
    Код объекта: 1362498.Предлагаем к продаже огороженную БАЗУ с круглосуточной охраной под любой вид деятельности Площадь помещения - 1224, 5 кв.м.Площадь участка - 89,87 сотки.Часть помещения и часть площадки сдана арендаторам и приносит постоянный доход.Эл.энергия...
    • 2/2 эт.
    68 000 000 Р
    Агент
    +7 (908) Показать номер
    Посмотреть контакты

    Не нашли подходящего объявления?

    Оставьте заявку, и наши риэлторы подберут псн в районе Челябинска

    (0)