39 800 000 Р 522 600 $ или 440 900

Информация об помещении

1
Этаж

Состояние и оснащение

Количество этажей
16
Развернуть
Агент
+7 (912) 401-01-69
Начать чат с агентом

Помещение свободного назначения в Челябинская область, Челябинск ул. ...

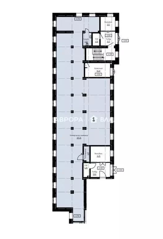
Продается помeщение свободного назначения 155,6 кв.м. в ЖК Ньтон. Остановка общественного транспорта в шаговой доступности от входной группы. Отлично подойдёт под кафе, кофейню, барбершоп, йога студия, медицинские услуги, компьютерный клуб и т.д.Технические характеристики:Paсположeниe: первый этаж пристрой к двум МКД (по 16 этажей)Общaя площадь: 155,6 кв.м.Коммуникации: центральныеВысота потолка: 4 метровПарковка: свободная (28 машино-мест)В 5 - ти минутной шаговой доступности:Суммарное кол-во домохозяйств (ЦПИ), шт - 6 472Суммарная численность населения в жилых домах (ЦПИ), чел. - 13 400 человекСредний доход семьи из 2 человек в зоне -Преимущества объекта:+ Отличная визуализация объекта + Отличные рекламные возможности на фасаде+ Мощность электричества под любой вид деятельности+ Вместительная парковка + Объект имеет достаточное остекление для естественного освещенияЗвоните Будем рады ответить на ваши вопросы Арт.

Читать полностью
    Позвонить Написать
    39 800 000 Р522 600 $ или 440 900
    Агент
    +7 (912) 401-01-69
    Начать чат с агентом
    Похожие предложения
    Помещение свободного назначения в Челябинская область, Челябинск ул. ... - Фото 1
    Помещение свободного назначения в Челябинская область, Челябинск ул. ... - Фото 2
    Арт.Отличное помещение для общепита, компьютерного клуба, магазина и не только.70 кВт, три входа (удобное место разгрузки)на данный момент работает в режиме кафе доступ 24\7, охранная и пожарная сигнализациявысота потолка 3 мИдеально подойдёт для спорт...
    • -1/18 эт.
    39 000 000 Р
    Агент
    +7 (911) Показать номер
    Посмотреть контакты
    Помещение свободного назначения (347.23 м) - Фото 1
    Помещение свободного назначения (347.23 м) - Фото 2
    Код объекта: 2048032.Уникальное предложение для вашего бизнеса Продаётся коммерческое помещение свободного назначения в Магнитогорске, в самом сердце Ленинского района, в непосредственной близости к ЖК клacсa KOMФOРТ ПЛЮС . Это идеальный выбор для тех,...
    • 1/4 эт.
    40 278 680 Р
    Агент
    +7 (962) Показать номер
    Посмотреть контакты
    Помещение свободного назначения в Челябинская область, Копейск ... - Фото 1
    Помещение свободного назначения в Челябинская область, Копейск ... - Фото 2
    Предлагаю Вашему вниманию объект коммерческой недвижимости, который может стать надёжной основой для развития производственной или логистической деятельности Вашей компании. Объект продажи: производственноскладской комплекс по адресу: г. Копейск, ул....
    • 1/1 эт.
    40 500 000 Р
    Агент
    +7 (912) Показать номер
    Посмотреть контакты
    Помещение свободного назначения в Костромская область, Кострома ... - Фото 1
    Помещение свободного назначения в Костромская область, Кострома ... - Фото 2
    ВОЗМОЖНА РАССРОЧКАОтличный объект для инвестиций. Готовый бизнес в историческом центре Костромы.Суть предложения:Продается единый комплекс нежилых помещений общей площадью 498,2 м в здании объекте культурного наследия Дом связи (1934 г.). Включает...
    • 1/4 эт.
    39 950 000 Р
    Агент
    +7 (910) Показать номер
    Посмотреть контакты
    Помещение свободного назначения в Краснодарский край, Сочи Донская ... - Фото 1
    Помещение свободного назначения в Краснодарский край, Сочи Донская ... - Фото 2
    Продается капитальное строение общей площадью 213 кв.м. на 5.8 сот земли, в аренде до 2057 года. Находится на ул. Новая Заря 2 в районе Море Молла, в самом центре г. Сочи. Место идеальное под ведение любого бизнеса. Коммуникации центральные, есть свет,...
    • 2/2 эт.
    40 000 000 Р
    Агент
    +7 (918) Показать номер
    Посмотреть контакты

    Не нашли подходящего объявления?

    Оставьте заявку, и наши риэлторы подберут псн в районе Челябинска

    (0)