65 000 000 Р 821 200 $ или 707 800

Информация об помещении

2
Этаж

Состояние и оснащение

Количество этажей
3
Развернуть
Агент
+7 (982) 110-77-30
Начать чат с агентом

Помещение свободного назначения в Челябинская область, Челябинск ул. ...

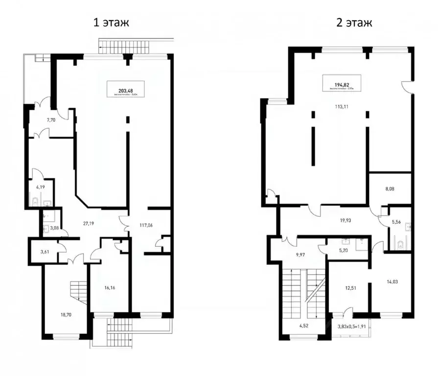
Продается 2 этаж нежилого здания, отдельный вход с 1 этажа, свободная планировка на колоннах, высокие потолки, зона разгрузки с подъемным механизмом, большая парковка у здания. Здание обслужено, не требует ремонта, все коммуникации центральные. На этаже расположены 2 арендатора: магазин ЧИЖИК и офисы. В здании работает также Мотосалон, Пятерочка, аптека Вита. Очень активный перекресток с высоким автомобильным трафиком, рядом жилая застройка, остановки.

Читать полностью
    Позвонить Написать
    65 000 000 Р821 200 $ или 707 800
    Агент
    +7 (982) 110-77-30
    Начать чат с агентом
    Похожие предложения
    Помещение свободного назначения в Челябинская область, Челябинск ... - Фото 1
    Помещение свободного назначения в Челябинская область, Челябинск ... - Фото 2
    Продаётся помещение в центре Челябинска. Объект находится на улице Братьев Кашириных между улицами Кирова и Каслинская. Приближенность к наиболее посещаемым местам горожан. В визуальной доступности находятся: Торговый центр, Цирк, Зелёный рынок, рынок...
    • 1/11 эт.
    66 000 000 Р
    Агент
    +7 (912) Показать номер
    Посмотреть контакты
    Продажа ПСН, Краснодар, ул. Октябрьская - Фото 1
    Продажа ПСН, Краснодар, ул. Октябрьская - Фото 2
    Продажа ПСН, Краснодар, ул. Октябрьская - Фото 3
    Продажа ПСН, Краснодар, ул. Октябрьская - Фото 4
    Продажа ПСН, Краснодар, ул. Октябрьская - Фото 5
    общая площадь 1400м², полезная площадь 1400м²

    . Четырехэтажное здание с земельным участком 1400 м (0,09 га) в исторической части Краснодара. ул. Октябрьская, 57 (вторая линия ул. Морозова). Локация: Центр города — максимальная проходимость и статусный адрес Жилая застройка (МКД), детский сад, сквер...
    • 1 400 м²
    • 4 этажа
    65 435 500 Р
    PRO
    +7 (922) Показать номер
    Посмотреть контакты
    Помещение свободного назначения в Москва Ильменский проезд, 8 (144 м) - Фото 1
    Помещение свободного назначения в Москва Ильменский проезд, 8 (144 м) - Фото 2
    Агентская комиссия 2 . Цена указана с учётом скидки.Продаётся помещение свободного назначения площадью 144.2 кв. м. в новостройке Левел Селигерская по адресу Москва, САО, Западное Дегунино, Ильменский проезд, корп. 5. Помещение со свободной планировкой....
    • 1/40 эт.
    64 088 552 Р
    Агент
    +7 (916) Показать номер
    Посмотреть контакты
    Помещение свободного назначения в Краснодарский край, Новороссийск ... - Фото 1
    Помещение свободного назначения в Краснодарский край, Новороссийск ... - Фото 2
    Арт.Продам помещение свободного назначения на набережной Адмирала СерябряковаОбщая площадь: 386 м2 , 2й этаж- Помещение без ремонта.- Коммуникации: электричество 30 кВт, вода сетевая, канализация центральная, отопление чиллер.- Высота потолка 3.2м2- Окна...
    • 2/5 эт.
    65 620 000 Р
    Агент
    +7 (989) Показать номер
    Посмотреть контакты
    Помещение свободного назначения в Липецкая область, Липецк ул. ... - Фото 1
    Помещение свободного назначения в Липецкая область, Липецк ул. ... - Фото 2
    Код объекта: 1172232.Производственная база на ОпытнойПлощадь помещений 3367мВысота потолков в производственных помещениях от 6,3м до 9,2мПлощадь земельного участка вокруг здания 45 сотокДоступная электрическая мощность 500кВтСвежий ремонт кровлиСвоя котельная...
    • 1/2 эт.
    64 000 000 Р
    Агент
    +7 (919) Показать номер
    Посмотреть контакты

    Не нашли подходящего объявления?

    Оставьте заявку, и наши риэлторы подберут псн в районе Челябинска

    (0)