47 520 000 Р 585 300 $ или 505 300

Информация об помещении

2
Этаж

Состояние и оснащение

Количество этажей
9
Развернуть
Агент
Дан-Ритейл
+7 (912) 401-01-69
Начать чат с агентом

Помещение свободного назначения в Челябинская область, Челябинск ул. ...

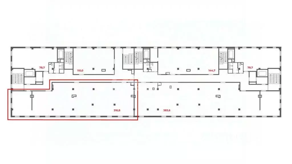
Продается коммерческое помещение свободного назначения, расположенное на первой линии нового жилого дома, по одной из самых оживлённых 4-х полосных автомагистралей ул. Братьев Кашириных, по направлению в сторону северо-запада. В районе расположения объекта всегда стабильно высокий автомобильный и пешеходные трафики. Технические характеристик:Расположение: 2-й этаж 9-ти этажного жилого домаПлощадь: 316,8 кв.м.Состояние: Строительная отделкаВысота потолка: 3 м.Вход: Общий с первой линииКол-во входов в помещение: 4 шт.Лифт: грузопассажирскийКоммуникации: центральныеЭлектрическая мощность: 15 кВтСан. узел: общий на этаже (2 шт.)Мокрая точка в помещении: отсутствуетПарковка: свободнаяОстановка общественного транспорта: 50 м. ост. ЧелГу (9 маршрутов) Условия сделки: Договор уступки прав требования,Возможна ипотека. Предполагаемый вид использования:Торговое помещениеУчебный центрОбъект по оказанию бытовых услугТворческая студияСервисный центр электроники и бытовой техникиПредставительство компании (офис)Арендный бизнес Важно отметить следующие преимущества объекта:Возможно разделить помещение на 4 и более объектов.Подъем на 2-й этаж осуществляется в том числе и на грузопассажирском лифте с нулевым уровнем доступа.Объект обладает выгодным трафиковым соседством с одним из крупнейших вызов Челябинской обрасти, Челгу. Остановка общественного транспорта 50 м.Инфраструктура в радиусе 500 м.:Государственные и муниципальные учреждения (3 объекта)Научные и учебные заведения (7 объектов)Медицинские учреждения (4 объекта)Объекты детской тематики (14 объектов)Объекты спортивной тематики (9 объектов)Кредитно-финансовые учреждения и страхования (10 объектов)Представители продуктового ритейла и федеральных сетей (45 объектов)Объекты по продаже товаров народного потребления (43 объекта)Магазины электроники и бытовой техники (12 объектов)Объекты по оказанию бытовых услуг (52 объекта)Объекты общественного питания (11 объектов)Объекты автомобильной тематики (24 объекта) В радиусе 500 м расположены многоквартирные жилые дома со средней этажностью 11-12 этажей. Плотность населения 14 568 чел. Звоните Будем рады ответить на ваши вопросы Арт.

Читать полностью
    Позвонить Написать
    47 520 000 Р585 300 $ или 505 300
    Агент
    Дан-Ритейл
    +7 (912) 401-01-69
    Начать чат с агентом
    Похожие предложения
    Помещение свободного назначения в Челябинская область, Челябинск ул. ... - Фото 1
    Помещение свободного назначения в Челябинская область, Челябинск ул. ... - Фото 2
    Арт.Предлагается на продажу нежилое помещение общей площадью 316,8 кв.м. в новом жилом комплексе Дом на Кашириных на втором этаже. Дом расположен на первой линии, рядом с остановками общественного транспорта и напротив Челябинского государственного...
    • 2/9 эт.
    47 520 000 Р
    Агент
    +7 (982) Показать номер
    Посмотреть контакты
    Помещение свободного назначения в Санкт-Петербург просп. Маршала ... - Фото 1
    Помещение свободного назначения в Санкт-Петербург просп. Маршала ... - Фото 2
    Продаётся помещение свободного назначения площадью 120 кв. м. в новостройке ЖК Морская миля по адресу Санкт-Петербург, Красносельский, проспект Маршала Жукова, 23Г. Окна с видом во двор и на улицу. Высота потолков 3.50 м. Отдельный вход с улицы. Стоимость...
    • 1/23 эт.
    47 127 927 Р
    Агент
    +7 (911) Показать номер
    Посмотреть контакты
    Продажа ПСН, м. Технопарк, Проектируемый пр. No 4062 - Фото 1
    Продажа ПСН, м. Технопарк, Проектируемый пр. No 4062 - Фото 2
    Продажа ПСН, м. Технопарк, Проектируемый пр. No 4062 - Фото 3
    Продажа ПСН, м. Технопарк, Проектируемый пр. No 4062 - Фото 4
    Продажа ПСН, м. Технопарк, Проектируемый пр. No 4062 - Фото 5
    общая площадь 121м², полезная площадь 121м²

    Лот 152903. Предлагается к продаже помещение, Москва, Проектируемый пр. No 4062, 6, стр. 1, 121 м2, высокая проходимость, помещение расположено на первом этаже БЦ, рядом расположены ЖК Nоw, ЖК Шагал, ЖК Нагатино, ЖК Айленд и ЖК WОW. Транспортная доступность...
    • 121 м²
    • 1-й эт.
    49 000 000 Р
    Агентство
    S5Development
    +7 (903) Показать номер
    Посмотреть контакты
    Продажа ПСН, м. Орехово, Ореховый бульвар 47/33 - Фото 1
    Продажа ПСН, м. Орехово, Ореховый бульвар 47/33 - Фото 2
    Продажа ПСН, м. Орехово, Ореховый бульвар 47/33 - Фото 3
    Продажа ПСН, м. Орехово, Ореховый бульвар 47/33 - Фото 4
    Продажа ПСН, м. Орехово, Ореховый бульвар 47/33 - Фото 5
    Продажа ПСН, м. Орехово, Ореховый бульвар 47/33 - Фото 6
    общая площадь 72м², полезная площадь 72м²

    Лот 152321. Объект расположен по адресу: ЮАО, р-н Орехово-Борисово Южное, Ореховый бул., 4. Расположено на первом этаже 17 этажного жилого дома. Ближайшая станция "Орехово" в 10 минутах пешком. Локация характеризуется плотной жилой застройкой и развитой...
    • 72 м²
    • 1-й эт.
    49 000 000 Р
    Агентство
    S5Development
    +7 (903) Показать номер
    Посмотреть контакты
    Продажа ПСН, м. Римская, Сергия Радонежского 29-31с4 - Фото 1
    Продажа ПСН, м. Римская, Сергия Радонежского 29-31с4 - Фото 2
    Продажа ПСН, м. Римская, Сергия Радонежского 29-31с4 - Фото 3
    Продажа ПСН, м. Римская, Сергия Радонежского 29-31с4 - Фото 4
    Продажа ПСН, м. Римская, Сергия Радонежского 29-31с4 - Фото 5
    Продажа ПСН, м. Римская, Сергия Радонежского 29-31с4 - Фото 6
    Продажа ПСН, м. Римская, Сергия Радонежского 29-31с4 - Фото 7
    Продажа ПСН, м. Римская, Сергия Радонежского 29-31с4 - Фото 8
    Продажа ПСН, м. Римская, Сергия Радонежского 29-31с4 - Фото 9
    Продажа ПСН, м. Римская, Сергия Радонежского 29-31с4 - Фото 10
    Продажа ПСН, м. Римская, Сергия Радонежского 29-31с4 - Фото 11
    Продажа ПСН, м. Римская, Сергия Радонежского 29-31с4 - Фото 12
    Продажа ПСН, м. Римская, Сергия Радонежского 29-31с4 - Фото 13
    Продажа ПСН, м. Римская, Сергия Радонежского 29-31с4 - Фото 14
    Продажа ПСН, м. Римская, Сергия Радонежского 29-31с4 - Фото 15
    Продажа ПСН, м. Римская, Сергия Радонежского 29-31с4 - Фото 16
    Продажа ПСН, м. Римская, Сергия Радонежского 29-31с4 - Фото 17
    общая площадь 60м², полезная площадь 60м²

    Лот 150772. Предлагается в продажу помещение свободного назначения по адресу: Москва, ЦАО, Таганский район, ул. Сергия Радонежского 29-31с1, площадью 60 кв.м. Ближайшая станция метро: м. Римская - 1 минута пешком. Торговое окружение: Вкусно и точка,...
    • 60 м²
    • 1-й эт.
    48 000 000 Р
    Агентство
    S5Development
    +7 (903) Показать номер
    Посмотреть контакты

    Не нашли подходящего объявления?

    Оставьте заявку, и наши риэлторы подберут псн в районе Челябинска

    (0)