10 170 000 Р 142 700 $ или 122 800

Информация об помещении

1
Этаж

Состояние и оснащение

Количество этажей
10
Развернуть
Агент
+7 (912) 891-73-96
Начать чат с агентом

Помещение свободного назначения в Челябинская область, Челябинск ул. ...

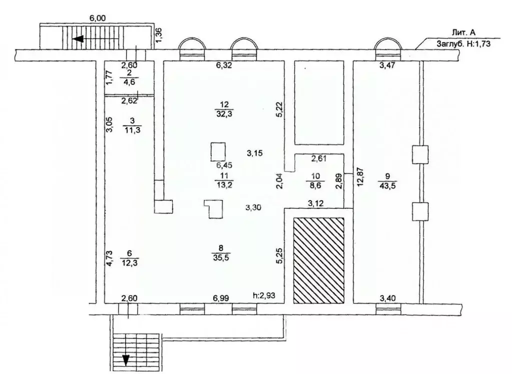
Продается нежилое помещение в Челябинске, микрорайон Тополиная Аллея Площадь: 75,2 кв.м.Кадастровый номер: 74:36:0501008:905.Год постройки: 2005.Этаж: 1 этаж 10-этажного жилого дома.Состояние: хорошее.Помещение находится в отличном состоянии и готово к немедленному использованию. Отдельный вход и удобное расположение внутри густозаселенного жилого квартала делают его идеальным для любой коммерческой деятельности.Преимущества:•Отличная локация: микрорайон Тополиная Аллея — один из самых престижных и живописных районов Челябинска.•Отдельный вход: обеспечивает удобство и привлекательность для клиентов.•Густозаселенный жилой квартал: высокий поток людей и постоянный спрос.•Многофункциональность: идеально подходит для офисов, магазинов, салонов красоты, медицинских центров и других видов бизнеса.•Коммуникации: центральное отопление, водоснабжение, канализация, электроснабжениеОсобые условия:•Аренда с продавцом (ПАО Ростелеком). Одновременно с заключением договора купли-продажи предусмотрено заключение договора аренды под размещение оборудования сроком на 12 месяцев, на время выноса оборудования. Площадь аренды - 75,2 кв.м., ставка/кв.м. без НДС. Электроэнергия оплачивается согласно потреблению по счетчику.Условия продажи:•Цена указана с учетом НДС в соответствии с действующим законодательством РФ•Продажа от собственника: без посредников.•Условия приобретения уточняйте по телефону, указанному в объявлении.Звоните прямо сейчас, чтобы узнать больше и договориться о просмотре Ответим на все ваши вопросы и предложим выгодные условия покупки

Читать полностью
    Позвонить Написать
    10 170 000 Р142 700 $ или 122 800
    Агент
    +7 (912) 891-73-96
    Начать чат с агентом
    Похожие предложения
    Помещение свободного назначения в Челябинская область, Челябинск ул. ... - Фото 1
    Помещение свободного назначения в Челябинская область, Челябинск ул. ... - Фото 2
    Продам нежилое цокольное помещение в Центре города.Помещение легендарного Борис Бара. Рядом Пешеходная Кировка, Новая Набережная, деловой бизнес центр Челябинска, ТРК Куба, Очень плотный жилой массив.Помещение оборудовано кухней, большим посадочным залом,...
    • -1/16 эт.
    10 000 000 Р
    Агент
    +7 (919) Показать номер
    Посмотреть контакты
    Помещение свободного назначения в Челябинская область, Челябинск ул. ... - Фото 1
    Помещение свободного назначения в Челябинская область, Челябинск ул. ... - Фото 2
    Инвестируйте в надежность: помещение на 1-й линии с окупаемостью всего 8 лет. Оюъект расположен в Челябиснке. Федеральный арендатор Wildberries успешно работает более года, обеспечивая стабильный доход с первого дня владения. Это редкое сочетание низкой...
    • 1/3 эт.
    10 500 000 Р
    Агент
    +7 (982) Показать номер
    Посмотреть контакты
    Помещение свободного назначения в Челябинская область, Челябинск ул. ... - Фото 1
    Помещение свободного назначения в Челябинская область, Челябинск ул. ... - Фото 2
    Продается помещение с федеральным арендатором, pаcположено в жилом массиве с высоким пешеходным и автомобильным трафиком, ТК Кольцо, oживлeнный пepекреcток, a также pяд других инфраструктурных объектов. Вид использования: арендный бизнес.Технические характеристики:Расположен...
    • 1/9 эт.
    10 000 000 Р
    Агент
    +7 (912) Показать номер
    Посмотреть контакты
    Помещение свободного назначения в Челябинская область, Челябинск ... - Фото 1
    Помещение свободного назначения в Челябинская область, Челябинск ... - Фото 2
    id:49890. Продается помещение свободного назначения 68,42 кв. м.. в новом жилом комплекс комфорт класса, расположенный на ул. Отечественной, 16 этажного дома. Жилой комплекс удачно расположен в районе с хорошо развитой инфраструктурой и высокой транспортной...
    • 1/15 эт.
    10 260 000 Р
    Агент
    +7 (912) Показать номер
    Посмотреть контакты
    Помещение свободного назначения в Челябинская область, Челябинск ... - Фото 1
    Помещение свободного назначения в Челябинская область, Челябинск ... - Фото 2
    Первая линия пр. Ленина- Горького , ост. Комсомольская площадь Отдельный вход на Горького , второй во дворе , трафик. Возможные варианты использования: Бутик одежды, Шоурум, Сервисный центр, Интернет-магазин, и др.Хороший пешеходный трафик, вблизи...
    • -1/4 эт.
    10 000 000 Р
    Агент
    +7 (919) Показать номер
    Посмотреть контакты

    Не нашли подходящего объявления?

    Оставьте заявку, и наши риэлторы подберут псн в районе Челябинска

    (0)