32 800 000 Р 428 000 $ или 363 800

Информация о помещении и здании

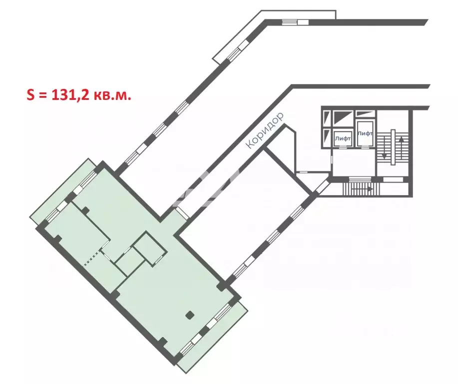
7
Этаж
16
Этажность
Развернуть
Агент
+7 (912) 309-21-99
Начать чат с агентом

Офис в Челябинская область, Челябинск Лесопарковая ул., 8 (131 м)

Продажа коммерческого помещения для вашего бизнеса. Апартаменты премиум класса в клубном ЖК Gagarine Residence с видом на Челябинский городской бор. Тихий экологически чистый центр города. Помещение с качественным ремонтом, достаточное количество розеток и естественного освещения. Универсальная планировка подходит под любые виды деятельности: офис продаж, представительство компании, центр красоты, груминг студия, мастер классы, легкое производство.Закрытая благоустроенная территория с видеонаблюдением, парковка подземная и на территории, на 1 этаже жилого комплекса располагается бассейн на 2 дорожки с джакузи, горячая сауна и тренажёрный зал.Технические характеристики помещения:Площадь: 131,2 кв.м.Этаж: 7Высота потолков: 3 м.Эл. мощность: 15 кВтЕстественное освещение: 4 панорамных окна в пол, по обе стороны ЖК, 2 балконаСобственный сан. узел.: гостевой и для сотрудниковКоммуникации: ЦентральныеИндивидуальные счетчики отопления: ЕстьПарковка: НЕ закрытая для ваших клиентов, шлагбаум.Юридический адрес: ЕстьВид права: собственность Инфраструктура:Рядом расположены учебные заведения, развлекательные центры и точки сосредоточения культурной жизни города + 0,2 км. до Гостиничный комплекс Park city + 1,4 км. до ЮУРГУ+ 2,7 км. до сквер Алое поле Возможно приобретение через коммерческую ипотеку.Заинтересовались объектом? Звоните Арт.

Читать полностью
    Позвонить Написать
    32 800 000 Р428 000 $ или 363 800
    Агент
    +7 (912) 309-21-99
    Начать чат с агентом
    Похожие предложения
    Офис в Челябинская область, Челябинск ул. Энгельса, 28 (311 м) - Фото 1
    Офис в Челябинская область, Челябинск ул. Энгельса, 28 (311 м) - Фото 2
    1-й этаж, всего 14 этажей

    Просторное коммерческое помещение площадью 311 кв. м расположено в центральном районе города с высокой пешеходной проходимостью.. Объект состоит из цокольного этажа с высокими окнами, создающими естественное освещение, и первого этажа с панорамными, что...
    • 1/14 эт.
    32 160 000 Р
    Агент
    +7 (912) Показать номер
    Посмотреть контакты
    Офис в Челябинская область, Челябинск ул. Салтыкова, 39 (360 м) - Фото 1
    Офис в Челябинская область, Челябинск ул. Салтыкова, 39 (360 м) - Фото 2
    2-й этаж, всего 2 этажа

    Лучшие коммерческие объекты в офисе агентства [А1] Недвижимость Продaм отдельно стоящее здание общей площадью 540 кв.м. с землей (8 соток):- жилая площадь (можно использовать под офисы) 2 этажа - 360 кв.м., - цоколь 180 кв.м.Отлично подойдeт под офисы,...
    • 2/2 эт.
    32 000 000 Р
    Агент
    +7 (982) Показать номер
    Посмотреть контакты
    Офис в Татарстан, Казань ул. Саид-Галеева, 6 (261 м) - Фото 1
    Офис в Татарстан, Казань ул. Саид-Галеева, 6 (261 м) - Фото 2
    5-й этаж, всего 6 этажей

    Продаю помещение с ремонтом и арендаторами в Центре Казани, по ул. Саид-Галеева,6261 кв.м. Годовой доход 8 .Характеристики помещения:Прекрасно подходит под организацию арт пространства, спа салона, Студии танцев и др.Улицы рядом- Коротченко, Ташаяк, Гаяза...
    • 5/6 эт.
    33 000 000 Р
    Агент
    +7 (919) Показать номер
    Посмотреть контакты
    Офис в Москва наб. Пресненская, 12 (47 м) - Фото 1
    Офис в Москва наб. Пресненская, 12 (47 м) - Фото 2
    5-й этаж, всего 95 этажей

    Продажа офисного помещения в Башне Федерация Восток. 5 этаж.Площадь 47,1 м2.Планировка: открытая. Возможно установить перегородку и выделить кабинет (предусмотрено проектом).В офисе выполнена типовая отделка.Вид из окон на юг Москвы: башни Сити, ТЦ...
    • 5/95 эт.
    32 000 000 Р
    Агент
    +7 (984) Показать номер
    Посмотреть контакты
    Продажа офиса 99.75 м2 - Фото 1
    Продажа офиса 99.75 м2 - Фото 2
    Продажа офиса 99.75 м2 - Фото 3
    Продажа офиса 99.75 м2 - Фото 4
    Продажа офиса 99.75 м2 - Фото 5
    Продажа офиса 99.75 м2 - Фото 6
    Продажа офиса 99.75 м2 - Фото 7
    Продажа офиса 99.75 м2 - Фото 8
    Продажа офиса 99.75 м2 - Фото 9
    Продажа офиса 99.75 м2 - Фото 10
    Продажа офиса 99.75 м2 - Фото 11
    Продажа офиса 99.75 м2 - Фото 12
    Продажа офиса 99.75 м2 - Фото 13
    Продажа офиса 99.75 м2 - Фото 14
    Продажа офиса 99.75 м2 - Фото 15
    реализуемая площадь 99.8м², 5-й этаж, всего 13 этажей

    ОФИС В БАШНЕ B | RUBLEVO BUSINESS PARK Класс А | Победитель премии Move Realty Awards в номинации «Лучший проект для инвестиций» Инвестируйте в офис с максимальным потенциалом роста - в новом бизнес-центре Rublevo Business Park. Современный проект А-класса...
    • 99.8 м²
    • 5/13 эт.
    33 026 170 Р
    Агент
    +7 (495) Показать номер
    Посмотреть контакты

    Не нашли подходящего объявления?

    Оставьте заявку, и наши риэлторы подберут офис в районе Челябинска

    (0)