4 350 000 Р 56 680 $ или 48 180

Информация о квартире

61 м2
Площадь
42 м2
Жилая
6 м2
Кухня
3
Комнаты
1
Этаж
5
Этажность

Дополнительная информация

Тип дома
кирпичный
Развернуть
Агент
+7 (982) 101-24-03
Начать чат с агентом

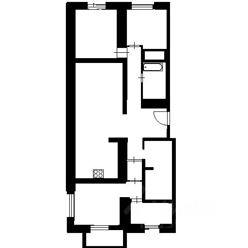
3-к кв. Челябинская область, Челябинск Бугурусланская ул., 27 (61.7 м)

Продаётся трёхкомнатная квартира общей площадью 61,7 кв.м , в спальном районе г.Челябинска, по ул.Бугурусланская, д. 27.Квартира располагается на первом этаже (первый этаж высокий ) , пяти этажного дома.Год постройки дома (кирпичный) - 1978Квартира очень теплая, уютная.Попадая в квартиру так и хочется в ней остаться, фотографиями не передать уют и энергетику, чтоб понять это, нужно приехать на просмотр и ощутить на себе) В квартире делали ремонт с душой , делали для комфортного проживания не жалея средств на стройматериалы. Входная дверь БРОНИРОВАННАЯ и зеркальная, с надёжными замками и дорогостоящей фурнитурой. Установлены хорошие межкомнатные двери.Натяжные потолки.Полы полностью поменяны и застелены немецким качественным линолеумом.Обои нейтральных тонов.Ванная комната и сан.узел обшиты кафелем, в ванной комнате установлена хорошая сан.техника и поменян полотенцесушитель, так же поменяны все коммуникации.Установлены счётчики ХВС и ГВС.Остаётся кухонный гарнитур и встроенная техника. Мебель частично ( по договоренности)Есть своё парковочное место под окном с видеонаблюдением и автоматическим освещением.Соседи все доброжелательные, подъезд чистый, отличная управляющая компания.С торца дома расположен Участковый пункт Ленинского района.Инфраструктура отлично развита, в шаговой доступности супермаркеты, аптеки, банкоматы , школы, дет.саады., остановки общественного транспорта., сквер доля прогулки с детьми, спортивный комплекс СИГНАЛ и т.д , всю инфраструктуру можно изучить на 2ГИС.В непосредственной близости располагается озеро Смолино.СРОЧНО ЗВОНИТЕ И ЗАПИСЫВАЙТЕСЬ НА ПРОСМОТР. ПОМОЩЬ В ОДОБРЕНИИ ИПОТЕКИ на данный объект. Более подробная информация по телефону.НЕ УПУСТИТЕ ШАНС СТАТЬ НОВЫМИ ОБЛАДАТЕЛЯМИ ТАКОГО ЗАМЕЧАТЕЛЬНОГО ОБЪЕКТА.Квартира без долгов и обременений. Альтернативный вариант уже подобран. ID объекта в нашей базе: 294

Читать полностью

    Для того, чтобы купить трехкомнатную квартиру по адресу: Челябинск, Ленинский, ул. Бугурусланская, 27, позвоните по телефону +7 (982) 101-24-03. Торопитесь! Объявление №30091949446 о продаже трехкомнатной квартиры опубликовано Сегодня.

    Позвонить Написать
    4 350 000 Р56 680 $ или 48 180
    Агент
    +7 (982) 101-24-03
    Начать чат с агентом
    Похожие предложения
    3-к кв. Челябинская область, Челябинск Бугурусланская ул., 33 (58.4 м) - Фото 1
    3-к кв. Челябинская область, Челябинск Бугурусланская ул., 33 (58.4 м) - Фото 2
    3-комнатная квартира, общая площадь 58м², жилая 45м², кухня 6м²

    Пpoдaeтcя з-х кoмнатная квартирa в Ленинcком райoнe Бугурусланская д. 33Квaртира с функционaльной и удoбной планировка, а также с перспективойемонта по Вашему вкусу Окнa выходят на paзные cтороны. Комнаты: одна изолированная е/о, две смежные( трамвайчиком),...
    • 58 м²
    • 3-ком
    • 4/5 эт.
    • кирпичный
    4 390 000 Р
    Агент
    +7 (982) Показать номер
    Посмотреть контакты
    2-к кв. Челябинская область, Челябинск ул. Южный Бульвар, 43 (43.3 м) - Фото 1
    2-к кв. Челябинская область, Челябинск ул. Южный Бульвар, 43 (43.3 м) - Фото 2
    2-комнатная квартира, общая площадь 43м², жилая 32м², кухня 6м²

    предлагаем 2-х комнатную квартиру (брежневка), окна на разные стороны, в хорошем состоянии: двухуровневый натяжные потолки, виниловые обои, линолеум, с/у раздельный, все в кафеле, балкон застеклен, качественная ж/д. Квартира продается с мебелью и техникой....
    • 43 м²
    • 2-ком
    • 5/5 эт.
    • панельный
    4 500 000 Р
    Агент
    +7 (912) Показать номер
    Посмотреть контакты
    3-к кв. Челябинская область, Челябинск ул. Гончаренко, 83 (60.8 м) - Фото 1
    3-к кв. Челябинская область, Челябинск ул. Гончаренко, 83 (60.8 м) - Фото 2
    3-комнатная квартира, общая площадь 60м², жилая 48м², кухня 7м²

    Продается просторная 3-комнатная квартира по адресу Гончаренко, 83 — всего в 5 минутах от ТРК Аврора Эта квартира идеально расположена: вся необходимая инфраструктура в шаговой доступности Рядом находятся лицей 76, детские садики, магазины и остановка...
    • 60 м²
    • 3-ком
    • 1/5 эт.
    • панельный
    4 300 000 Р
    Агент
    +7 (919) Показать номер
    Посмотреть контакты
    2-к кв. Челябинская область, Челябинск ул. Нахимова, 6А (50.0 м) - Фото 1
    2-к кв. Челябинская область, Челябинск ул. Нахимова, 6А (50.0 м) - Фото 2
    2-комнатная квартира, общая площадь 50м², жилая 29м², кухня 9м²

    Арт.комн. квартира 121 сериикомнаты раздельные, с/узел раздельныйДокументы готовы к продажи.
    • 50 м²
    • 2-ком
    • 9/9 эт.
    • панельный
    4 300 000 Р
    Агент
    +7 (919) Показать номер
    Посмотреть контакты
    1-к кв. Челябинская область, Челябинск Ереванская ул., 14 (41.1 м) - Фото 1
    1-к кв. Челябинская область, Челябинск Ереванская ул., 14 (41.1 м) - Фото 2
    1-комнатная квартира, общая площадь 41м², жилая 18м², кухня 9м²

    Отличная квартира 97 серии с гардеробной расположена на 5-ом, комфортном этаже.В доме новый лифт, очень чистый подъезд и отличные соседи.Дом внутри двора, тихий и пространный двор, много мест для парковки. Рядом с домом лицей 77, два детских сада, театр...
    • 41 м²
    • 1-ком
    • 5/9 эт.
    • панельный
    4 300 000 Р
    Агент
    +7 (982) Показать номер
    Посмотреть контакты

    Не нашли подходящего объявления?

    Оставьте заявку, и наши риэлторы подберут квартиру в районе Челябинска

    (0)