8 200 000 Р 100 900 $ или 87 060

Информация о квартире

62 м2
Площадь
45 м2
Жилая
9 м2
Кухня
3
Комнаты
8
Этаж
11
Этажность

Дополнительная информация

Тип дома
панельный
Развернуть
Агент
+7 (982) 290-38-50
Начать чат с агентом

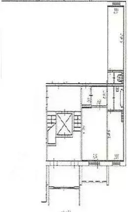
3-к кв. Челябинская область, Челябинск ул. Академика Макеева, 21 (62.0 ...

Продается светлая и уютная 3-комнатная квартира площадью 62 кв. м на 8-м этаже 11-этажного панельного дома, построенного в 2011 году. Просторная жилая площадь в 45 кв. м включает в себя три комнаты, а кухня занимает 9 кв. м. В квартире предусмотрен один санузел и один балкон, что делает ее идеальной для комфортной жизни.В квартире сделан косметический ремонт, поэтому вам не нужно беспокоиться о срочных вложениях. Жилое пространство оформлено современно и стильно, что позволяет вам сразу заехать и наслаждаться комфортом. Высота потолков составляет 2.65 метра, создавая ощущение простора. На кухне достаточно места для всей необходимой бытовой техники и удобной зоны для семейных обедов.Дом оборудован грузовым лифтом, что очень удобно для переездов и повседневных нужд. Наличие пандуса и мусоропровода делают проживание здесь еще более комфортным. Территория дома ухоженная, есть возможность парковки автомобилей.В шаговой доступности находятся школы, детские сады и клиники, что особенно важно для семей с детьми. Также рядом расположены магазины и другие объекты инфраструктуры, необходимые для повседневной жизни. Удобная транспортная доступность позволяет быстро добраться до центра города и других районов.Квартира продается без обременений, что существенно упрощает сделку. Возможна покупка в ипотеку, что дает вам дополнительные финансовые возможности. Все документы готовы к сделке, поэтому процесс покупки будет максимально быстрым и простым.Звоните и записывайтесь на просмотр, чтобы лично оценить все преимущества этой замечательной квартиры. Мы всегда рады показать вам ваш будущий дом

Читать полностью

    Для того, чтобы купить трехкомнатную квартиру по адресу: Челябинск, Центральный, ул. Академика Макеева, 21, позвоните по телефону +7 (982) 290-38-50. Торопитесь! Объявление №30091680302 о продаже трехкомнатной квартиры опубликовано 09 ноября 2025.

    Позвонить Написать
    8 200 000 Р100 900 $ или 87 060
    Агент
    +7 (982) 290-38-50
    Начать чат с агентом
    Похожие предложения
    3-к кв. Челябинская область, Челябинск ул. Академика Макеева, 25 (64.5 ... - Фото 1
    3-комнатная квартира, общая площадь 64м², жилая 40м², кухня 12м²

    Арт.Представляем вашему вниманию квартиру, где каждая деталь продумана для комфортной жизни вашей семьи. Здесь вы найдете всё, что нужно для счастливого детства и спокойствия родителей:Удобство и забота о детях:Садик прямо во дворе: Забудьте о долгих...
    • 64 м²
    • 3-ком
    • 5/10 эт.
    • панельный
    8 299 000 Р
    Агент
    +7 (919) Показать номер
    Посмотреть контакты
    2-к кв. Челябинская область, Челябинск ул. Архитектора Александрова, ... - Фото 1
    2-к кв. Челябинская область, Челябинск ул. Архитектора Александрова, ... - Фото 2
    2-комнатная квартира, общая площадь 53м², жилая 34м², кухня 11м²

    Предлагаем Вашему вниманию уютную двух комнатную квартиру в ЖК СамоцветыРемонт выполнен из качественных, дорогих материалов, делали для себяО квартире:+ Окна выходят на разные стороны+ Сделан косметический ремонт из качественных материалов+ Заменены натяжные...
    • 53 м²
    • 2-ком
    • 1/10 эт.
    • панельный
    8 200 000 Р
    Агент
    +7 (982) Показать номер
    Посмотреть контакты
    3-к кв. Челябинская область, Челябинск ул. Володарского, 10 (65.6 м) - Фото 1
    3-к кв. Челябинская область, Челябинск ул. Володарского, 10 (65.6 м) - Фото 2
    3-комнатная квартира, общая площадь 65м², жилая 42м², кухня 8м²

    Арт.х комнатная квартира в по адресу: Володарского, 10Дом расположен в самом центре, отличное месторасположение, вся инфраструктура в шаговой доступности, хорошая транспортная развязка. Новый современный сквер рядом с домом со спортивной и детской площадкой.ХАРАКТЕРИСТИКИ...
    • 65 м²
    • 3-ком
    • 8/9 эт.
    • панельный
    8 300 000 Р
    Агент
    +7 (919) Показать номер
    Посмотреть контакты
    2-к кв. Челябинская область, Челябинск Университетская Набережная ул., ... - Фото 1
    2-к кв. Челябинская область, Челябинск Университетская Набережная ул., ... - Фото 2
    2-комнатная квартира, общая площадь 60м², жилая 25м², кухня 17м²

    Продаётся двухкомнатная квартира 60,87 кв.м. в новом ЖК Никс Сити .Семейная ипотека Поможем с одобрением О комплексе:+ Современные фасады+ Сквозные парадные с колясочными комнатами и удобным выходом во двор+ Закрытый двор+ Соседский клуб+ Единый центр...
    • 60 м²
    • 2-ком
    • 6/17 эт.
    • панельный
    8 200 000 Р
    Агент
    +7 (919) Показать номер
    Посмотреть контакты
    3-к кв. Челябинская область, Челябинск ул. Гагарина, 16 (71.1 м) - Фото 1
    3-к кв. Челябинская область, Челябинск ул. Гагарина, 16 (71.1 м) - Фото 2
    3-комнатная квартира, общая площадь 71м², жилая 43м², кухня 9м²

    Пpoдaм прекрасную трёхкомнатную квартиру Толстые кирпичные стены обеспечивают отличную шумоизоляцию и тепло Высоченные потолки, создающие простор Большие окна и 2 балкона на разные стороны Недавно сделан ремонт:- заменены полы- выровнены стены- заменена...
    • 71 м²
    • 3-ком
    • 3/5 эт.
    • кирпичный
    8 200 000 Р
    Агент
    +7 (919) Показать номер
    Посмотреть контакты

    Не нашли подходящего объявления?

    Оставьте заявку, и наши риэлторы подберут квартиру в районе Челябинска

    (0)