6 172 000 Р 77 330 $ или 66 410

Информация о квартире

51 м2
Площадь
39 м2
Жилая
5 м2
Кухня
3
Комнаты
6
Этаж
10
Этажность

Дополнительная информация

Тип дома
панельный
Развернуть
Агент
+7 (982) 300-66-81
Начать чат с агентом

3-к кв. Челябинская область, Челябинск ул. Дмитрия Неаполитанова, 44 ...

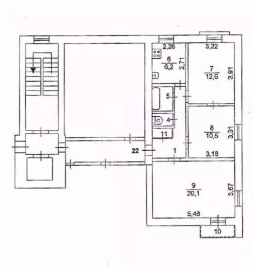
Продается уютная трехкомнатная квартира в Челябинске, на улице Дмитрия Неаполитанова. Главным достоинством данного предложения является качественный ремонт от застройщика и просторные помещения, что идеально подходит для комфортной жизни.Ключевые преимущества квартиры: общая площадь 51,45 м, жилая площадь 39 м и кухня 5 м. Удобный 6-й этаж в 10-этажном панельном доме, наличие лифта, балкона и центрального отопления обеспечивают комфорт и удобство в повседневной жизни. Санузел совмещенный, что добавляет функциональности.Район, в котором расположена квартира, отличается развитой инфраструктурой и отличными транспортными связями. В шаговой доступности находятся магазины, школы и детские сады, что делает его идеальным для семейных пар. Также поблизости располагаются парк культуры и отдыха, спортивные площадки и медицинские учреждения.Цена квартиры составляет, что делает предложение весьма привлекательным для покупателей. Сделка проходит по прямой продаже, все документы готовы, а возможность оформления ипотеки упрощает процесс приобретения.Не упустите шанс стать владельцем этой замечательной квартиры Звоните для записи на просмотр и получения дополнительной информации.Арт.

Читать полностью

    Для того, чтобы купить трехкомнатную квартиру по адресу: Челябинск, Советский, ул. Дмитрия Неаполитанова, 44, позвоните по телефону +7 (982) 300-66-81. Торопитесь! Объявление №30091137476 о продаже трехкомнатной квартиры опубликовано Вчера.

    Позвонить Написать
    6 172 000 Р77 330 $ или 66 410
    Агент
    +7 (982) 300-66-81
    Начать чат с агентом
    Похожие предложения
    2-к кв. Челябинская область, Челябинск ул. Курчатова, 1 (50.0 м) - Фото 1
    2-к кв. Челябинская область, Челябинск ул. Курчатова, 1 (50.0 м) - Фото 2
    2-комнатная квартира, общая площадь 50м², жилая 30м², кухня 9м²

    ПРОДАЁТСЯ ДВУХКОМНАТНАЯ КВАРТИРА. Ищете идеальное жильё, которое подарит вам уют и комфорт прямо здесь и сейчас?Тогда эта квартира создана именно для вас Просторная и светлая двухкомнатная квартира с современным евроремонтом и всеми удобствами, необходимыми...
    • 50 м²
    • 2-ком
    • 9/9 эт.
    • панельный
    6 100 000 Р
    Агент
    +7 (919) Показать номер
    Посмотреть контакты
    3-к кв. Челябинская область, Челябинск ул. Воровского, 21а (56.0 м) - Фото 1
    3-к кв. Челябинская область, Челябинск ул. Воровского, 21а (56.0 м) - Фото 2
    3-комнатная квартира, общая площадь 56м², жилая 45м², кухня 6м²

    Уютная квартира с хорошим ремонтом в самом центре города.Пешком можно дойти до всех достопримечательностей, театров, музеев, ресторанов, прогулочных зон города.В квартире выполнен качественный ремонт, все удобно для комфортной жизни.Зеленый двор, большое...
    • 56 м²
    • 3-ком
    • 5/5 эт.
    • кирпичный
    6 180 000 Р
    Агент
    +7 (982) Показать номер
    Посмотреть контакты
    2-к кв. Челябинская область, Челябинск Ярославская ул., 13А (47.0 м) - Фото 1
    2-к кв. Челябинская область, Челябинск Ярославская ул., 13А (47.0 м) - Фото 2
    2-комнатная квартира, общая площадь 47м², кухня 17м²

    Продам просторную евродвушку в ЖК Ярославский , большая кухня-гостиная + 1 спальня, 10 этаж, окна выходят на Блюхера. Экологически чистый район с развитой инфраструктурой:-Закрытая территория;-Большая детская площадка с безопасным покрытием;-Хоккейная...
    • 47 м²
    • 2-ком
    • 10/17 эт.
    • монолит
    6 300 000 Р
    Агент
    +7 (919) Показать номер
    Посмотреть контакты
    3-к кв. Челябинская область, Челябинск ул. Воровского, 17 (58.1 м) - Фото 1
    3-к кв. Челябинская область, Челябинск ул. Воровского, 17 (58.1 м) - Фото 2
    3-комнатная квартира, общая площадь 58м², жилая 45м², кухня 8м²

    Продается отличная уникальная квартира в кирпичном доме -- окна выходят на 3 стороны света: восток, юг, запад Подходит любителям прекрасных видов на город, внизу расположен чудесный сквер по улице Воровского. Состояние: Квартира чистая, светлая, в...
    • 58 м²
    • 3-ком
    • 5/9 эт.
    • кирпичный
    6 100 000 Р
    Агент
    +7 (919) Показать номер
    Посмотреть контакты
    2-к кв. Челябинская область, Челябинск Телевизионная ул., 12Б (40.3 м) - Фото 1
    2-к кв. Челябинская область, Челябинск Телевизионная ул., 12Б (40.3 м) - Фото 2
    2-комнатная квартира, общая площадь 40м², жилая 12м², кухня 20м²

    Лучшее предложение по цене Продается или обменяем отличную квартиру в доме комфорт класса ЖК EVO ПАРК, огороженная территория, видеонаблюдение, консьерж сервис, отличные современный дворы с детскими и спортивными площадками. Планировка кухня-гостиная...
    • 40 м²
    • 2-ком
    • 18/18 эт.
    • панельный
    6 100 000 Р
    Агент
    +7 (982) Показать номер
    Посмотреть контакты

    Не нашли подходящего объявления?

    Оставьте заявку, и наши риэлторы подберут квартиру в районе Челябинска

    (0)