Реализация объекта недвижимости приостановлена

Информация о квартире

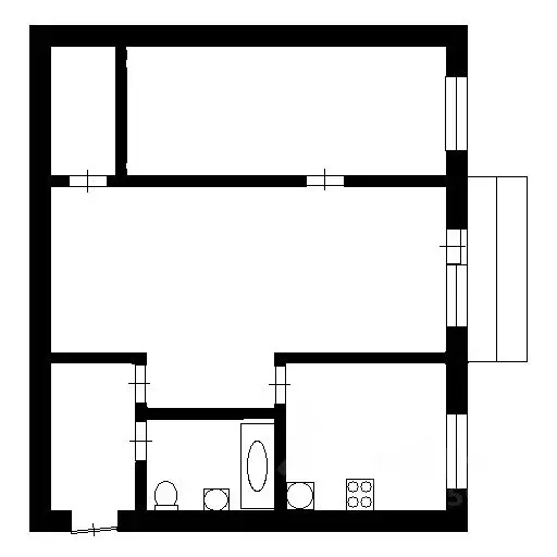
44.0 м2
Площадь
30.0 м2
Жилая
6.0 м2
Кухня
2
Комнаты
5
Этаж
5
Этажность

Дополнительная информация

Тип дома
кирпичный
Развернуть

2-к кв. Челябинская область, Челябинск ул. Аносова, 4 (44.0 м)

Продается уютная двухкомнатная квартира в самом сердце Челябинска на улице Аносова, 4. Общая площадь квартиры составляет 44 кв. м, из которых жилая 30 кв. м, а кухня 6 кв. м. Квартира расположена на 5 этаже 5-этажного кирпичного дома, построенного в 1957 году. В квартире выполнен косметический ремонт, что позволит вам въехать и жить без дополнительных вложений. Кухня уютная и функциональная, комнаты светлые, с окнами, выходящими как во двор, так и на улицу, благодаря чему в квартире всегда много естественного света. Санузел совмещенный. Также есть балкон, где можно устроить зону отдыха или хранить хозяйственные мелочи.Дом находится в хорошем состоянии, и на его территории предусмотрена наземная парковка, поэтому вы всегда найдете место для вашего автомобиля. Кирпичные дома славятся своей теплоизоляцией и долговечностью, поэтому здесь будет комфортно жить в любое время года.Рядом с домом есть все необходимое для удобной жизни: школы, детские сады и магазины. Все это в пешей доступности, позволит вам экономить время на повседневные дела. Хорошая транспортная развязка обеспечивает быстрый доступ к любой части города.Квартира продается в свободной продаже, без обременений и долгов. Документы готовы к сделке, поэтому вы можете быстро стать владельцем этой недвижимости. Подходит для приобретения в ипотеку.Приглашаем вас на просмотр, чтобы вы могли лично оценить все преимущества этой квартиры. Звоните и записывайтесь на удобное для вас время

Читать полностью

    Реализация объекта недвижимости приостановлена

    Не нашли подходящего объявления?

    Оставьте заявку, и наши риэлторы подберут квартиру в районе Челябинска

    (0)