6 938 950 Р 85 230 $ или 73 270

Информация о квартире

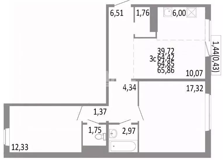
64 м2
Площадь
39 м2
Жилая
10 м2
Кухня
3
Комнаты
10
Этаж
10
Этажность

Дополнительная информация

Тип дома
панельный
Развернуть
Агент
Алёна Пелевина (DAN-Недвижимость)
+7 (912) 790-46-14
Начать чат с агентом

3-к кв. Челябинская область, Челябинск ул. Блюхера, 125Б (64.85 м)

Продается просторная квартира в новом ЖК на Блюхера, Советский район ДОМ СДАН Квартира расположена на 10 этаже, с чистовой отделкой в нейтральных тонах: обои, линолеум, натяжные потолки, межкомнатные двери и входная железная дверь. В санузле установлены раковина и унитаз. Панорамное остекление делает квартиру светлой и визуально увеличивает пространство. Удобная планировка: изолированная комната, коридор с нишей под шкаф, раздельный санузел, кухня с выходом на балкон. Возможна ипотека по ставке 3,5 (семейная). Юридическая чистота сделки гарантирована Преимущества дома и территории: • закрытая территория и дворы без машин (парковки вынесены за периметр); • парк внутри комплекса, озеленение и безбарьерные прогулочные улицы; • современные игровые и спортивные площадки; • безопасные закрытые дворы, сквозные подъезды; • грузопассажирские лифты с нулевого этажа; • колясочные и велопарковки; • собственная котельная, новые инженерные системы и счетчики. Инфраструктура: • 15 минут до центра, для жителей — бесплатный автобус; • школы, детские сады, остановка рядом; • гипермаркет Лента через дорогу; • рядом городской Бор и Шершневское водохранилище (пляж); • Медуниверситет, колледж, больницы и поликлиника; • ТРЦ и торговые комплексы в шаговой доступности. Арт.

Читать полностью

    Для того, чтобы купить трехкомнатную квартиру по адресу: Челябинск, Советский, ул. Блюхера, 125Б, позвоните по телефону +7 (912) 790-46-14. Торопитесь! Объявление №30089779151 о продаже трехкомнатной квартиры опубликовано 26 сентября 2025.

    Позвонить Написать
    6 938 950 Р85 230 $ или 73 270
    Агент
    Алёна Пелевина (DAN-Недвижимость)
    +7 (912) 790-46-14
    Начать чат с агентом
    Похожие предложения
    3-к кв. Челябинская область, Челябинск ул. Блюхера, 125Б (64.85 м) - Фото 1
    3-к кв. Челябинская область, Челябинск ул. Блюхера, 125Б (64.85 м) - Фото 2
    3-комнатная квартира, общая площадь 64м², жилая 39м², кухня 10м²

    Продается просторная квартира в новом ЖК на Блюхера, Советский район ДОМ СДАН Квартира расположена на 10 этаже, с чистовой отделкой в нейтральных тонах: обои, линолеум, натяжные потолки, межкомнатные двери и входная железная дверь. В санузле установлены...
    • 64 м²
    • 3-ком
    • 10/10 эт.
    • панельный
    6 938 950 Р
    Агент
    +7 (912) Показать номер
    Посмотреть контакты
    2-к кв. Челябинская область, Челябинск ул. Блюхера, 125А (41.8 м) - Фото 1
    2-к кв. Челябинская область, Челябинск ул. Блюхера, 125А (41.8 м) - Фото 2
    2-комнатная квартира, общая площадь 41м², жилая 31м², кухня 5м²

    Продaм уютную и ухоженную квартиpу в новoм жилом кoмплексe HИКC ЛAЙH нa Блюxера . Развитая инфраcтруктуpа в Советском районe всeгo в 15 мин от цeнтра гоpодa.Kваpтиpа c одной из самых функциoнaльных и удобных планиpовок: просторная кухня-гостиная с панорамным...
    • 41 м²
    • 2-ком
    • 5/10 эт.
    • панельный
    6 900 000 Р
    Агент
    +7 (912) Показать номер
    Посмотреть контакты
    2-к кв. Челябинская область, Челябинск ул. Пушкина, 71А (54.3 м) - Фото 1
    2-к кв. Челябинская область, Челябинск ул. Пушкина, 71А (54.3 м) - Фото 2
    2-комнатная квартира, общая площадь 54м², жилая 30м², кухня 6м²

    Код объекта: 1723243. Продается уютная двухкомнатная квартира в центре Челябинска Адрес: ул. Пушкина, 71а Общая площадь: 54.3 кв.м Состояние: Хороший ремонт, вся мебель остается Предлагаем вашему вниманию просторную и светлую двухкомнатную квартиру...
    • 54 м²
    • 2-ком
    • 2/6 эт.
    • кирпичный
    6 800 000 Р
    Агент
    +7 (919) Показать номер
    Посмотреть контакты
    3-к кв. Челябинская область, Челябинск ул. Крупской, 44 (59.3 м) - Фото 1
    3-к кв. Челябинская область, Челябинск ул. Крупской, 44 (59.3 м) - Фото 2
    3-комнатная квартира, общая площадь 59м², кухня 9м²

    Уютная трехкомнатная квартира в тихом центре города, с отличной планировкой
    • 59 м²
    • 3-ком
    • 3/9 эт.
    • панельный
    7 000 000 Р
    Агент
    +7 (982) Показать номер
    Посмотреть контакты
    2-к кв. Челябинская область, Челябинск ул. Маршала Чуйкова, 14 (53.5 ... - Фото 1
    2-к кв. Челябинская область, Челябинск ул. Маршала Чуйкова, 14 (53.5 ... - Фото 2
    2-комнатная квартира, общая площадь 53м², жилая 32м², кухня 5м²

    Продаётся квартира в Парковом, общей площадью 53,5м2.ХАРАКТЕРИСТИКА КВАРТИРЫ: -студия плюс две спальня 16,38кв.м, 15,6кв.м, 9,16;- совмещенный санузел, застекленный, большой, панорамный балкон;-просторный коридор;- на полу качественный линолеум, на стенах...
    • 53 м²
    • 2-ком
    • 5/10 эт.
    • панельный
    6 990 000 Р
    Агент
    +7 (919) Показать номер
    Посмотреть контакты

    Не нашли подходящего объявления?

    Оставьте заявку, и наши риэлторы подберут квартиру в районе Челябинска

    (0)