Реализация объекта недвижимости приостановлена

Информация о квартире

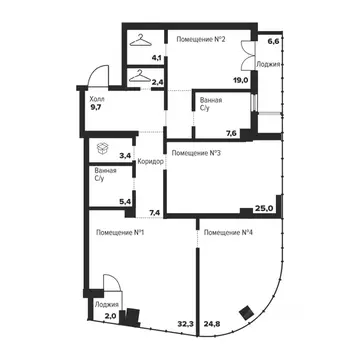
141.0 м2
Площадь
3
Комнаты
20
Этаж
29
Этажность

Дополнительная информация

Тип дома
монолит
Развернуть

3-к кв. Челябинская область, Челябинск ул. Труда, 157А (141.2 м)

Продаются 3-комнатные апартаменты в строящемся доме (Дом 157А), срок сдачи: IV-кв. 2025, общей площадью 141.2 кв.м., на 20 этаже. Новый комплекс апартаментов от Строительной компании Голос. Девелопментасположен по адресу г. Челябинск ул. Труда, 157А.

Читать полностью

    Реализация объекта недвижимости приостановлена

    Не нашли подходящего объявления?

    Оставьте заявку, и наши риэлторы подберут квартиру в новостройке в районе Челябинска

    (0)