Реализация объекта недвижимости приостановлена

Информация о квартире

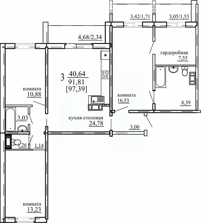
91.0 м2
Площадь
3
Комнаты
1
Этаж
10
Этажность

Дополнительная информация

Тип дома
панельный
Развернуть

3-к кв. Челябинская область, Челябинск ул. Маршала Чуйкова, 30 (91.81 ...

Продаётся 3-комнатная квартира в сданном доме (Маршала Чуйкова, 30 (Дом 21.2 (2 этап))), срок сдачи: IV-кв. 2024, общей площадью 91.81 кв.м., на 1 этаже. Новый жилой комплекс Хорошее решение от Специализированного застройщика Сириусасположен в Курчатовском районе Новосибирска на ул. Генерала Мартынова.

Читать полностью

    Реализация объекта недвижимости приостановлена

    Не нашли подходящего объявления?

    Оставьте заявку, и наши риэлторы подберут квартиру в новостройке в районе Челябинска

    (0)