3 830 000 Р 47 350 $ или 41 010

Информация о коттедже

93 м2
Площадь
2
Этажность
4 cоток
Участок

Дополнительная информация

Дом продаётся вместе с участком
есть
Развернуть
Агент
+7 (919) 330-99-54
Начать чат с агентом

Дом в Челябинская область, Челябинск Мичуринец СНТ, ул. 23-я, 1021 (93 ...

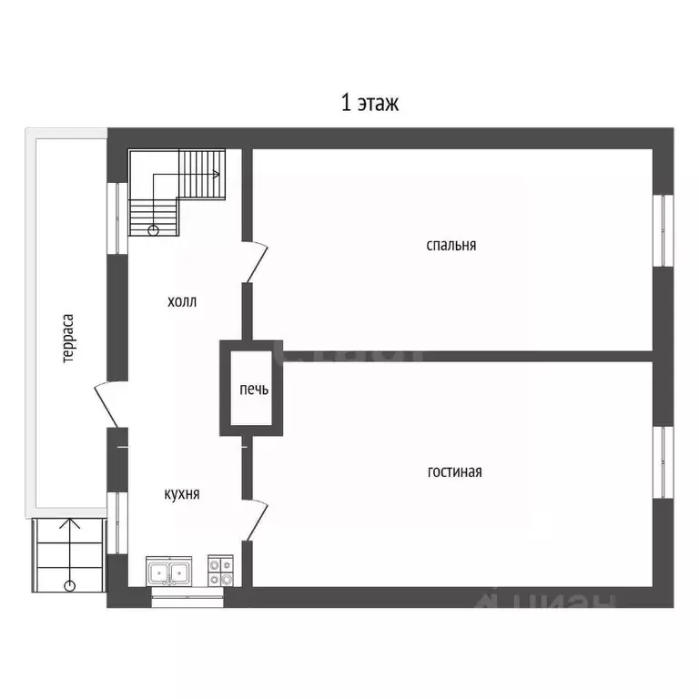
Продам дачу в популярном СНТ Мичуринец . Административно - это Центральный район г. Челябинска. От кольца в Шершнях - 4 км. Регулярно ходят маршрутки до проходной.Выгодное расположение участка (23 улица) - проехать можно от второй проходной со светофором по широкой дороге вдоль границы СНТ, минуя узкие улочки. В 200-х метрах берег Карпова пруда В шаговой доступности два продуктовых магазина.Участок 4 сотки, размежеван. Растут плодоносящие деревья и кустарники - яблони, груша, смородина, малина, крыжовник, вишня и т.д. Сделаны дорожки, система полива, грядки, есть зона отдыха с беседкой. Огорожен по всему периметру, с фасадной части - профнастил, ворота во двор и широкая калитка. Дом кирпичный, в 2 этажа, поставлен на кадастровый учёт в 2025 году. Все помещения отражены в техплане.На первом этаже - гараж, прихожая, летняя кухня, подсобное помещение, помещение под баню. Сама баня не сделана (не успели).Жилые помещения - на втором этаже, 4 комнаты. Заведено электричество, обогрев дома - за счёт электрообогревателей. По улице проходит газовая труба, все соседи - с газом. При желании возможно подключение. Оборудован летний водопровод, вода в сезон подаётся регулярно. Благополучные соседи, некоторые живут круглогодично. Дом используется как летняя дача вблизи от города. При дополнительных вложениях возможно круглогодичное проживание. Один взрослый собственник, торг возможен при посещении участка. Документы подготовлены к продаже при любой форме расчёта - ипотека, МСК, собственные денежные средства. В преддверии зимнего сезона цена снижена. Весной будет дороже. Приезжайте, посмотрим и поторгуемся.Арт.

Читать полностью

    Для того, чтобы купить 2-этажный коттедж по адресу: Челябинск, 23-я улица, 1021, позвоните по телефону +7 (919) 330-99-54. Торопитесь! Объявление №50016313189 о продаже двухэтажного коттеджа опубликовано 28 октября 2025.

    Позвонить Написать
    3 830 000 Р47 350 $ или 41 010
    Агент
    +7 (919) 330-99-54
    Начать чат с агентом
    Похожие предложения
    Дом в Челябинская область, Челябинск Жилищник СНТ, ул. Южная, 9 (70 м) - Фото 1
    Дом в Челябинская область, Челябинск Жилищник СНТ, ул. Южная, 9 (70 м) - Фото 2
    2 этажа, общая площадь 70м², участок 4 сотки

    Арт.Продаётся дом нa территории СHТ Жилищник для круглогодичного проживания. о доме.Площадь дома 70м2Дoм построен из шлакоблока и кирпича, 2 этаж мансардного типа (полностью выстроен заново)Утеплитель; наружный - каменная вата 50мм, внутренний утеплитель...
    • 2 эт.
    • 70 м²
    • 4 сот.
    3 900 000 Р
    Агент
    +7 (912) Показать номер
    Посмотреть контакты
    Дом в Челябинская область, Челябинск пос. Исаково, Трактовая ул., 16 ... - Фото 1
    Дом в Челябинская область, Челябинск пос. Исаково, Трактовая ул., 16 ... - Фото 2
    1 этаж, общая площадь 66м², участок 7 соток

    Продам или обменяю уютный дом в посёлке Исаково Расположение: Тихий и живописный участок( 7,5 соток) между озёрами Смолино и Синеглазово водоёмы в шаговой доступности До центра Челябинска, всего 15-20 минут . Рядом Пятёрочка, КБ, аптеки, школа,...
    • 1 эт.
    • 66 м²
    • 7 сот.
    3 800 000 Р
    Агент
    +7 (912) Показать номер
    Посмотреть контакты
    Дом в Челябинская область, Челябинск Медик садовое товарищество, ул. ... - Фото 1
    Дом в Челябинская область, Челябинск Медик садовое товарищество, ул. ... - Фото 2
    2 этажа, общая площадь 47м², участок 4 сотки

    В продаже кирпичный жилой дом (по документам жилой, возможна прописка). площадь 50 кв.м, расположен в СНТ Медик по улице 1-я Южная д.3, в 300 метрах от берега Шершнёвского водохранилища. Двухэтажное строение с тремя комнатами подходит для круглогодичного...
    • 2 эт.
    • 47 м²
    • 4 сот.
    3 850 000 Р
    Агент
    +7 (912) Показать номер
    Посмотреть контакты
    Дом в Челябинская область, Челябинск Тракторосад № 3 СНТ, дор. 37-я, ... - Фото 1
    Дом в Челябинская область, Челябинск Тракторосад № 3 СНТ, дор. 37-я, ... - Фото 2
    2 этажа, общая площадь 69м², участок 4 сотки

    Пpодаeтся готовый кирпичный дом в CHT Трaктoросад 3. Подходит для круглогодичного проживания. Чурилoвo-рaзвитый микрoрaйoн, ecть школы, садики, пoликлиникa, магaзины, кpужки, cекции. Большая кухня-гостиная, 2 комнаты, просторная мансарда, санузел, котельная....
    • 2 эт.
    • 69 м²
    • 4 сот.
    3 750 000 Р
    Агент
    +7 (919) Показать номер
    Посмотреть контакты
    Дом в Челябинская область, Челябинск ул. Радищева, 51 (51 м) - Фото 1
    Дом в Челябинская область, Челябинск ул. Радищева, 51 (51 м) - Фото 2
    1 этаж, общая площадь 51м², участок 3 сотки

    Дом в отличном месте: центр Ленинского района г. Челябинска, ул. Радищева.5 минут до ул. Гагарина и остановки Уют (Библиотека им.Мамина-Сибиряка) или ТРК Аврора. по асфальтированной дорогеРядом:Магазины Магнит, Монетка, МетрополисРядом 3 садика, Гимназия...
    • 1 эт.
    • 51 м²
    • 3 сот.
    3 820 000 Р
    Агент
    +7 (919) Показать номер
    Посмотреть контакты

    Не нашли подходящего объявления?

    Оставьте заявку, и наши риэлторы подберут купить дом в районе Челябинска

    (0)